查看完整案例

收藏

下载
欧莱雅德国总部建筑设计欣赏
简介:
In addition to the open-space areas with a total of 1,000 permanent workplaces, the new working environments provide an additional 890 flexible workplaces: these include a large number of smaller think tanks, meeting rooms, phone booths and a silent room. It is left for the employees themselves to decide whether they prefer to work in a seated or standing position, whether they need to work with a team, or, if necessary, take advantage of one of those many retreats to focus on a task with zero distraction.
所有办公楼层都有一个共同特点,即在中央区域有一个半开放式、或者完全开放的会议室,围绕此会议室整齐排列成片的开放式办公区域。天花板、墙壁和地板安置的高水准吸音材质,以及办公桌旁边的垂直吸音板,共同保证了开放的办公空间拥有高品质的声音效果。
Each office floor is characterized by a meeting zone in the central area, semi-closed or completely open, around which the open working landscapes line up. The open-space areas offer high acoustic quality, which was achieved by an above-average sound absorption coefficient of the ceiling, wall and floor materials as well as vertical acoustic panels at the desk.
随着此次搬迁,欧莱雅的员工们也革新了他们的办公方式。开放式的工作环境和大量可选择的办公空间,使员工们可为不同的任务选择最佳的工作环境。为了最大程度地满足使用者们个性化的需要,室内设计新开发了大约1,000种定制家具,其中包括仿照该栋建筑外观而设计的“欧莱雅产品架”。这栋地平线大楼的建筑本身和内部设计彼此互补,相得益彰。
Along with the relocation, the employees of L’Oréal have renovated their way of working.Thanks to the open working environments and plenty many alternative workplaces, employees can choose best places for every job. Furthermore, a total of about 1,000 special furniture units were developed, to best meet the individual needs of the users, including the "L’Oréal product shelf", which resembles the shape of the building. The interior design of tower Horizon and the architecture itself complements one another.
开放式的内部设计也能通过该建筑的玻璃立面向外呈现出来——“这座透明的大楼向整个城市开放,表达了该公司不仅仅对其雇员负责,还肩负着对整个社会的责任感。新总部以一种特别的方式完美传达了欧莱雅品牌的价值观。”事务所高级合伙人Volker Weuthen说。
The open interior design is also reflected on the outside in the glass façade of the building: "The transparent house opens up to the city, symbolizes that the corporation is committed not only to the employees, but also to the whole community. The new headquarters conveys the values of the L’Oréal brand in a special way," said Volker Weuthen, HPP’s Senior Partner.
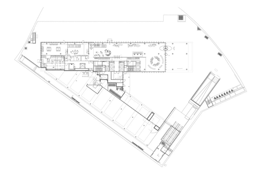
首层平面图
Ground floor plan
二层平面图 Second floor plan
标准层平面图 Standard floor plan
项目信息
项目名称:欧莱雅地平线“J1” 地点: Johannstrasse 1, 杜塞尔多夫 业主:The Developer (Horizon的子公司) 承租方:欧莱雅德国 建筑设计: HPP Architects 高级合伙人:Volker Weuthen 项目经理:Christoph Ebert 室内设计经理:Wolfgang Miazgowski 长度: 90 m 进深:16 m 高度:60 m 建筑面积:25,000 m2(地上) 总建筑面积:38,000 m2 使用面积:22,000(地上) 绿建:目标DGNB 金奖 起建日期:2015 竣工日期:2017
Project Information
Project Name: L’Oréal Horizon "J1" Location: Johannstrasse 1, Düsseldorf Client: The Developer Tenant: L’Oréal Germany GmbH Architect: HPP Architects Ltd. Senior Partner: Volker Weuthen Project Manager: Christoph Ebert Interior Design Manager: Wolfgang Miazgowski Building lengths: 90 m Building depth: 16 m Height: 60 m GFA above ground: 25,000 m2 GFA total: 38,000 m2 NFA: 22,000 m2 above ground Certification: DGNB Gold targeted Start of Construction: 2015 Completion: 2017
客服
消息
收藏
下载
最近
















