查看完整案例

收藏

下载
Project details
6 courtyards
StudioBasar
Architecture:
Alex Axinte, Cristi Borcan (studioBASAR)
Structures:
Lucian Stanciu, Mihai Pavel (Altfel Construct)
Installations:
Florentina Radu, Mirela Neculai, Alexandru Damian
Builder:
Baupartner
Location:
str. Mărășești, nr. 270, Ploiești, Prahova
Beneficiary:
Blue Spot
Developed area:
571 square meters
Period:
2009-2013
Photo:
studioBASAR
At home or in a block? The answer to this question has oscillated between extremes in Romanian society in recent years. After rapid industrialization and the explosion of mass collective housing, which came to an abrupt end in the late 1980s, came the mad rush in the opposite direction, which manifested itself from the 1990s onwards in the slew of villas sprouting up on the outskirts of cities. The flight from "matchboxes", from the upstairs neighbor, from the smell of frying and the darkness of the stairwell ended in the back of the villa in the field, where the lack of utilities and social infrastructure has generated a rather apathetic comfort, in a framework of isolation and segregation. In the meantime, the quality of collective housing has not been substantially reformed either - the post-1989 interventions on the existing blocks have resumed and continued the logic of standardization through façade cladding or stereotypical layouts of the spaces between blocks - and most of the blocks in the new housing estates have followed, by and large, the same patterns inherited from socialism.
Between these extremes, however, there survived a middle world, a territory within, but more on the outskirts of cities, which did not get systematized during the years of socialism, retaining almost rural characteristics and which was classified in the category we have come to call, more pejoratively, 'slum'. In this context, Mărășești Street, located on the western outskirts of Ploiești, brings two radically different ways of living face to face. The result of unfinished systematization, which left behind a partial boulevard, a single housing estate built during the years of socialism coexists with a motley slum of courtyard houses. Gradually, the brutality of the two fabrics, which seem to borrow from each other across the boulevard, has diminished through a slow hybridization, visible in the spatial relationships, everyday practices and architectural expressions between the two.
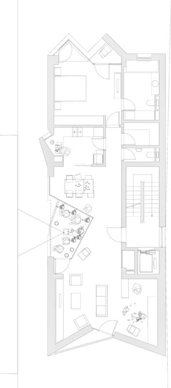
The ground-floor and three-storey building is set on the long side and set back on the narrow side of the land at the virtual, and probably never realizable, limit of the unfinished boulevard extension, dividing the lot into two courtyards of common use. As a housing hypothesis not yet validated by current use - only two of the four apartments are currently occupied. The building offers a contemporary living typology and a range of support spaces that are available for functional interpretation by the users. With only one apartment per floor, the built volume opens to the fragmentary fabric of the front and rear through minimal gaps and balconies, and deep cut-outs at the sides organize the interior of each level around interior half-cultures. The geometry and functional possibility of these balconies and terraces continue the ambiguous condition of the context, part planned, part vernacular. Through these in-between spaces, new dwelling can relate to the neighborhood by challenging related practices and visual or neighborhood relations, as a form of testing a possible type of dwelling' both in the house and in the block.
客服
消息
收藏
下载
最近















