查看完整案例

收藏

下载
OKE, New Culture House and Library of Ortuella by aq4 arquitectura
[VIDEO] By aq4 arquitectura. [Ortuella, Vizcaya] Spain
OKE, New Culture House and Library of Ortuella by aq4 arquitectura
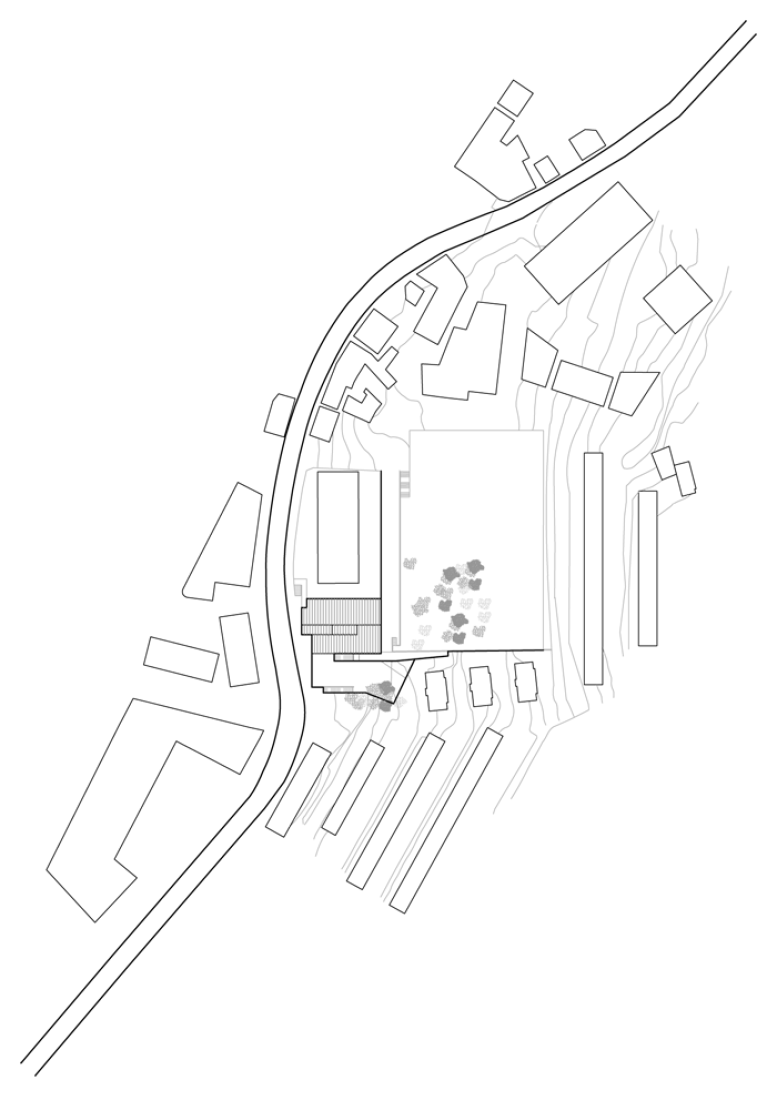
aq4 arquitectura designed the new Culture House and Library of Ortuella in Vizcaya. The design tries to mold volumetrically a building to adapt to the different topographic levels that define the place, generating two different access answering to the two uses of the program, creating a project that can operate autonomously.
OKE is the new Ortuella Culture House, in the former mining area of Vizcaya. Today there is no extraction of iron sulfate. The valleys that previously received rusty sand dunes, now pile groups of metal ships lacquered in polygons. Everything has been erased, and there is no trace.
We have been lucky enough to build there, where a main street and a square can be joined. OKE looks from side to side through a road, as far as possible, to see and be seen from a distance in a precise approach maneuver.
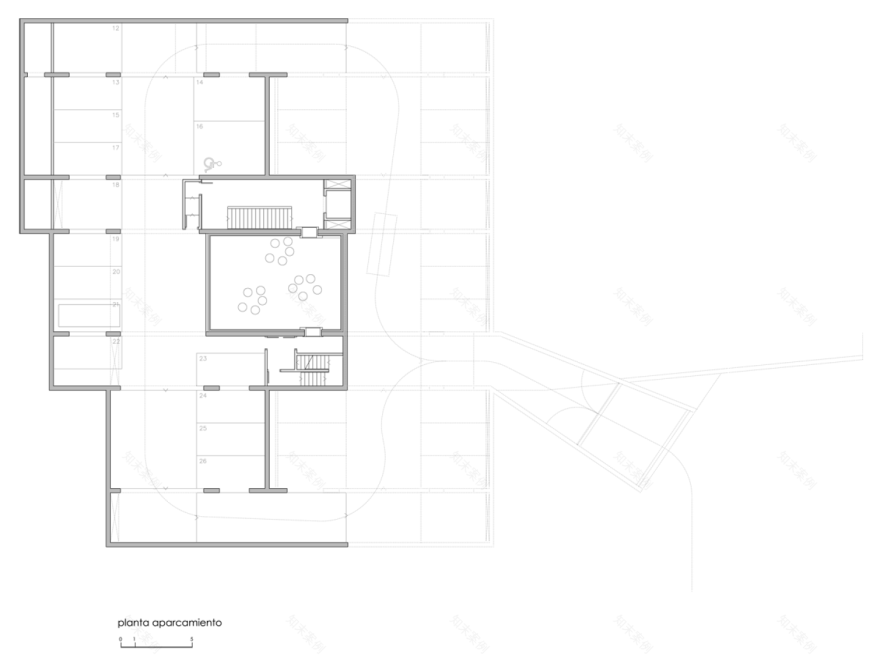
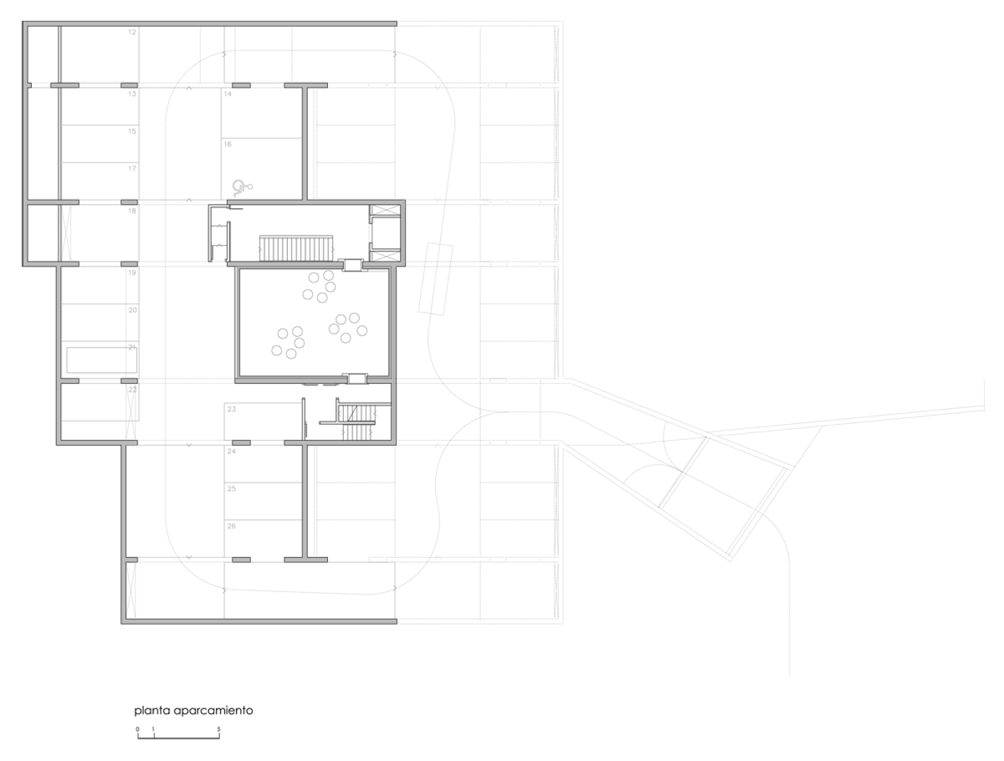
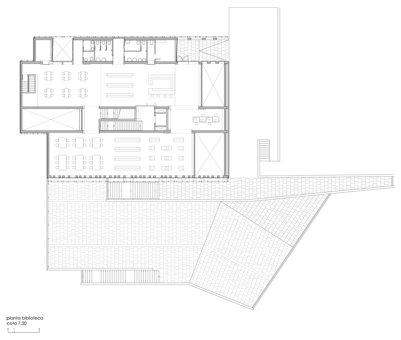
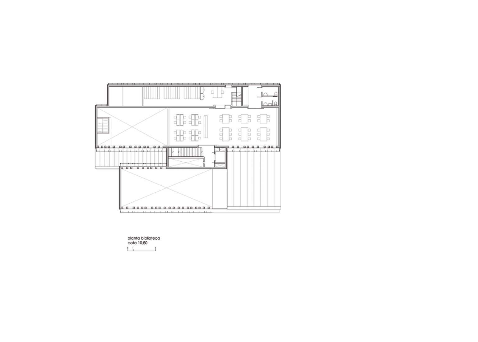
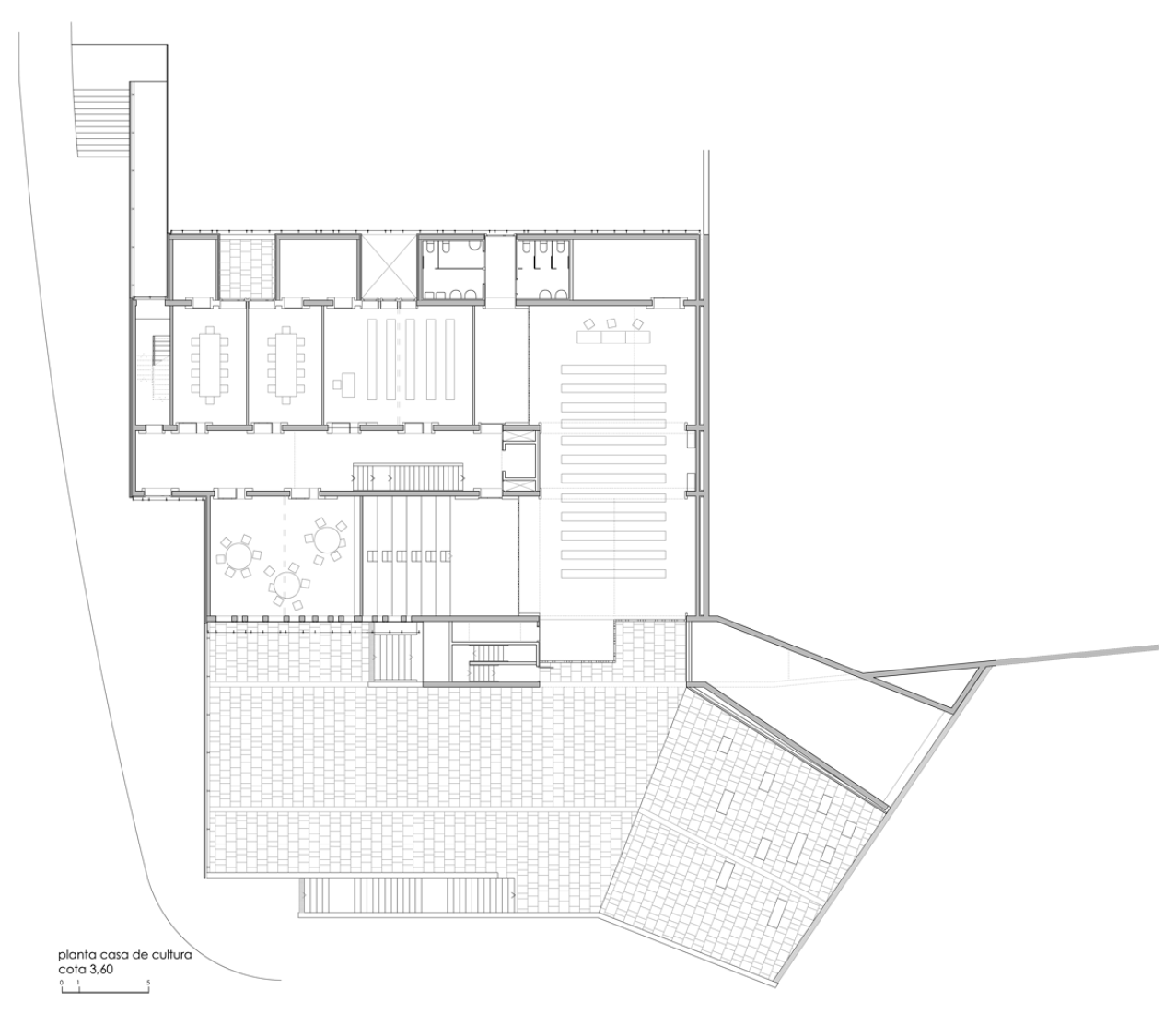
It is a concrete structure that alternates bays of 380 and 750 centimeters, defining the empty space – filled space, where the program is finding its place to facilitate storage and different activities. It is a flexible organization for predictable and unpredictable uses of the house of culture. Each bay defines its own section.
Shaping the volumes that define the building to respond to the different topographic levels that delimit the place. From the topography of the valley, the roofs are displayed as facades.
Completing a new urban route where existing exterior spaces connect with different activities in the library, square and street.
Working with the topography to define two different access and uses that are set by the program. The parking entrance from the existing one on the square, can give direct access to Catalina Gibaja street (height 0.00 m).
Allowing the Multipurpose Room to function independently, with an access of 3.35 m as part of the new plaza, where different activities can be developed, although the rest of the building is closed.
We knew about the scale of the underground infrastructures. We wanted to build something that was there long ago, before the absurd polygons.
aq4 arquitectura.
Main architects: Ibon Bilbao España, Jordi Campos Garcia, Caterina Figuerola Tomás, Carlos Gelpí Almirall.
Team collaborators: Iván Pena, Alberto Berga, Javier González, Albert Duque, María Ruiz, Mónica Molas, Alessandra Sirianni, Marta Milà.
Promoter: Ayuntamiento de Ortuella.
Builder: UTE Urioste.
Date: 2011 (Finalization), 2008 (Initiation).
Project: New Culture House and Library in the mining area.
Surface: 3.480 m2 (Built), 930m2 (Urbanized).
Budget: 3.348.656 € (PEM).
Site: Calle Catalina Gibaja, Ortuella. Vizcaya, Spain.
BILBAO-CAMPOS-FIGUEROLA-GELPÍ aq4 arquitectura aq4 arquitectura, Bilbao, Campos, Figuerola, Gelpí forman el equipo aq4 arquitectura en el año 2003 con despacho en Barcelona. El equipo recibe pronto reconocimiento al ganar, en el 2003, el Primer Premio del Concurso Nacional de Ideas para la Nueva Casa de Cultura y Biblioteca de Ortuella, y en el 2004 el Primer Premio del Concurso de propuestas para la construcción de un CAP en Blanes. A raíz de estos premios el equipo intensifica su investigación mediante el concurso público y gana: el Primer Premio del Concurso de propuestas para la construcción de un CAP en Polinyà, y el Primer Premio del Concurso de edificación de 44 viviendas de HPO en Mollerusa. En el año 2007 gana el Primer Premio del Concurso de Ideas Area residencial campus UDC de Elviña, lo que supone la posibilidad de abrir una vía de investigación dentro de la tipología de vivienda universitaria y de la construcción en madera. Últimamente han ganado el Primer Premio del Concurso Residencia de estudiantes de tercer grado y personal de investigación de la UPV/EHU en Leioa.
Han impartido conferencias en diferentes centros nacionales y en el año 2005 en la Escuela d’Archittetura da Venezia.
Han estado seleccionados para las siguientes exposiciones: Consorci RIBA. Jovespai del mercat de Camp Redó. Palma de Mallorca (2011); COAC. Arquitectura per la Salut. 18 anys d’arquitectura sanitària a Catalunya (2010); Concurso de ideas Area residencial del campus de la Universidad de A Coruña (2007); "Ortuellako Kultur Etxea", Casa de Cultura i Biblioteca d’Ortuella. Biscaia.(2005).
En el 2003, en colaboración conjunta con taller de arquitectura arquitecturaquatre, recibieron el Premio COAVN de interiorismo para la reforma de vivienda en el Muelle Churruca y fueron seleccionados para la Mostra di Archittetura Biennale di Venezia 2000 con su propuesta para EUROPAN 5.
El equipo ha estado seleccionado para exponer su obra en el espacio “Contextos” de Vogadors en la 13ª Mostra di Archittetura Biennale di Venezia.
Ibon Bilbao España (Portugalete 1968). COAC 37285/4.
Hoy-1998 Profesor Associado. Departamento de Proyectos Arquitectónicos. ETSAB. UPC.
Hoy-2011 Miembro de AxA. Arquitectes per l’Arquitectura.
Hoy-2004 Miembro del estudio de arquitectura “aq4 arquitectura”.
Hoy-2003 Profesor Invitado. Máster "La Gran Escala". ETSAB. UPC.
2005 Miembro del Comité de Expertos en Temas Arquitectónicos de GISA.
2003-96 Miembro del estudio de arquitectura “arquitecturaquatre”.
Jordi Campos i García (Barcelona 1968) COAC 33212/9.
2001-97 Colaborador del estudio de arquitectura Bonell, Gil i Rego arquitectes.
1996 Arquitecto por la ETS Arquitectura de Barcelona. UPC.
Hoy-2005 Arquitecto municipal de ALP.
Hoy-2004 Miembroxa0 del estudio de arquitectura “aq4 Arquitectura”.
2000-2003 Miembro del estudio de arquitectura “arquitecturaquatre”.
2000 Arquitecto por la ETS Arquitectura de Barcelona. UPC.
2000-97 Colaborador del estudio de arquitectura Albert Pla i Gispert.
1997-96 Colaborador Patronat Metropolità del Parc de Collserola.
Caterina Figuerola Tomás (Palma de Mallorca 1968). COAC 29000/9.
Hoy-2004 Miembroxa0 del estudio de arquitectura “aq4 Arquitectura”.
2003-96 Miembro del estudio de arquitectura “arquitecturaquatre”.
2001-00 Colaborador del estudio de arquitectura Ravetllat –Ribas arquitectes.
1998-96 Colaborador del estudio de arquitectura Valcarce-Valls arquitectes.
1996 Colaborador del estudio de arquitectura Josep Miàs arquitecte.
1996 Arquitecto por la ETS Arquitectura de Barcelona. UPC.
Carlos Gelpí Almirall (Houston 1968). COAC 28377/0.
Hoy-1998 Profesor Dept. Construcción de la arquitectura. ETSA La Salle. URL.
Hoy-2004 Miembroxa0 del estudio de arquitectura “aq4 arquitectura”.
2001-97 Colaborador del estudio de arquitectura Bonell, Gil i Rego arquitectes.
2003-99 Miembro UTE Rego. Xairó. Gelpí. Brufau. Barnés.
2000-98 Miembro del estudio de arquitectura “arquitecturaquatre”.
1999-98 Colaborador del estudio de arquitectura Albert Pla i Gispert.
1997-94 Colaborador del estudio de arquitectura Eduard Bru arquitecte.
1996 Arquitecto por la ETS Arquitectura de Barcelona. UPC.
客服
消息
收藏
下载
最近



























