查看完整案例

收藏

下载

翻译
Architects:Innauer-Matt Architekten
Area:408m²
Year:2024
Photographs:Dominic Kummer
Manufacturers:Carpenter,Drywall installation, facade,Exhibition lighting,Media technology,Metalwork,Paintwork,Shingle facade,Sun screen,Timber construction,Wooden windows
Lead Architects:Sandra Violand
Structural engineering:Merz Kley Partner
Building physics:DI Günter Meusburger
Electrical planning:Willi Meusburger
Category:Museum
Architect:Tobias Franz
Exhibition Design:Robert Rüf Design
Graphic Design:Super Büro für Gestaltung
City:Bezau
Country:Austria
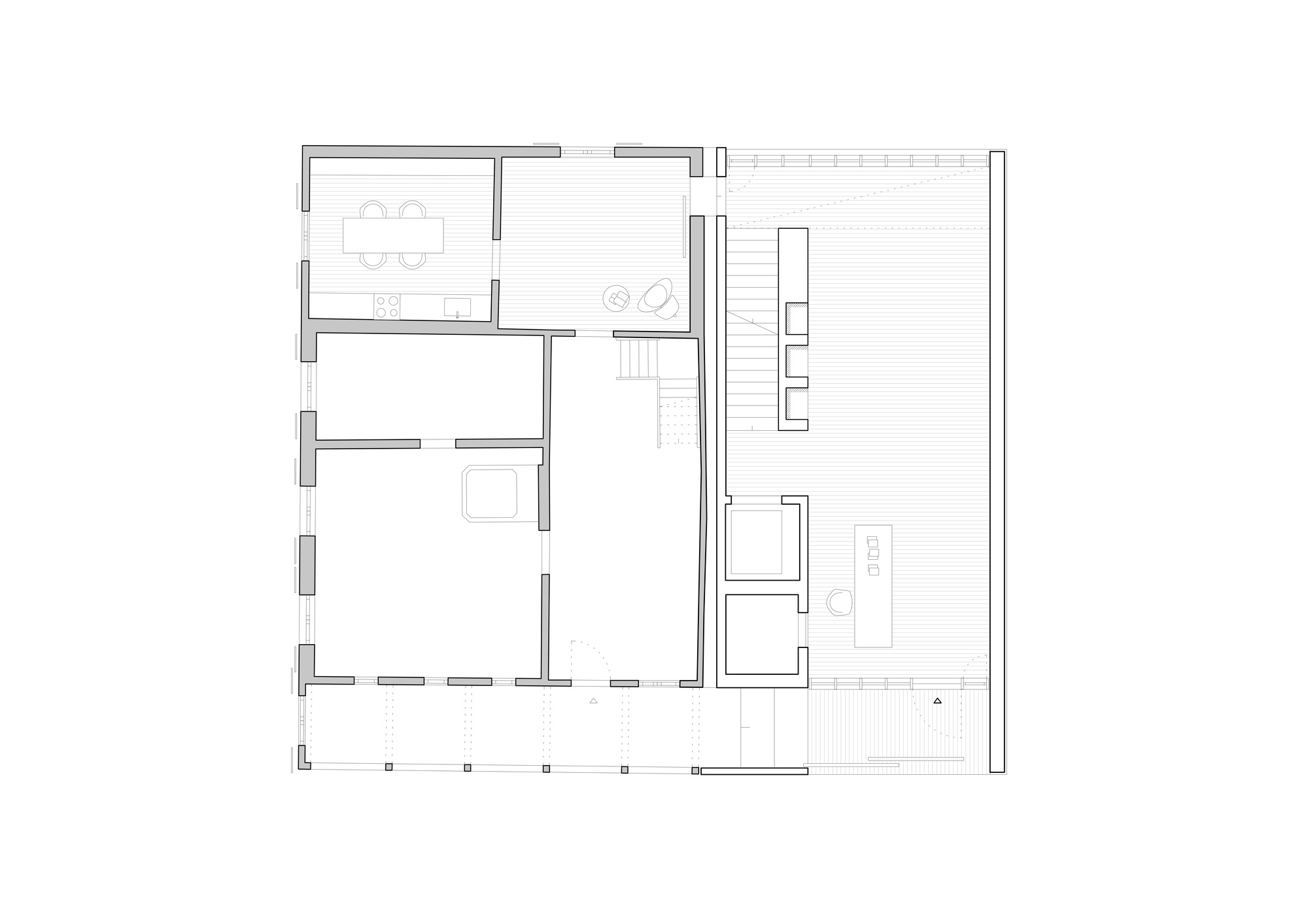
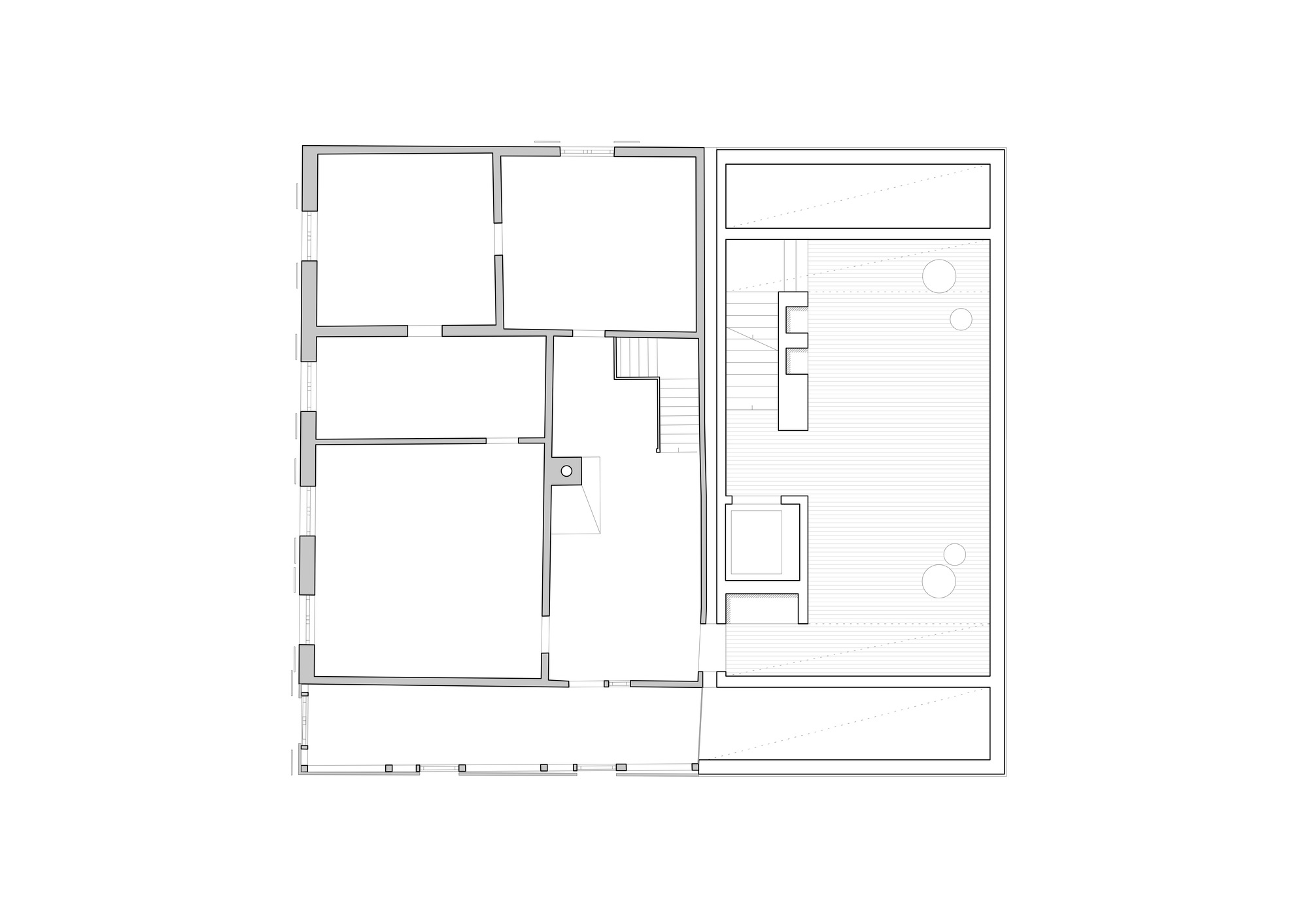
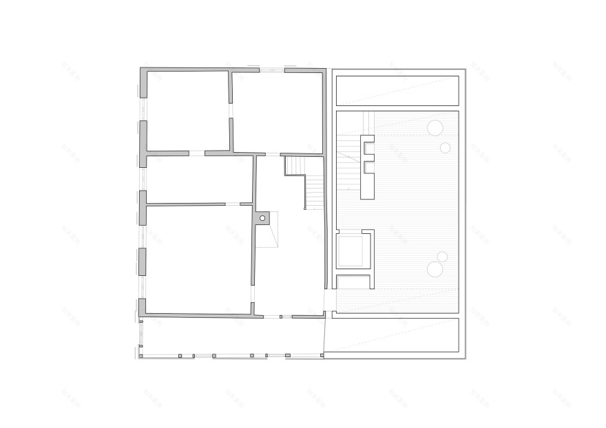
Text description provided by the architects. The Museum Bezau intertwines the past with the present. The historic, heritage-listed building is an outstanding exhibit on its own – a showpiece that immerses the visitor in the local building culture and its close connection between architecture and craftsmanship. The extension ties in with the history and takes it further in its language. With the continuation, the traditional order of the Bregenzerwald house with its front and rear building sections is restored.
Spanning three floors, the extension provides additional space for contemporary museum functions. As a new addition to the permanent collection displayed in the historic section, it accommodates visitor reception, small events, and a variety of exhibits. The interior arrangement is characterized by horizontally and vertically interlocking spaces, interweaving the Old and New to create a new whole that can be experienced spatially and conceptually. Between dark and light, high and low, narrow and wide, a diverse spatial experience is made possible, enriching the exhibition layout with a further layer of depth.
In keeping with the local Baroque builder's tradition, the planning and execution involved a close collaboration between architecture and craftsmanship. A contemporary, prefabricated timber construction completes the historic loc construction, while the differentiated façade design refers to the unique nature of its use.
Inside, whitewashed wood paneling on the walls, solid spruce floorboards, and ash furniture create a simple but atmospheric setting for the wide range of historical exhibits. The captivating dialogue between Old and New creates a meaningful ensemble.
Project gallery
客服
消息
收藏
下载
最近












































