查看完整案例

收藏

下载
Planirani objekat investitora Brixwell Investment; Vizuelizacija: Berger Group
Preko puta Pristaništa u planu kompleks od preko 95.000 kvadrata
Na javnom uvidu našao se projekat u opštini Stari grad od osam lamela sa 459 stanova, 27 lokala, kao i 807 parking mesta u dve zasebne garaže.
Grad Beograd oglasio je javnu prezentaciju urbanističkog projekta za urbanističko-arhitektonsku razradu lokacije za izgradnju stambeno - poslovnog objekta spratnosti 3Po+Su+Pr+6+PS, koji investitor Brixwell Investment planira u opštini Stari grad.
Nosilac izrade predmetnog urbanističkog projekta je preduzeće Berger Group iz Beograda, kao odgovorni urbanista potpisana je Smiljana Nedić, dia, a kao odgovorni projektant Milan Radoičić, dia.
Pozicija novog kompleksa u Dunavskoj; Vizuelizacija: Berger Group
Parcela od 12.172 kvadrata
Veliki stambeno-poslovni kompleks gradiće se na trougaonoj građevinskoj parceli, formiranoj od KP broj 17/10 i 17/7 u KO Stari grad, površine 12.172 kvadrata. Na njoj postoji devet objekata koji su predviđeni za uklanjanje.
Parcelu definiše Dunavska ulica sa severne strane, Knežopoljske sa istočne strane kao i budući Linijski park sa južne strane. Tačnije, ovaj projekat predviđen je da nikne tačno preko puta kompleksa Novi Dorćol, odnosno kod Pristaništa, u neposrednoj blizini Luke Beograd.
Ortofoto prikaz lokacije u okruženju
459 stanova i 27 poslovnih apartmana
Projektom je predviđena izgradnja objekta koji se sastoji od osam lamela: Lamele A (2Po+Pr+6+Ps), lamela B, C, D, E (3Po+Pr+6+Ps) i lamela F, G, H (3Po+Su+Pr+6+Ps). Ukupna bruto površina objekta iznosi 95.383 m².
Poslovanje je predviđeno u suterenu, prizemlju i na galeriji, a stanovanje na gornjim etažama.
U osam lamela projektovano je ukupno 459 stanova, 27 poslovnih apartmana, 31 lokal i 5 komercijalnih prostora namenjenih ugostiteljstvu. Uz pešački plato Linijskog parka, smeštena je predškolska ustanova – depandans za osamdesetoro dece.
Projektom je predviđena izgradnja objekta koji se sastoji od osam lamela ukupne bruto površina od 95.383 kvadrata.
U objektu su projektovane zajedničke garaže na tripodzemna nivoa i to u dve zasebne garaže – velike koja je ispod celog objekta i srednje koja se nalazi na nivou suterena ispod dela lamela G i H. U garažama je ostvareno ukupno 807 PM, od čega je 39 PM za osobe sa invaliditetom.
Planirana je i izgradnja unutar blokovskog platoa sa pešačkim, kolsko-pešačkim i ozelenjenim površinama, vezom sa Linijskim parkom i Dunavskom ulicom i obodnim poslovanjem, sa pristupom unutrašnjem dvorištu za vatrogasna vozila.
Izgradnja objekta će se realizovati u dve faze – u prvoj fazi biće izgrađena Garaža 1, Garaža 2 i lamele F, G, H, a u drugoj lamele A, B, C, D i E, navodi se u dokumentaciji.
Primedbe i sugestije do 1. aprila
Podsećamo da zainteresovana lica mogu tokom javne prezentacije da izvrše uvid u urbanistički projekat, kao i da svoje primedbe i sugestije na planirana rešenja u pisanoj formi dostave Sekretarijatu za urbanizam i građevinske poslove,najkasnije do 1. aprila 2025.
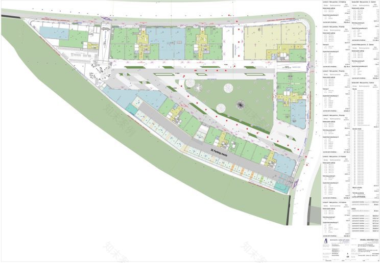
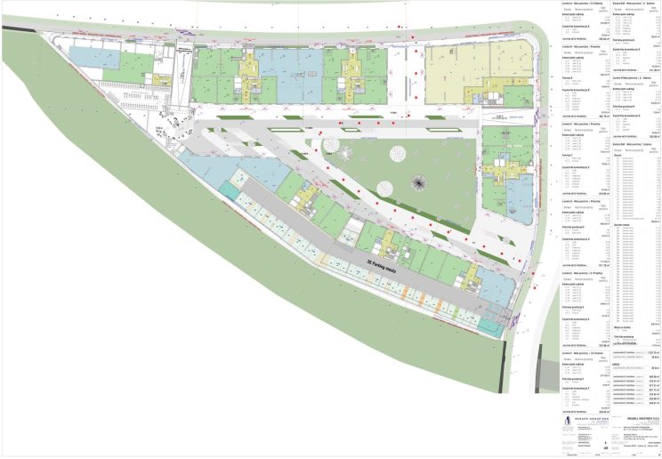
Grafički prilozi
Osnova: prizemlje, galerija i suteren
Osnova: galerija, prvi sprat i prizemlje
Presek 1
Presek 2
Presek 3
客服
消息
收藏
下载
最近










