查看完整案例


收藏

下载
这是一个空间改造项目,原空间是一个五百平米左右的盒子型空间,一侧有采光。客户希望改造后的空间能应对多样的使用场景:展览、培训、会议、观影、演出,及其他目前不可预知的需求。
我们发现这些使用场景对于空间的视线控制、流线组织、光环境、声环境、及空间的高度的需求存在很大差异。于是设计工作的核心很快变成了对包裹空间的界面的重新思考。
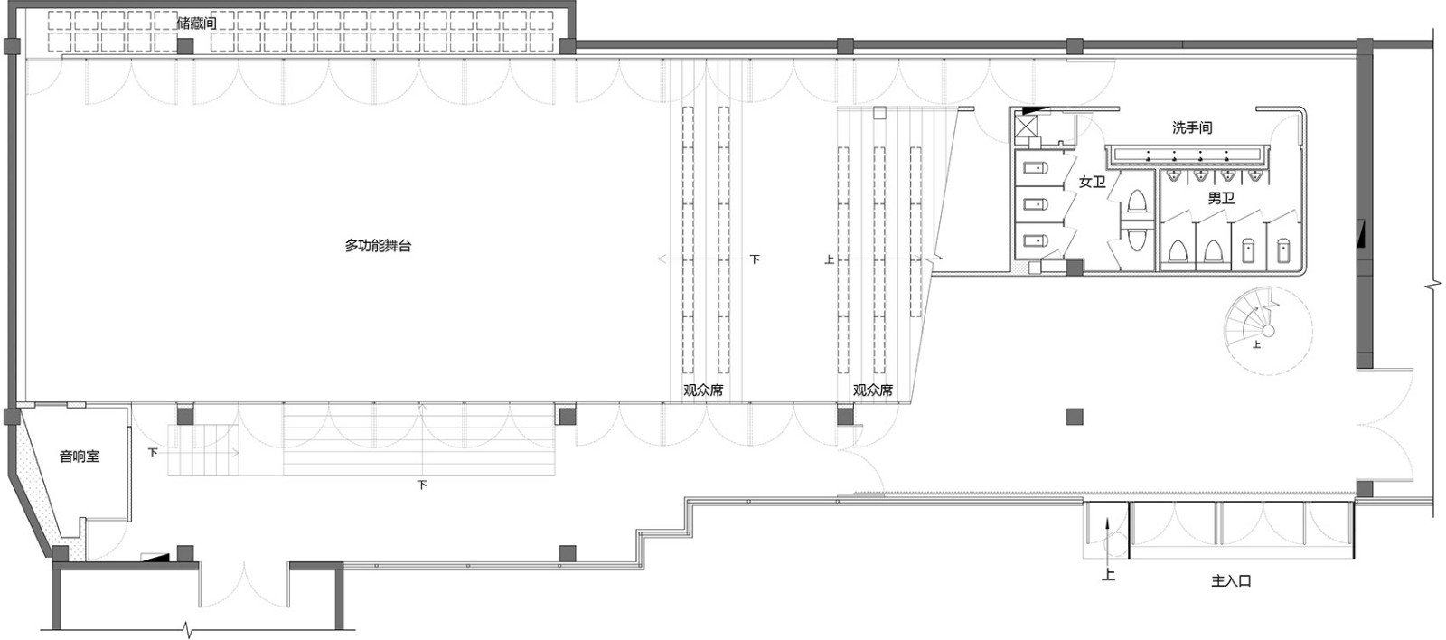
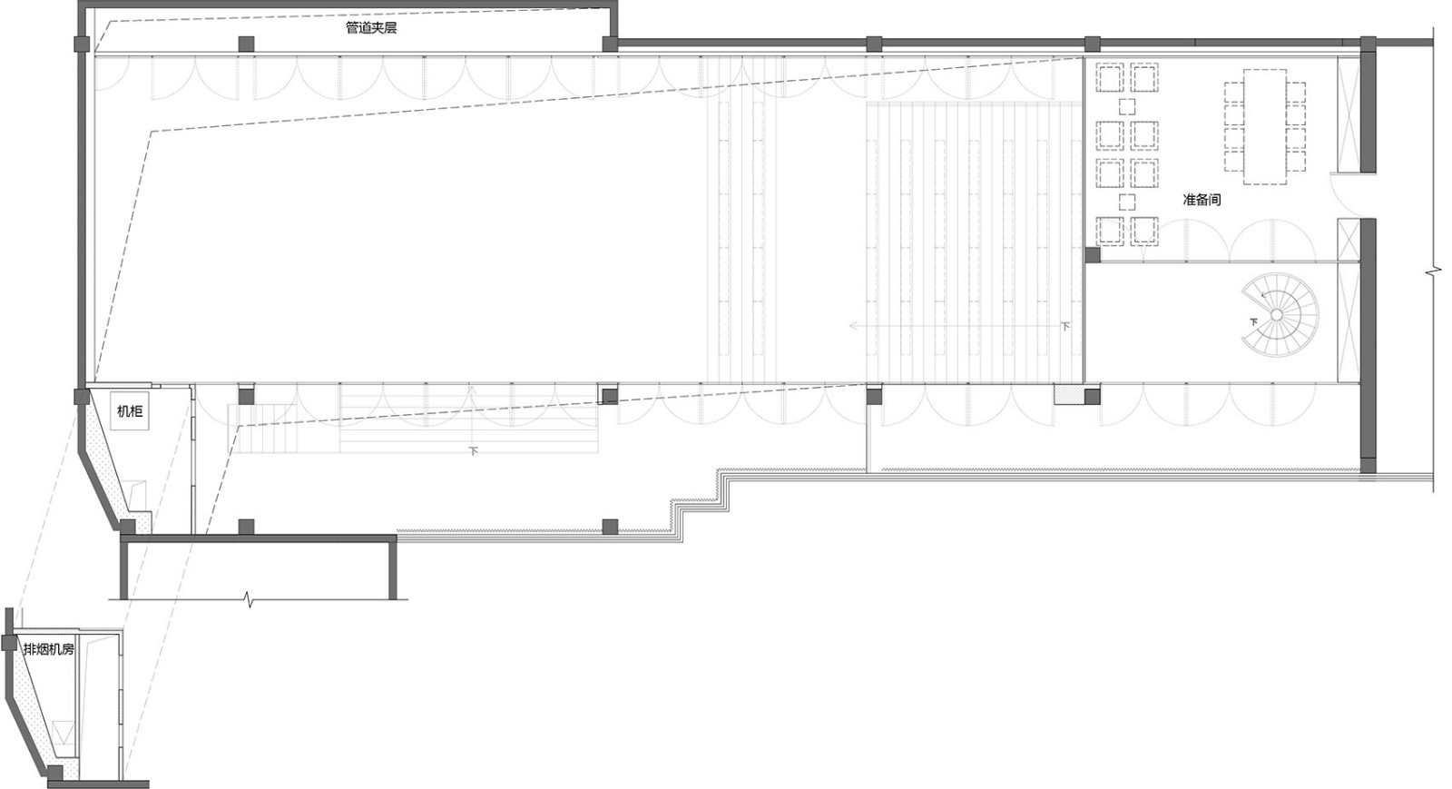
我们的目标是通过一套简单的系统解决所有的问题。最终的解决方案分为两步:首先用一个大台阶改造空间的剖面形状。大台阶既可以是交通空间也可以作为看台。第二步是用许多块转轴翻板包裹整个空间,包括空间的侧面和顶部。侧面的翻板形成可以打开的“墙”,顶部的翻板形成可以落下的“帷幕”。
侧面的每一品转轴翻板的宽度在1米左右,最高的单元高度达到7米,开时形成约2米宽的空洞,关闭时完全封闭为一面墙壁。打开时,两侧的空间被连通,视线形成交流,人流可以从该处进入,自然光线被引入空间的内部,声音则可以从内部穿透到外部。关闭时,两侧的空间被阻隔,视线和人流被切断,空间内的采光转变为可控的人工光线,同时空间内部形成隔绝的声场。顶部的翻板每一品高1.8米,宽7.6米,开启时下垂,关闭时升起呈水平,也可以停止在中间的任何角度。起到调节空间高度和隐藏顶部设备层的作用。所有翻板厚度为5厘米,采用了特殊的高强度蜂窝板作为材料。在背光时这种材料呈现半透明的状态,此时可以看到整块翻板内部并没有龙骨,光线在材料内部均匀的扩散,细看时还可以发现材料表面的纤维质感。
改造之后的空间提供了多种“看与被看”的方式,并可以在使用中进行进一步的设计。
▼轴测
▼细部
▼一层平面
▼二层平面
客服
消息
收藏
下载
最近





























