查看完整案例

收藏

下载
Таунхаус на Балтике с праздничным настроением
Трехэтажный таунхаус в стиле ар-деко
Автор проекта: Чашкина Алена
Объект: Таунхаус на Балтике с праздничным настроением
Общая площадь: 350 кв.м.
Уникальные характеристики обьекта:
эстетский таунхаус для семьи с двумя детьми
авторские художественные витражи
харизматичные предметы итальянских производителей
нейтральная теплая цветовая палитра с яркими акцентами
Гостиная находится на уровне с землей, она имеет панорамные окна и выход в сад. Диван Longhi (модель Nobu) и журнальные столики Longhi (модель Amadeus) со столешницами из мрамора Pallisandro Onicato и Agatha Black были приобретены на выставке ISaloni в Милане. Настольные лампы, Officina Luce.
Гостиная с видом на сад и выходом на террасу.
Зона отдыха в гостиной. Стены оформлены декоративной штукатуркой на основе мрамора и кварца Travertino Romano (Oikos) с золотой расшивкой. За диваном – панно в стиле ар-деко, художник Наталья Фоминова.
Из-за сложной архитектуры дома первый этаж получился двухуровневым. Он полностью отдан под парадную зону гостиной-столовой-кухни. Стены оформлены декоративной штукатуркой на основе мрамора и кварца Travertino Romano (Oikos) с золотой расшивкой.
Парадная столовая. Обеденный стол с мраморной столешницей Black Cosmic, Visionnaire, модель Chatam. Стулья в обивке красным бархатом, Longhi, модель Daphn. Люстры и бра из позолоченных колец и кристаллов ручной работы, Luxxu, коллекция Babel.
Интерьер кухни. Кухонная мебель и остров, Aster Cucine, коллекция Luxury Glam. На полу – керамогранит, Rex, коллекции Classici di Rex Statuario.
Яркий таунхаус в стиле ар-деко. Интерьер кухни. Барные стулья, Longhi, модель Daphne. Над островом – подвесные светильники, Versace.
Одно из главных украшений лестничного холла – авторские витражи ручной работы в стиле ар-деко. Они выполнены мастерами из Калининграда, художники Александр Сплошной и Александр Полежаев.
Хозяйская спальня выполнена в сдержанной, благородной палитре. Обои, KT Exclusive, коллекция Glam. Их особенность в том, что поверхность красиво бликует при разном освещении. Вся мебель – Frigerio.
Яркий таунхаус в стиле ар-деко. Интерьер спальни. Кровать, Frigerio. Светильники, Sicis.
Гардеробная при спальне хозяев напоминает роскошный будуар. Стены окрашены краской насыщенного винного оттенка из палитры голландского бренда Ralston. Напольные зеркала сделаны на заказ. Мебельная фурнитура, Armac Martin, Великобритания.
Яркий таунхаус в стиле ар-деко. Интерьер гардеробной.
Хозяйская ванная комната украшена художественными витражами и мозаикой. Керамогранит, Caesar, коллекция Anima. Люстра, Iris Cristal.
Две детские имеют одинаковую планировку и различаются только цветом. Акцент – раздвижные двери встроенных шкафов с активным рисунком.
Рабочая зона в одной из детских.
Детский санузел. На стенах – плитка, Rex, коллекция Prexious. Мебель для ванной комнаты, Villeroy & Boch, коллекция Finion. Сантехника, TOTO.
Гостевой санузел. Стены оформлены керамогранитом Lea Ceramiche и мозаичным панно c рисунком тропического леса.
Открытая терраса. Фасад дома оформлен кирпичом ручной формовки в едином для всего комплекса ключе.
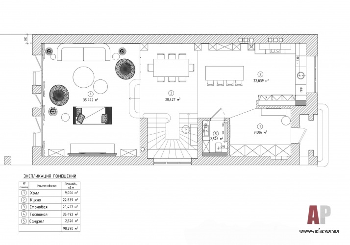
План первого этажа трехэтажного таунхауса в Калининграде. Общая площадь – 350 кв. м.
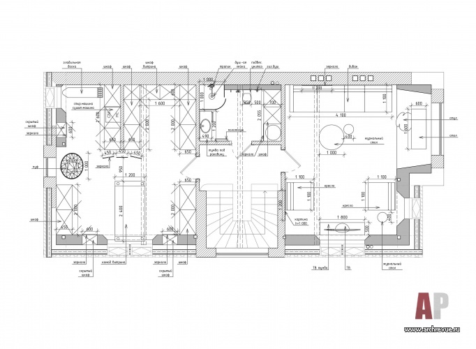
План второго этажа трехэтажного таунхауса в Калининграде. Общая площадь – 350 кв. м.
План третьего этажа трехэтажного таунхауса в Калининграде. Общая площадь – 350 кв. м.
Концепция
Этот эффектный таунхаус расположен в комплексе клубных домов «Легенды Озера», в самом престижном районе Калининграда – на берегу Верхнего озера. Заказчики дизайнера Алены Чашкиной приобрели таунхаус без отделки и обратились с пожеланием создать утонченный и функциональный интерьер для жизни и приема гостей. Дизайнер разработала проект в эстетике ар-деко, которую особенно ценит за благородство и декоративность, столь редкие в нашей повседневной жизни. Но ушла от прямого исторического цитирования, сделала ставку на насыщенный, яркий декор и солнечную палитру и получила интерьер-фейерверк, который дает ощущение радости и счастья.
Планировка
Трехэтажный таунхаус площадью 350 кв. м предназначен для проживания семьи с двумя детьми. Чтобы сделать жизни заказчиков более комфортной, дизайнер существенно откорректировала исходный план. Так, первый этаж, который размещается на двух уровнях, она превратила в одну большую парадную зону. Внизу, на уровне земли, находится просторная гостиная с выходом в сад; наверху – столовая-кухня и лестничный холл с элегантной лестницей. Благодаря отсутствию перегородок пространство выглядит цельным, а расположенные с двух сторон окна его прекрасно освещают. На втором этаже дизайнер сделала три спальни: хозяйскую со своей ванной комнатой и гардеробной и две одинаковые по планировке детские с общим санузлом. Третий этаж она отдала под гостевую спальню, гардеробную и еще один гостевой санузел.
Декор
В оформлении интерьера дизайнер использовала любимые приемы и материалы, создающие праздничный настрой. Например, декоративную штукатурку, которая содержит мрамор и кварц, авторские обои, изящный лепной декор, мозаику и художественные витражи с тропической тематикой, созданные местными мастерами. «Работа над проектом совпала с ежегодным визитом на Миланскую выставку ISaloni. Ключевые для интерьера предметы мы приобрели там, - рассказывает Алена Чашкина. – В том числе диван Nobu и журнальные столики Amadeus со столешницами из мрамора Pallisandro Onicato и Agatha Black от Longhi». К харизматичным предметам добавились неординарные светильники с шелковыми абажурами и отделкой кристаллами ручной работы и кожей ската. Цветовая палитра интерьера – теплая, деликатная, солнечная, акценты расставлены точечно, отчего в пасмурный день он выглядит сдержанно элегантным, но с появлением солнца загорается яркими красками и превращается в эстетский калейдоскоп.
Комплектация объекта
Строительные и отделочные материалы и изделия
Витражи, компания «Кенигсбергское стекло»
Декоративная финишная отделка стен, штукатурка Travertino Romano, поставщик Oikos; краска Ralston
Обои, поставщик KT Exclusive
Лепной декор Orac Decor
Паркетная доска Bauwerk Parquet
Керамогранит Rex (коллекции Classici di Rex Statuario и Prexious), Caesar (коллекция Anima), Lea Ceramiche
Свет Officina Luce, Luxxu, Versace, Brabbu, Sicis, Iris Cristal, Patrizia Garganti
Напольные зеркала, мебельная фурнитура Armac Martin, поставщик Furnitek Group
Ковры Massimo Copenhagen
Сантехника раковины и ванны Oasis и Villeroy & Boch, унитазы и биде TOTO, смесители Maier Kryos, полотенцесушители Zehnder (модель Zehnder Metropolitan)
Мебель
Гостиная диван Longhi (модель Nobu), журнальные столики Longhi (модель Amadeus)
Столовая обеденный стол Visionnaire (модель Chatam с мраморной столешницей Black Cosmic), стулья, Longhi (модель Daphn)
Кухня и остров Aster Cucine (коллекция Luxury Glam), барные стулья Longhi (модель Daphne)
Спальня кровать, тумбы, туалетный столик, кресла Frigerio
Мебель для ванных комнат Villeroy & Boch (коллекция Finion) и Oasis (коллекции Riviere и Casablanca)
Гардеробная шкафы, на заказ, изготовление «Фабрика интерьеров ЭлитДом»
Оборудование
Электрофурнитура (розетки, выключатели) Bticino
Оборудование кухни, встроенная техника Neff
Фото: Василий Буланов
客服
消息
收藏
下载
最近
























