查看完整案例

收藏

下载
占地虽小,但这座学校用“花园露台”创造了丰富多样的室外游乐区
如何在80x40m的占地面积内实现建筑密度的增加,同时在1878年维多利亚学校的旧址上创造一个合适的替代品,成为了当前最大的挑战。
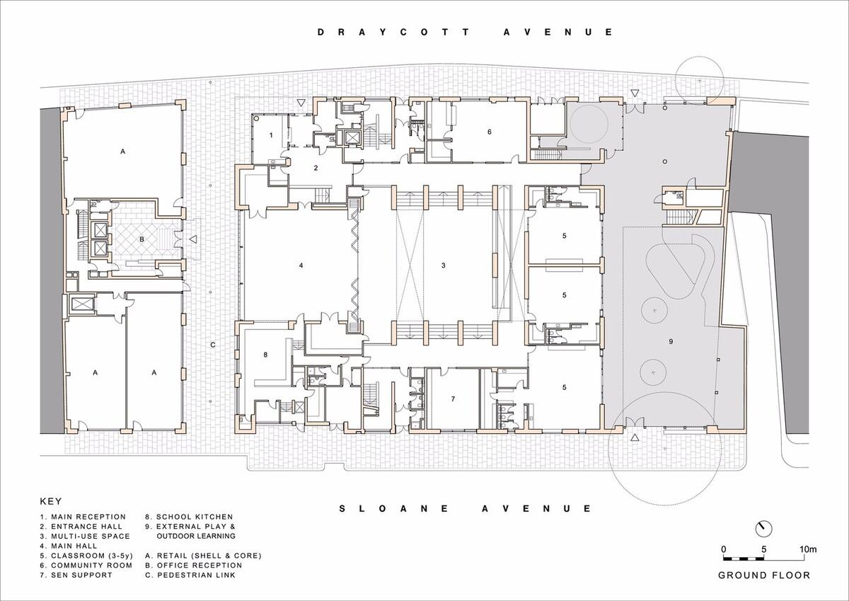
马尔堡学校重建项目的任务极具挑战性。除了需要为这座大型小学配套一个至少2,500平方米的室外游乐场外,地方政府的任务书还要求在这个受限制的城市地区设计一座新的商业大楼(办公室/零售)和一条行人通道。因此,如何在80x40m的占地面积内实现建筑密度的增加,同时在1878年维多利亚学校的旧址上创造一个合适的替代品,成为了当前最大的挑战。
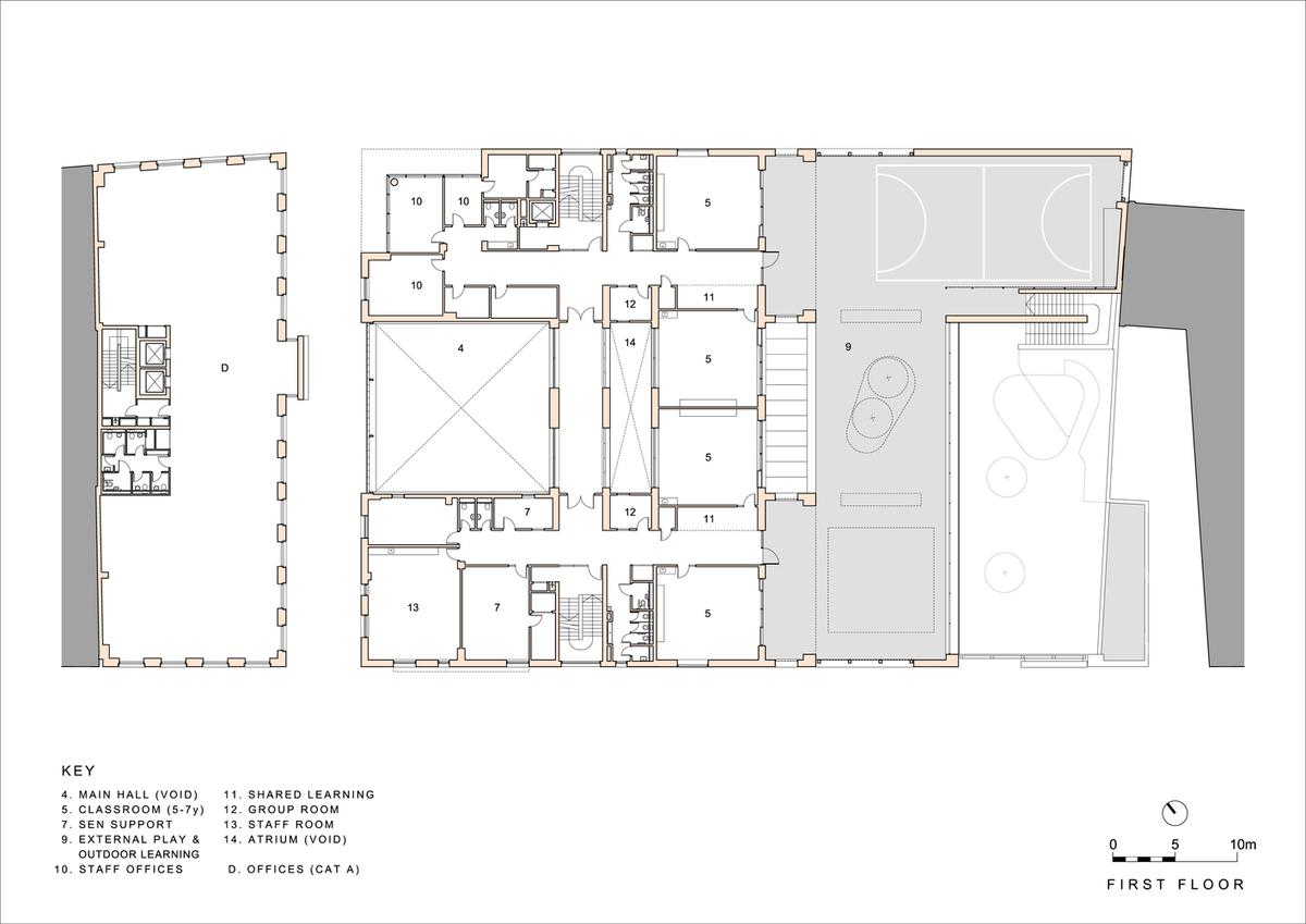
东侧一幢10层的公寓楼构成的体量限制与西侧一面5层高的界墙形成鲜明的对比,形成整个场地的阶梯式布局,一系列倾泻而下的“
花园露台
”,创造了丰富多样的与教室直接连通的室外游乐区。学校教室围绕这个垂直区域布局,从底层最小的学生(3-5岁)到顶层的中学生(9-11岁)。
主大厅和多功能空间构成了沐浴在两盏中央顶灯之下的由橡木镶板制成的社交中心,阶梯式的区域在其下方创造了更大的公共空间。
这个宏大的方案值得与地方规划局进行更紧密的对话。该设计旨在确保具有特色石纹的砌体结构细部设计能够向原始学校与参照附近1911年米其林大厦色彩装饰的绿色玻璃砖和圆形窗户致敬。该建筑呈现出极富感染力的城市形象,丰富的材质将生动的现代细节与历史悠久的当地环境无缝融合。
与曾经站在砖墙边界背后的维多利亚时代的学校不同的是,这座新建筑试图与公共领域紧密融合,社区入口和操场大门以一种欢迎的姿态面向大众。来自原始学校的历史悠久的重要基石和饰板重新安装到新建筑的立面上,以此来保护马尔堡学校的文化遗产。
在这个受限制的城市区域,优质户外学习区和游乐区的设置是一项重大挑战。园林绿化创造了多种多样的环境,带来了将自然融入城市生活的同时促进体育运动的社会效益。景观建筑师Macgregor Smith开发了种植和生物多样性战略,旨在最大限度地创造栖息地并增加物种多样性。自然与生态的融入已成为整个室外'游乐场'不可分割的一部分,其中包括支持学校“成长俱乐部”的高树栽植机和产业性园地。
该建筑采用低能耗的被动式系统,旨在最大限度地降低运营成本和未来的维护成本。教室采取自然通风,沿着阶梯式屋顶平台排列布局。地面到天花板的大跨度促进被动式的单面通风,并允许日光进入室内深处,以减少对内部照明的依赖。教室的混凝土拱腹外露,以充分利用上层热量的固有冷却效益。
图纸
区位图
一层平面图
二层平面图
三层平面图
四层平面图
五层平面图
剖面图
轴测图
手绘草图
立面窗户设计
退台示意图
项目信息
建筑师:Dixon Jones
地点:德拉科特大道,切尔西,伦敦SW3 3AD,
英国
主要建筑师:Dixon Jones
景观设计师:Macgregor Smith
面积:4095.0平方米
项目年份:2017
摄影师:Paul Riddle
制造商:Milliken, Nora, Schüco, Trespa
花园露台
英国
客服
消息
收藏
下载
最近

































