查看完整案例

收藏

下载
Consolidamento fondale di un edificio in muratura: particolari costruttivi
In questo articolo viene descritto un intervento di consolidamento delle fondazioni di un edificio in muratura portante che presentava cedimenti fondali e altre patologie. Attraverso una serie di tavole di dettaglio (scaricabili in PDF) si descrivono le tecniche utilizzate che vedono l’utilizzo di pali di piccolo e grande diametro. L’autore concede il loro utilizzo ai fini professionali, rinunciando al Copyright.
Massimo Mariani
Consolidamento fondale: interventi interni ed esterni all’edificio con pali di grande e di piccolo diametro
L’edificio, sul quale è stato eseguito l’intervento di consolidamento che si descrive, è costituito da differenti porzioni succedutesi nel tempo, tutte in muratura portante con fondazioni di tipo diretto sul terreno.
Il dissesto interessava tutto l’edificato: erano infatti evidenti cedimenti fondali, gibbosità delle murature verso l’esterno, lesioni interne nella pavimentazione e sulle pareti, alcune delle quali passanti e ben visibili.
Come riscontrato dalle indagini e dalle prove in sito, l’intero complesso è fondato su una coltre superficiale, dello spessore di circa 5 m, con caratteristiche geomeccaniche scadenti, sotto la quale è situato il terreno consolidato.
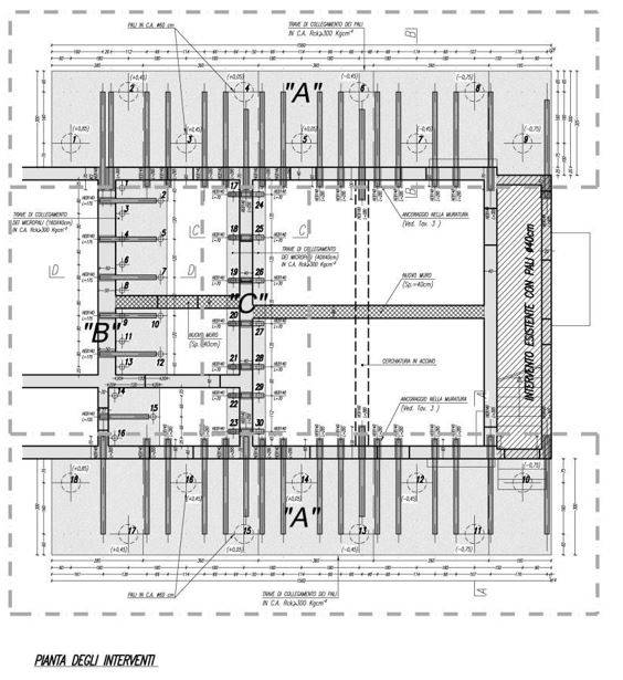
Per la stabilizzazione del fenomeno sono stati previsti tre tipi diversi di intervento: “A”, “B” e “C” (figura 1).
Tutte le fondazioni profonde eseguite sono state intestate nel substrato di base avente buone caratteristiche meccaniche.
Fig. 1 - Intervento di consolidamento fondale dall’esterno e dall’interno dell’edificio, ottenuto con pali di grande e di piccolo diametro. Pianta (@Massimo Mariani)
L’intervento è scaturito dalla necessità di agire dall’esterno dell’edificio (zone “A”) con il sistema a quinconce di pali di grande diametro, collegati alle strutture murarie perimetrali per mezzo di profilati d’acciaio, e dall’interno con pali di piccolo diametro, essendo stato impossibile operare lì con perforatrici di grandi dimensioni (zone “B” e “C”).
Fig. 2 - Intervento di consolidamento fondale con pali di grande diametro. (@Massimo Mariani)
Le zone “A” sono caratterizzate da un consolidamento con pali di grande diametro Φ 60 cm, in c.a., lunghi circa 12 m (figure 2 e 3) disposti a quinconce e collegati tra loro da una trave di coronamento, anch’essa in c.a., che contiene profilati d’acciaio HEB140 che sono stati inseriti nella muratura attraverso la perforazione di circa 20 cm di diametro, eseguita a carotaggio continuo, in totale assenza di rotopercussione (figure 4 e 5).
Fig. 3 - Ideazione dell’intervento di consolidamento fondale con pali di grande diametro. Inserimento dei profilati di acciaio nelle murature portanti (disegno a mano libera dell’Autore) (@Massimo Mariani)
La zona “B” mostra un intervento analogo ma ottenuto, per le ragioni già esposte, con pali di piccolo diametro Φ 20 cm, armati con un profilato d’acciaio tubolare Φ est. 114,3 mm di spessore 6,3 mm (figura 6 ).
La lunghezza dei micropali a quinconce della zona “B” è di circa 8 m, per i pali soggetti a trazione, e di 12 per quelli immediatamente accostati alla muratura da sottofondare, sottoposti a compressione (figura 7).
Fig. 4 - Intervento di consolidamento fondale con pali di grande diametro dall’esterno dell’edificio, di cui alla pianta di figura 1. Zone “A”. Carpenteria e armature (@Massimo Mariani)
Fig. 5 - Intervento di consolidamento fondale con pali di grande diametro dall’esterno dell’edificio, di cui alla pianta di figura 1. Sezione B-B. Zone “A”. Armatura pali (@Massimo Mariani)
La figura 8 mostra lo schema dell’intervento nella zona “C” per il quale è stato necessario prevedere l’esecuzione di micropali, già descritti, armati con tubo d’acciaio e giunzioni a manicotto filettate, e con travi di collegamento in c.a. nelle quali sono state inglobate le travi d’acciaio HEB140 di sostegno alla muratura.
Fig. 6 - Intervento di consolidamento fondale dall’esterno dell’edificio, di cui alla pianta di figura 1, con pali di piccolo diametro (micropali). Sezione D-D. Zona “B”. Carpenteria e armature (@Massimo Mariani)
Fig. 7 - Intervento di consolidamento fondale all’interno dell’edificio con pali di piccolo diametro (micropali), di cui alla pianta di figura 1. Sezione C-C. Zona “C” (@Massimo Mariani)
Queste ultime sono poste su due livelli diversi a causa della presenza di un salto di quota esistente in questa parte dell’edificio. Sarebbe stato forse utile scavare e portare le travi allo stesso livello per utilizzare un unico foro di collegamento ed un’unica trave di sostegno alla muratura.
Ciò avrebbe, però, comportato danni in termini di diminuzione ulteriore dell’attuale portanza del terreno e avrebbe anche potuto causare problemi di sicurezza nell’esecuzione dei lavori. L’armatura dei cordoli di sommità dei micropali singoli, composta da 4+4 Φ 16 longitudinali e da una staffa Φ 12 ogni 20 cm, ha avuto l’esclusiva funzione di collegamento trasversale e di contenimento delle sollecitazioni provenienti dalla trave d’acciaio.
Fig. 8 - Ideazione dell’intervento con pali di piccolo diametro. Inserimento di profilati di acciaio, a quote diverse, nelle murature portanti (disegno a mano libera dell’Autore). (@Massimo Mariani)
Questo intervento non ha alterato in alcun modo lo stato dei luoghi, né l’idrogeologia, in quanto i pali non hanno avuto funzione di diaframma nei riguardi della falda freatica perché adeguatamente distanziati tra loro. Le opere sono rimaste interamente al di sotto del piano di campagna e al completamento dei lavori è stata ripristinata la morfologia preesistente.
Particolari costruttivi intervento di consolidamento fondale - Figura 1 PDF
Particolari costruttivi intervento di consolidamento fondale - Figura 2 PDF
Particolari costruttivi intervento di consolidamento fondale - Figura 3 PDF
Particolari costruttivi intervento di consolidamento fondale - Figura 4 PDF
Particolari costruttivi intervento di consolidamento fondale - Figura 5 PDF
Particolari costruttivi intervento di consolidamento fondale - Figura 6 PDF
Particolari costruttivi intervento di consolidamento fondale - Figura 7 PDF
Particolari costruttivi intervento di consolidamento fondale - Figura 8 PDF
Massimo Mariani
Titolare dello Studio Ricerche Applicate, Presidente del Centro Studi Sisto Mastrodicasa
Scheda
Contatti:
Sito Web
客服
消息
收藏
下载
最近










