查看完整案例

收藏

下载
古老“希腊街区”的一座现代办公楼,散发着深深的肃杀气息
该建筑所在的城市区域被称为“希腊住区”,它是这座城市的标志性区域,也是最古老的城市区域之一。
处于瓦尔纳的历史核心区域,距离港口很近,并凭借其贸易往来和市政管理而被众人所知。建筑占据了一块由相邻建筑的无窗山墙面划定出来的角落处。五层高的楼房能让内部的办公室用于出租、组合或者单独使用。
“希腊街区”,它是这座城市的标志性区域,也是最古老的城市区域之一。
因此我们决定向周围的环境致敬,设计一栋结构简洁明快的建筑,并运用独特的当代材料
设计完成。活跃的历史环境,占地面积狭小,有限的预算和阴暗狭窄的中央街道,这就必然导致了以下几个我们需要解决的
放弃使用
轮廓分明的
窗户,门,墙,飞檐等与周围建筑特色相呼应的元素。
创造一种幕墙式的立面造型,节省内部空间,使建筑物形成最精致的外观。
设计的这座建筑一旦
建成,将不需要任何的饰面。因此,天花板和剪力墙均采用清水混凝土的形式,灯被嵌入在预设计好灯槽的混凝土板中。
对立面结构要有所表达,同时把它与
建筑内部的建造
整合在一起,避免湿法施工,保温和粉刷等情况的出现。
尽可能让自然光线进入,尽可能让人的视线看向窗外。
该建筑的结构是框架结构,
所用的材料是天然的石材、木材、混凝土、铝,以及保持在最低限度饰面装饰
。在建造过程中,不但所有现存的树木都得到了保护,还在院子里加种了青草和藤蔓等植物。
玻璃幕墙是由黑色铝结构支撑的
1米大小的模块面板组成的。主要使用了两种具有高度绝缘性能的材料:透明或半透明的,并通过最小的细部和填充接头来连接。
建筑由无开窗的山墙面界定出来,内衬以红色花岗岩。屋顶有部分
采用
玻璃,部分采用钢筋混凝土材质。露台统一采用木板
铺地。
柱和板的边缘采用橡木贴面中密度纤维板来装饰,通过密度不断变化的玻璃来展示立面上的结构做法。
楼梯扶手使用同一
种木材作为饰面。楼梯采用悬臂式的钢材踏步,内衬花岗岩板。
图纸
总平面图
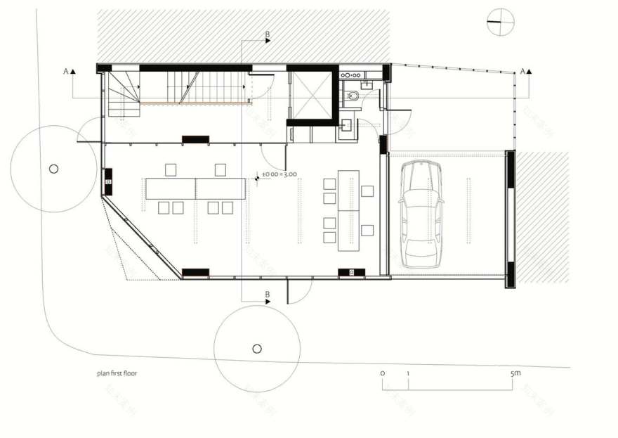
一层平面图
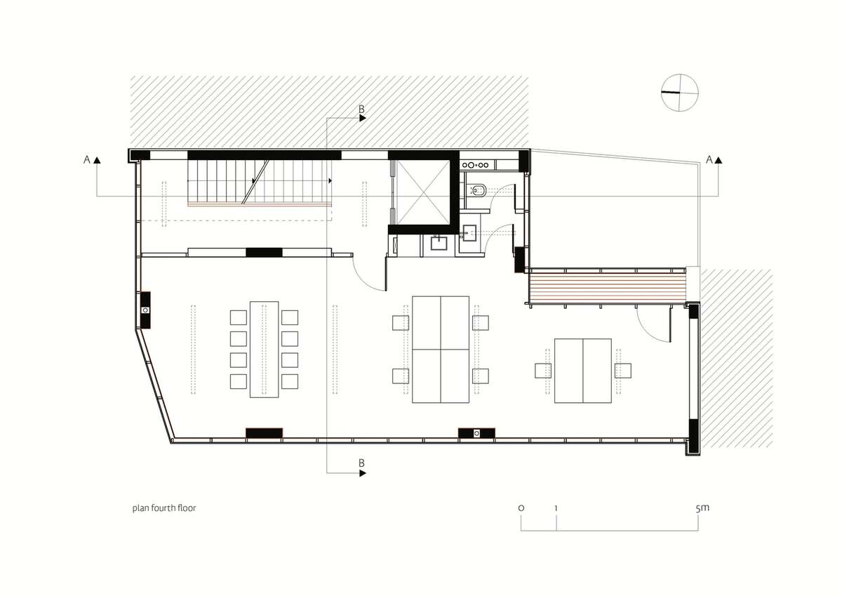
四层平面图
立面图
剖面图
玻璃幕墙 轴测图
项目信息
建筑设计:
MMXX
建筑事务所
项目类型:商业建筑
办公楼
项目状态:已建成
项目时间:
2015年
项目规模:
0-1000平方英尺
客服
消息
收藏
下载
最近




















