查看完整案例

收藏

下载
C14 Buiksloterham von Studioninedots
Helke Kölschbach
Das C14 von Studioninedots im Cityplot Buiksloterham. Foto: Sebastian van Damme
In Amsterdam entsteht mit C14 ein außergewöhnliches Gebäude, das die industrielle Vergangenheit des Stadtteils Buiksloterham neu interpretiert. Entworfen vom Architekturbüro Studioninedots, präsentiert sich C14 als zeitgemäßes Lagerhaus in schräger Ausführung. Diese architektonische Neudeutung spiegelt die industrielle Geschichte des Standorts wider und definiert zugleich die Zukunft der neuen Stadtstruktur namens Cityplot Buiksloterham.
Buiksloterham, ein ehemaliges Industriegebiet am nördlichen Ufer Amsterdams, wird im Rahmen des Projekts Cityplot zu einem lebendigen, urbanen Quartier umgestaltet. Studioninedots und DELVA Landscape Architects entwickelten gemeinsam das Konzept, das auf Nachhaltigkeit (Nachhaltigkeit: die Fähigkeit, natürliche Ressourcen so zu nutzen, dass sie langfristig erhalten bleiben und keine negativen Auswirkungen auf die Umwelt haben. Nachhaltigkeit in der Architektur – Gebäude, die die Umwelt schützen und gleichzeitig Ästhetik und Funktionalität bieten Nachhaltigkeit und Architektur sind zwei Begriffe, die heute mehr denn je miteinander verbunden…), Diversität und gemeinschaftlichem Nutzen basiert. Ziel ist es, öffentliche Räume, Gebäude und Landschaft als integriertes System zu vereinen.
Das Herzstück des Cityplot-Konzepts ist die Schaffung eines durchmischten Stadtviertels, in dem Wohnraum, Arbeitsplätze und öffentliche Einrichtungen miteinander verwoben werden. Dies geschieht auf Parzellen mit einer idealen Größe von 100 x 100 Metern, die ausreichend Flexibilität für architektonische Vielfalt bieten.
Die glänzende Magnelis-Stahl Fassade, die im Schweißbecken verzinkt wurde. Foto: Sebastian van Damme
Die Mischung aus Holz und Stahl mit dem neu gebauten Holzschuppen. Foto: Sebastian van Damme
Das C19 mit schwarzer Fassade. Foto: Sebastian van Damme
Möglichst viel Tageslicht für die einzelnen Balkone. Foto: Sebastian van Damme
C14 befindet sich direkt am Tolhuiskanaal und hebt sich mit seiner markanten Erscheinung vom Umfeld ab. Die Fassade (Fassade: Die äußere Hülle eines Gebäudes, die als Witterungsschutz dient und das Erscheinungsbild des Gebäudes prägt.) aus Magnelis-Stahl verleiht dem Gebäude eine besondere, fast mystische Anmutung. Je nach Lichteinfall spiegelt sie das Sonnenlicht oder verschmilzt mit dem Himmel. Diese Dualität ist nicht nur ein optisches Highlight, sondern verweist auch auf die industrielle Vergangenheit Buiksloterhams.
Die Gestaltung von C14 basiert auf der Idee eines Lagerhauses – allerdings in einer modernen, gekippten Variante. Die anguläre Form nutzt die Funktionalität eines traditionellen Satteldachs: Tageslichtlenkung: Auf einer Seite maximiert die Struktur den natürlichen Lichteinfall, während sie auf der anderen Seite Schatten (Schatten: Eine dunkle oder abgedunkelte Fläche, die durch Abschattung oder Blockierung des Tageslichts entsteht.) spendet und im Sommer vor Überhitzung schützt.
Südorientierte Außenbereiche: Sämtliche Balkone sind zur Wasserseite hin ausgerichtet und bieten den Bewohnern geschützte, lichtdurchflutete Außenräume.
Funktionale Raumaufteilung und kreative Erdgeschossnutzung
Ein weiterer innovativer Aspekt von C14 ist die Neuinterpretation der Erdgeschossnutzung. Statt das Erdgeschoss ausschließlich für Wohneinheiten oder Parkplätze zu nutzen, wurde der Fahrradabstellraum in ein separates Holzpavillon ausgelagert. Dadurch entsteht im Hauptgebäude Raum für kreative Gewerbeflächen direkt am Wasser. Dies belebt das Quartier zu jeder Tageszeit und schafft eine Verbindung zwischen privaten und öffentlichen Bereichen.
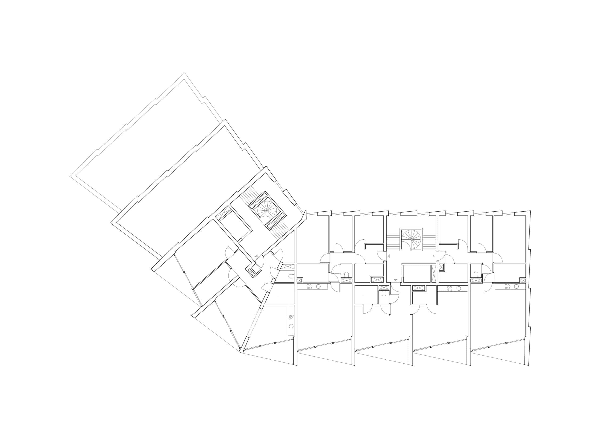
Hinter der gleichförmigen Fassade (Fassade: Die äußere Hülle eines Gebäudes, die als Witterungsschutz dient und das Erscheinungsbild des Gebäudes prägt.) verbirgt sich eine vielfältige Wohnlandschaft:
Erdgeschosswohnungen mit Glasfronten zur Straße hin.
Großzügige Wohnungen mit Balkonen und Blick auf den Kanal.
Penthouse-Wohnungen im oberen Gebäudeteil mit maximaler Privatsphäre.
Diese Raumaufteilung sorgt für eine Balance zwischen Individualität und Gemeinschaft.
Entstehungsprozess der schrägen Bauweise.
Sechstes Obergeschoss
Erstes Obergeschoss
Erdgeschoss
Holzschuppen für die Räder
Nachhaltigkeit: die Fähigkeit, natürliche Ressourcen so zu nutzen, dass sie langfristig erhalten bleiben und keine negativen Auswirkungen auf die Umwelt haben. Nachhaltigkeit in der Architektur – Gebäude, die die Umwelt schützen und gleichzeitig Ästhetik und Funktionalität bieten Nachhaltigkeit und Architektur sind zwei Begriffe, die heute mehr denn je miteinander verbunden… ist ein zentraler Bestandteil des Projekts. Magnelis-Stahl bietet nicht nur eine hohe Korrosionsbeständigkeit, sondern ist auch vollständig wiederverwendbar. Ergänzt wird die Stahlfassade durch einen kleinen Pavillon aus Holz: Ein natürlicher Werkstoff, der zur Herstellung von Schalungen und Gerüsten genutzt werden kann. Es wird oft für Bauvorhaben im Bereich des Holzbaus verwendet., der als Fahrradabstellraum und Regenwasserspeicher dient. Das gesammelte Wasser wird von den Bewohnern des Gebäudes genutzt, was den ökologischen Fußabdruck weiter reduziert.
Die Kombination aus kaltem Stahl: Ein Werkstoff, der aufgrund seiner hohen Belastbarkeit und Stabilität oft bei Gerüstkonstruktionen eingesetzt wird. und warmem Holz schafft spannende Kontraste und verleiht dem Gebäudeensemble eine besondere Atmosphäre. Nachts verwandelt sich der beleuchtete Pavillon in einen leuchtenden Orientierungspunkt und verleiht dem Stadtbild zusätzliche Charakterstärke.
C14 als Teil eines großen Ganzen
C14 ist nur eines von insgesamt sieben Gebäuden, die Studioninedots auf dem Plot C, auch bekannt als Tolhuiskade, realisiert. Das Konzept sieht vor, jedes Gebäude in einem eigenen, unverwechselbaren Stil zu gestalten, um eine architektonische Vielfalt zu gewährleisten.
C19, das erste kleinere Gebäude des Cityplot-Konzepts, bildet dazu den Kontrapunkt. Es besteht aus zwei übereinandergestapelten Maisonette-Wohnungen und hebt sich mit seiner schwarzen Fassade: Die äußere Hülle eines Gebäudes, die als Witterungsschutz dient und das Erscheinungsbild des Gebäudes prägt. deutlich von C14 ab. Nach und nach werden weitere kleinteilige Strukturen das Gesamtbild der Tolhuiskade bereichern.
Fazit
C14 ist mehr als nur ein Wohngebäude. Es steht symbolisch für die Transformation Buiksloterhams vom Industriegebiet zum urbanen, nachhaltigen Stadtviertel. Die gelungene Verbindung von Vergangenheit und Zukunft, gepaart mit einer durchdachten Raumaufteilung und innovativen Details, macht C14 zu einem herausragenden Beispiel zeitgenössischer Architektur.
Das Projekt verdeutlicht, wie sich traditionelle Elemente neu interpretieren und in einen modernen, funktionalen Kontext überführen lassen – und wie Architektur die Geschichte eines Ortes aufgreifen und gleichzeitig dessen Zukunft gestalten kann.
Studioninedots
客服
消息
收藏
下载
最近












