查看完整案例


收藏

下载
© Guy Wenborne
盖伊·温伯恩
架构师提供的文本描述。CorpArtes文化中心位于一个活跃的城市环境中,周围是高耸的玻璃办公大楼,毗邻一条餐厅内衬的人行横道。该项目是一个将不相连的城市资产整合在一起,并将它们作为城市目的地融入文化中心的机会。
Text description provided by the architects. The CorpArtes Cultural Center is located in an active urban setting, surrounded by tall glass office towers and adjacent to a restaurant-lined pedestrian boulevard. The project is an opportunity to bring together disconnected urban assets and integrate them into the Cultural Center as an urban destination.
© Guy Wenborne
盖伊·温伯恩
该计划是一个新的设施和现有空间的翻新和重新利用的结合.剧院空间是在地下建立的,利用空出的停车场来支持基础设施。剧院的飞行塔是唯一看得见的音量,在街道上,作为一个雕塑标志的公告和户外活动。它的软反射与全玻璃环境形成鲜明对比.一个开放的大型广场接待游客,并将步行街与沉陷的雕塑庭院连接起来。
The program is a combination of new facilities and the renovation and re-purposing of existing spaces. The theater space was created underground utilizing vacated parking areas to support the infrastructure. The theater fly tower is the only visible volume at street level, acting as a sculptural marker for announcements and outdoor events. Clad with bead-blasted stainless steel plates, its soft reflection contrasts with the all-glass surroundings. A large open plaza receives visitors and connects the pedestrian boulevard to a sunken sculpture court.
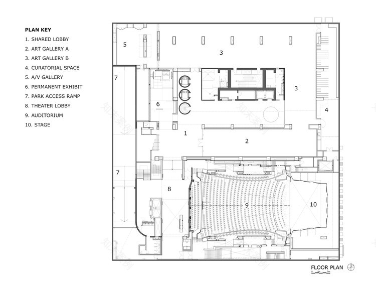
Floor Plan
雕塑法庭。
The Sculpture Court.
在前往主大厅的途中,游客们来到了一个开阔的空间,里面收藏了萨尔瓦多·达利、乔治·德·奇里科、罗伯托·马塔和奥古斯特·罗丁的20世纪雕塑。沉入的庭院让人有一种亲密的观赏体验,而雕塑的位置可以邀请来自写字楼、广场和下花园咖啡厅的旁观者。
On the way to the main lobby, visitors descend upon an open space containing a collection of 20th century sculptures by Salvador Dali, Giorgio de Chirico, Roberto Matta, and Auguste Rodin. The sunken court enables an intimate viewing experience, while the sculptures are positioned to invite onlookers from the office towers, plaza, and the lower garden café.
© Guy Wenborne
盖伊·温伯恩
艺术画廊
The Art Galleries
地下画廊环绕着一座25层高的玻璃办公大楼的底部,这座大楼是为了让自然光线进入主大厅而开放的。画廊有三种不同的配置,允许在展览布局、照明和活动规划方面具有灵活性。照明的目的是为画廊墙壁提供均匀的照明,为雕塑提供重音照明。地板是小的格式,端面木块,方便更换后,锚定艺术作品。
The underground galleries wrap around the base of a 25-story glass office tower that was opened to allow natural light into the main lobby. The galleries have three distinct configurations, allowing for flexibility in exhibition layout, lighting, and event programming. The lighting is designed to provide even illumination for the gallery walls and accent lighting for sculptures. The floors are small format end-grain wood block allowing for easy replacement after anchoring artwork.
© Guy Wenborne
盖伊·温伯恩
表演艺术剧院
The Performing Arts Theater
该空间被认为是一个高度混响的自然声音音乐会卷。为了在有限的空间内达到所需的音响效果,管弦乐队的座位降低了一层。此外,附属空间在声学上与主剧院容量耦合。
The space is conceived as a highly reverberant volume for natural acoustic concerts. To achieve the desired acoustics within a limited space, the orchestra seating level was dropped one floor down. Moreover, ancillary spaces were acoustically coupled with main theatre volume.
© Guy Wenborne
盖伊·温伯恩
© Guy Wenborne
盖伊·温伯恩
The 900-seat proscenium theater is configured as a stretched horseshoe with galleries and shallow boxes along the perimeter. At the parterre level, shallow balconies built of solid cross laminated timber were shaped to deliver early reflections to the main audience seating area. For the theatrical mode setting, the room is equipped with deployable absorptive banners installed behind slotted screens not visible from the seating areas.
© Guy Wenborne
盖伊·温伯恩
Architects Renzo Zecchetto Architects
Location Santiago, Santiago Metropolitan Region, Chile
Architect in Charge Renzo Zecchetto
Area 60000.0 m2
Project Year 2015
Photographs Guy Wenborne
Category Cultural Center
Manufacturers Loading...
客服
消息
收藏
下载
最近




















