查看完整案例

收藏

下载
Vizuelizacija: Best Plan
U Belfortskoj ulici na Ledinama planirana zgrada od preko 5.000 kvadrata
Privatni investitor planira izgradnju stambeno-poslovnog objekta sa 40 stanova, četiri lokala i podzemnom garažom sa 60 parking mesta.
Nosilac izrade urbanističkog projekta je preduzeće
Best Plan d.o.o.
Nikola Janković
Ortofoto snimak šire situacije
Ukupna bruto površina od preko 5.000 kvadrata
Planirani stambeno-poslovni objekat predviđen je u ulici Belfortska b.b. na katastarskoj parceli 6901, KO Novi Beograd. Površina pacele iznosi
Novoprojektovani objekat spratnosti je
Po+P+3+Ps
oko 5.118 m²
Nadzemne etaže imaju bruto površinu od preko 3.750 kvadrata; Vizuelizacija: Best Plan
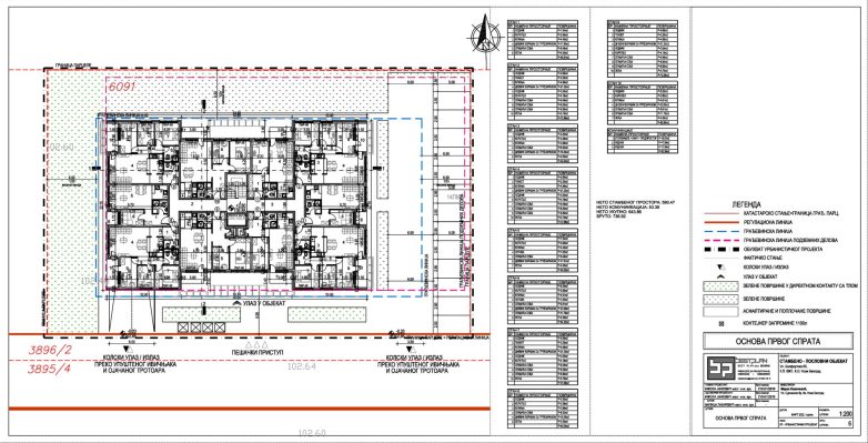
Na tipskim spratovima i povučenom spratu projektovano je po 10 stambenih jedinica različitih struktura.
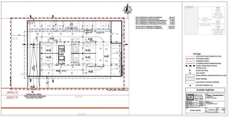
U podrumu se planira izgradnja garaže sa ukupno
60 parking mesta
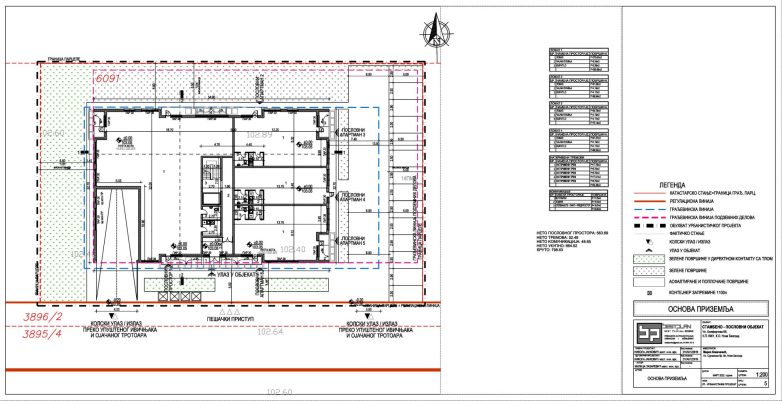
U prizemlju je planiran ulaz u stambeni deo objekta sa hodnikom i vertikalnom komunikacijom i
četiri lokala sa zasebnim ulazima
, ukupne neto površine 563 m².
Na tipskim spratovima i povučenom spratu projektovano je po 10 stambenih jedinica različitih struktura, što znači da je u objektu projektovano
ukupno 40 stambenih jedinica
Lokali su smešteni u prizemlju objekta; Vizuelizacija: Best Plan
Na javnom uvidu do 18. oktobra
Zainteresovani mogu tokom javne prezentacije da
izvrše uvid u Urbanistički projekat
, kao i da svoje
primedbe i sugestije na planirana rešenja
u pisanoj formi dostave Sekretarijatu za urbanizam i građevinske poslove Grada Beograda, najkasnije do 18. oktobra 2023. godine.
Situaciono-nivelacioni plan sa osnovom krova
Osnova podruma
Osnova prizemlja
Osnova 1. sprata
Osnova 2. sprata
Osnova povučenog sprata
Preseci
Fasade
Vizuelizacija: Best Plan
Vizuelizacija: Best Plan
Vizuelizacija: Best Plan
Lokali su smešteni u prizemlju objekta; Vizuelizacija: Best Plan
Vizuelizacija: Best Plan
客服
消息
收藏
下载
最近
















