查看完整案例


收藏

下载
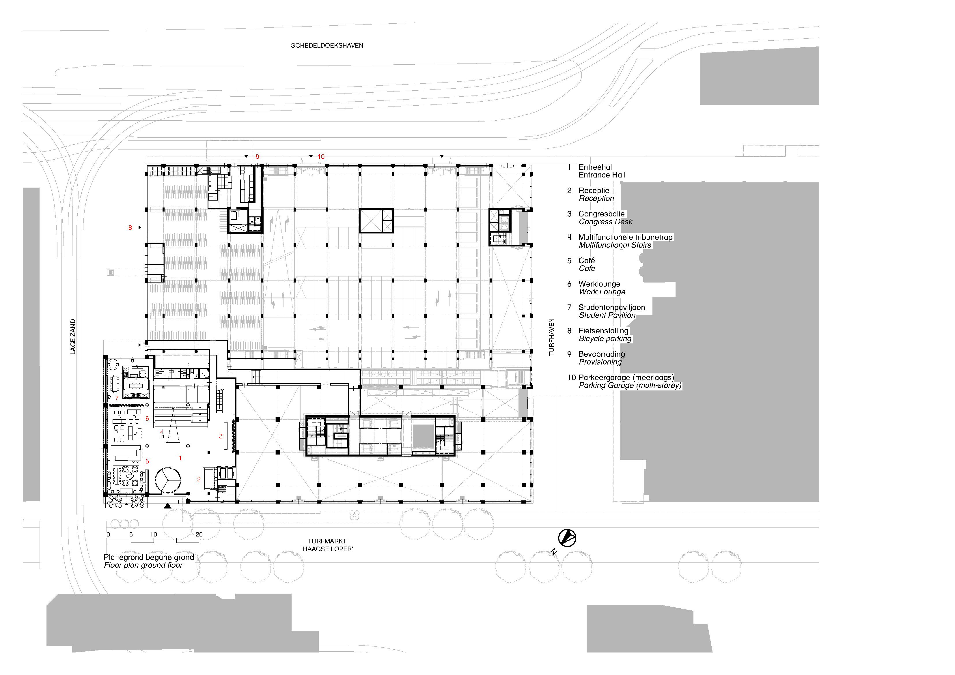
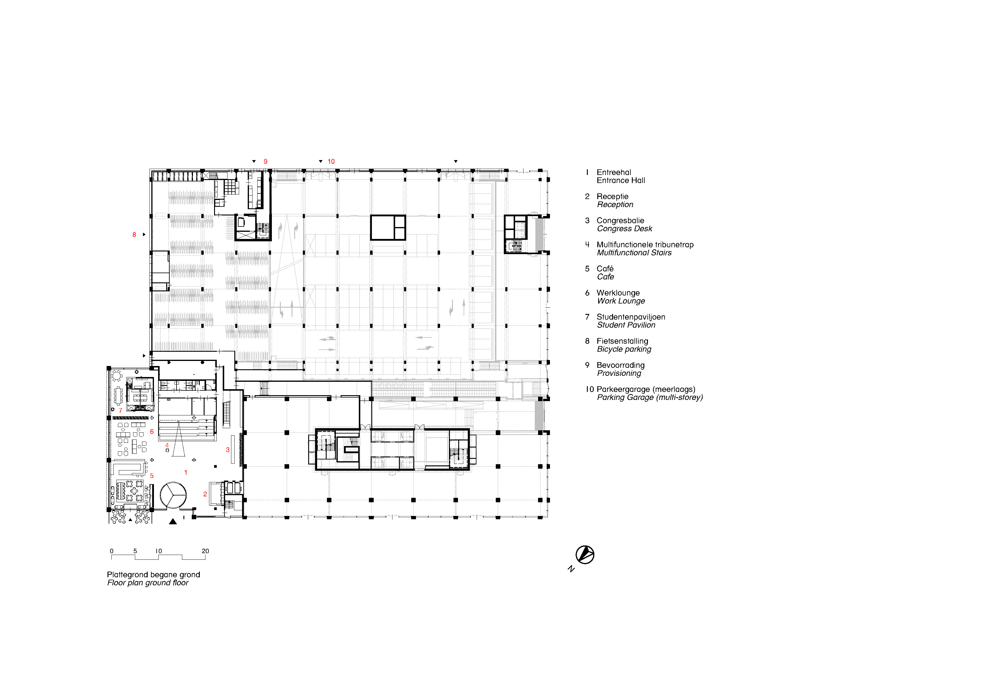
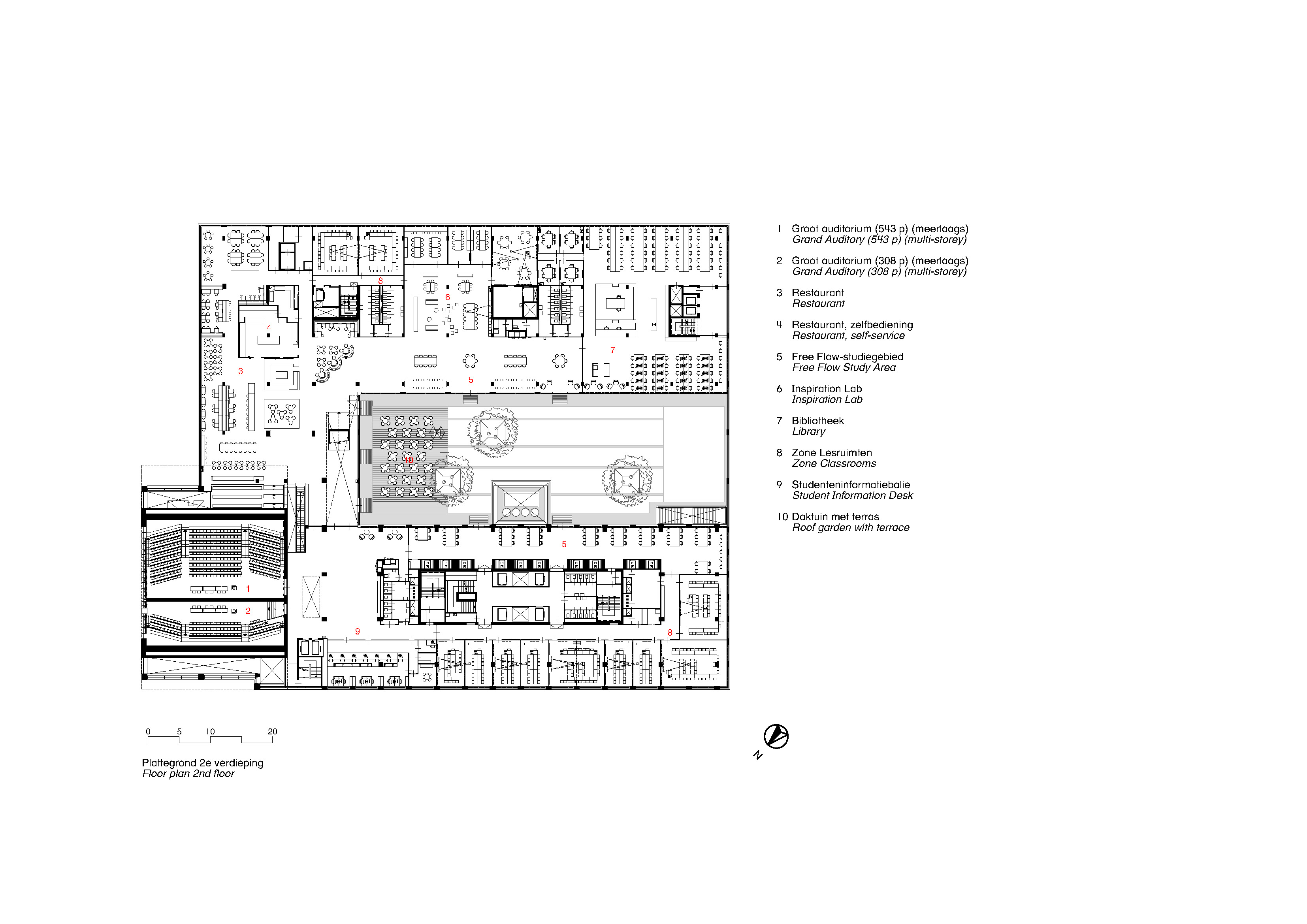
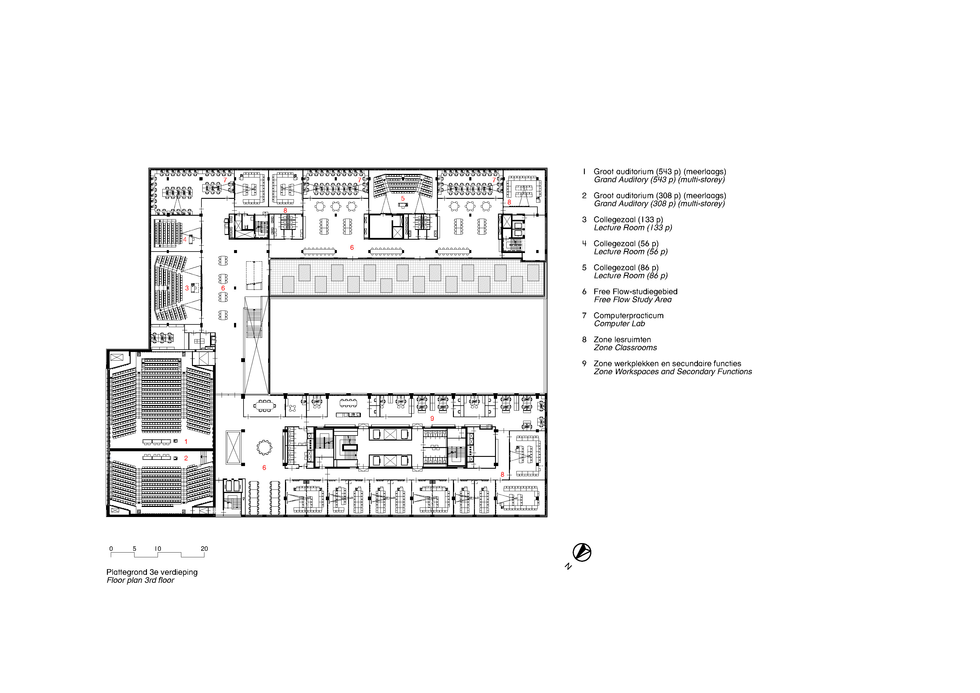
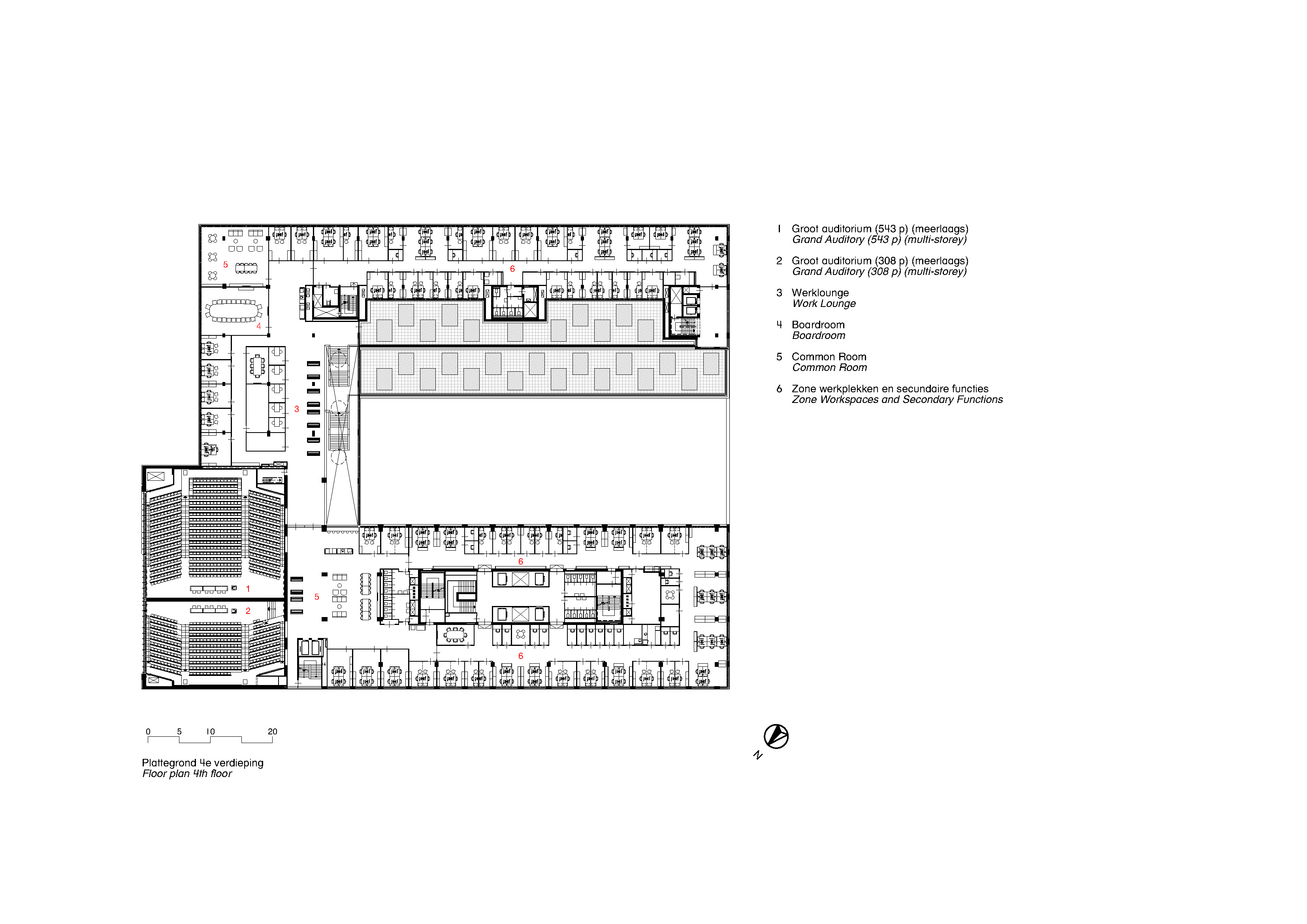
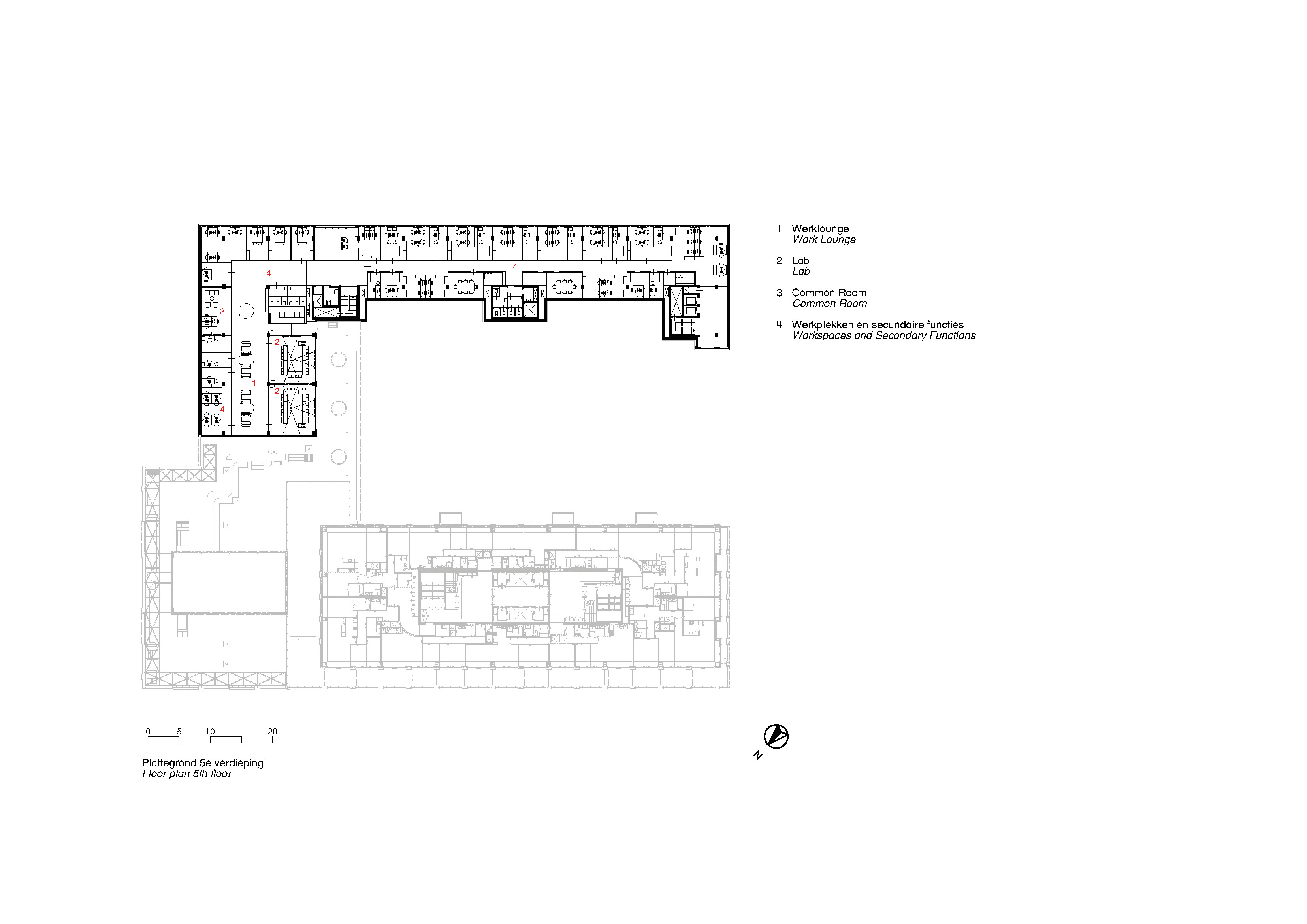
海牙莱顿大学校园
莱顿大学的新系位于海牙的维恩海文区。该司设在荷兰内政部的原大楼内,该大楼已完全改造。它使学生和雇员都能在海牙市中心的鼓舞人心的环境中学习和工作。莱顿大学的课程很好地融合了海牙市的主题,海牙市的特点是国际和平、正义与安全、国际治理以及荷兰政府的席位。
StudioLeon的建筑/内部借助StudioLeft的帮助,被设计为内部设计。
室内设计的特色是使用竹子做墙壁、窗框和定制家具。在此基础上,盖斯特设计的基本结构的基础上增添了温暖。
Firm Studio Leon Thier
Type Educational › University
STATUS Built
YEAR 2016
SIZE 25,000 sqft - 100,000 sqft
BUDGET $1M - 5M
keywords:architecture, architecture news, interiors, interior design, portfolio, spec, brands, marketplace, products Campus The Hague, University of Leiden
关键词:建筑,建筑新闻,室内设计,组合,规格,品牌,市场,产品校园海牙,莱顿大学
客服
消息
收藏
下载
最近
































