查看完整案例

收藏

下载
Rehabilitación de una una antigua fábrica como nuevo centro cultural por And Studio
[Shanghai] China
Rehabilitación de una una antigua fábrica como nuevo centro cultural por And Studio
La constructora Shanghai Construction Group encargó a los arquitectos de
And Studio
la creación de un centro cultural en el lugar donde se levantaba una fábrica de ladrillo del siglo XVII de la dinastía Ming, Shanghai, China. La empresa constructora pretendía demoler la antigua fábrica, pero los arquitectos vieron en ella un gran potencial para su rehabilitación y reconversión.
El proyecto consiste en doce edificios, cada uno con una función diferenciada, asentados sobre un gran parque. De esta manera, se crean diferentes áreas, como una zona de Coworking, una sala de conferencias transformable, varias galerías de arte, un salón multifuncional o incluso un estudio de radio, que conforman un lugar de encuentro para los vecinos de los barrios y pueblos de alrededor.
El proyecto de
And Studio
se crea entablando un diálogo con la ruina existente y perfeccionando la morfología urbana, de manera que ofrece a los ciudadanos un espacio de calidad que se convierte en un importante núcleo cultural y social.
Sin olvidar el alma industrial de la zona, el estudio da una nueva vida a los edificios reinventando su lenguaje mediante la mezcla de materiales contemporáneos, como el acero, y tradicionales, como el ladrillo, así como mejorando la espacialidad y la experiencia del usuario, cuidando la relación de los edificios con el entorno e incorporando nuevos espacios sensibles y dinámicos.
Descripción del proyecto por
And Studio
El Centro Cultural Yangtze River 8342 es un proyecto cultural de 15.000 m² ubicado en el lugar donde se levantaba una antigua fábrica de ladrillos de la dinastía Ming del siglo XVII, ubicada al norte de Shanghái. En 2018, el alcalde de Shanghái eligió este antiguo emplazamiento industrial para convertirse en el catalizador de un gran proyecto cultural destinado a renovar y potenciar varios pueblos de la región de Shanghái.
La intención original del propietario era destruir todo el sitio, y nuestro objetivo era convencerlo del interés de una metamorfosis. Reestructurar el marco y completar la estructura urbana para reinventar un pueblo, un lugar de intercambio y encuentro. Trabajamos en el desarrollo de las funcionalidades de cada uno de los edificios. Al mismo tiempo, hemos elaborado y perfeccionado la composición urbana del lugar: las perspectivas, las secuencias de sólidos y vacíos, el paisaje, la arquitectura... Los materiales y sus alternancias, la luz, el recuerdo del lugar original. Crear espacios sensibles, a lo largo de un camino, dinámicos y propicios a la contemplación y al deambular.
Hemos utilizado materiales locales, en particular ladrillos, destacando la historia del lugar. Utilizamos principalmente ventilación natural, reciclaje de agua y tratamos de minimizar el impacto en el medio ambiente, utilizando energías renovables. Hemos recibido la certificación LEED Platinum para todo el vecindario. En los últimos siete años, sólo otros diez edificios en China lo han recibido.
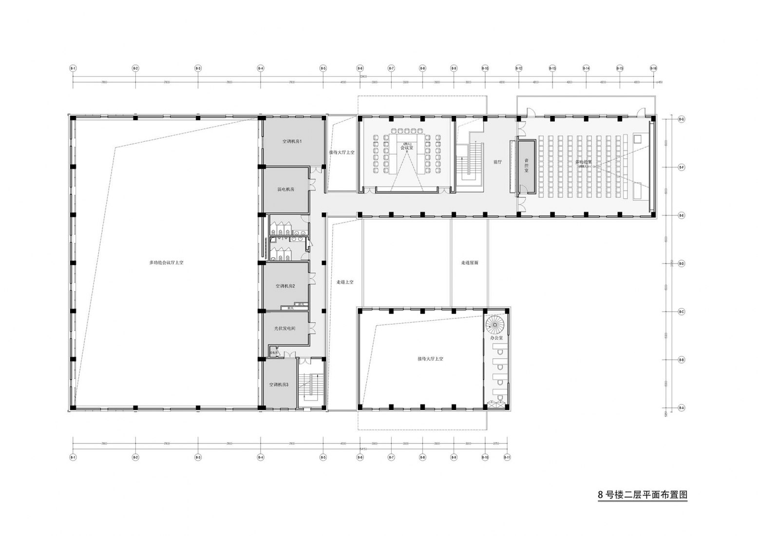
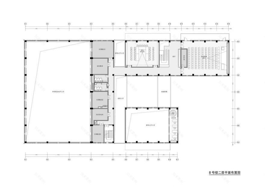
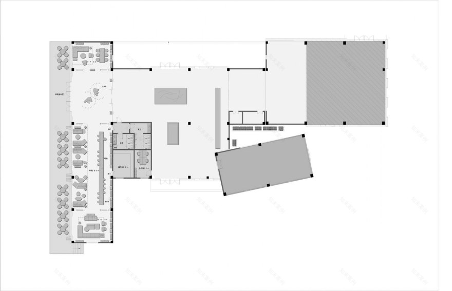
El proyecto consta de doce edificios, con diferentes funciones:
- Un área de coworking, distribuida alrededor de un patio verde, combinación de ladrillos naranjas, perfiles metálicos y yeso que enfatizan el volumen. Los espacios se organizan en torno a una secuencia de jardines tratados al estilo tradicional chino.
- Varios restaurantes se encuentran junto al eje principal. Sus interiores resaltan el alma industrial del lugar.
- Una sala de conferencias, con capacidad para 800 personas, se puede transformar según las necesidades del cliente.
- Varias galerías de arte conducen a una gran sala de exposiciones y una cafetería frente a un depósito de agua. Muy contaminado, ha sido completamente purificado.
- Un salón multifuncional con una escena a dos lados se abre al parque como su extensión natural.
- Un estudio de radiodifusión revela al fondo el elemento emblemático del proyecto original, la alta chimenea de la fábrica de ladrillos. Hoy sin uso, sigue siendo un testimonio del pasado industrial del lugar.
And Studio
Shanghai Construction Group Jinshan Co., Ltd.
15.400 m².
Programa.- Comercio, oficinas, centro de convenciones. Tipo.- Concurso ganado.
Shanghai, China.
Duccio Cardelli, Ning Wang. And Studio
Hace 15 años,
And Studio
era solo un boceto realizado en un café parisino, un deseo que dos jóvenes diseñadores,
Duccio Cardelli
y
Ning Wang
, tenían juntos. Después de trabajar y aprender durante 12 años en el estudio de arquitectura mundialmente conocido Christian de Portzamparc, premio Pritzker en 2014, se fundó And Studio París, seguido poco después por el Shanghai.
Desde entonces la firma no paró de crecer en experiencia y proyectos por todo el mundo, colaborando con los mejores expertos internacionales y locales. El equipo de
And Studio
está compuesto hoy por un nutrido grupo de personas apasionadas por el territorio, la arquitectura, enfocando su diseño en torno a las necesidades humanas. Su objetivo es dar forma al mundo del mañana en lo que piensan que debería ser: conectando diferentes comunidades y promoviendo sus integraciones, buscando una buena calidad de vida, cultivando el conocimiento y la educación de las generaciones jóvenes, siguiendo las tecnologías emergentes y lo más importante respetando el planeta. La arquitectura refleja su tiempo y sus valores, sus prácticas sociales y culturales. And Studio fundó un lugar de conexiones e intercambio, creando la comunicación y conexión necesaria entre profesionales para encontrar siempre ideas de nuestro tiempo.
客服
消息
收藏
下载
最近
















































