知末
知末
创作上传
VIP
收藏下载
登录 | 注册有礼
知末案例   /   医疗空间   /   诊所

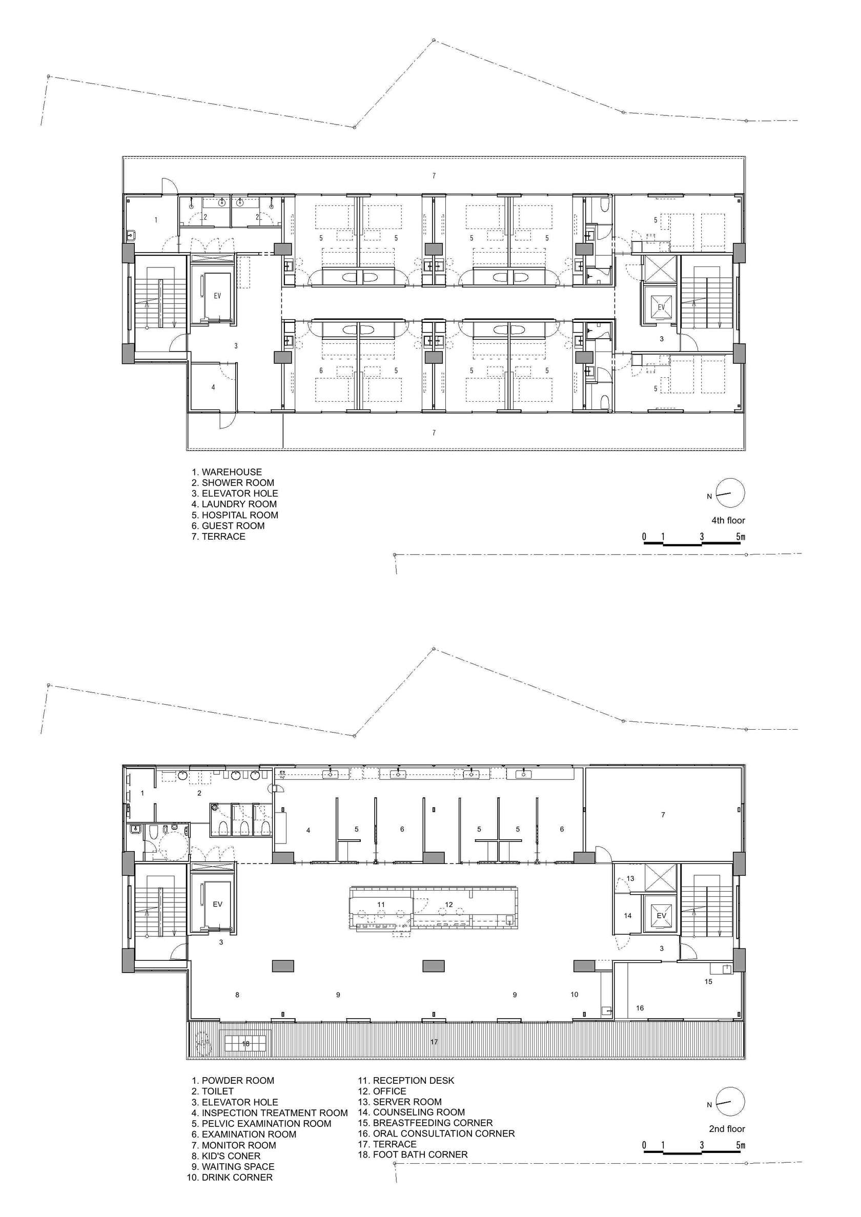
日本冲绳县女子诊所

2017/02/22 01:25:00
查看完整案例
微信扫一扫
收藏
下载
日本冲绳县女子诊所-0
日本冲绳县女子诊所-1
日本冲绳县女子诊所-2
日本冲绳县女子诊所-3
日本冲绳县女子诊所-4
日本冲绳县女子诊所-5
日本冲绳县女子诊所-6
日本冲绳县女子诊所-7
日本冲绳县女子诊所-8
日本冲绳县女子诊所-9
日本冲绳县女子诊所-10
日本冲绳县女子诊所-11
南京喵熊网络科技有限公司 苏ICP备18050492号-4知末 © 2018—2020 . All photos and trademark graphics are copyrighted by their owners.增值电信业务经营许可证(ICP)苏B2-20201444苏公网安备 32011302321234号
客服
消息
收藏
下载
最近