查看完整案例

收藏

下载
Особняк в неоклассике
Эклектичный дом в Павловске для двоих
Автор проекта: Беляевская Анна, Сморгонская Наталия
Объект: Особняк в неоклассике
Общая площадь: 610 кв.м.
Уникальные характеристики обьекта:
дом для супружеской пары
размещение всех основных жилых помещений на первом этаже
выразительный контраст черного стекла, зеркал и полированного камня
Интерьер гостиной строится на контрасте цветов и фактур, а также игре отражений. Стена за диваном оформлена каменным панно с часами, Nomon.
В остекленном эркере гостиной размещен панорамный камин с цилиндрической топкой из черного металла.
Интерьер эклектичной столовой в частном загородном доме. Светильники в стиле ар-деко, Visionnaire.
Торцы перегородок в открытом пространстве гостиной, кухни, столовой облицованы зеркалами. Интерьер выдержан в серо-серебристой гамме.
Сделанная на заказ кухня с черными фасадами украшена серебряной патиной. С рабочей зоной контрастирует остров, исполненный в белом цвете.
Вид со стороны кухни на гостиную и деревянную лестницу. Простенок облицован черным стеклом.
Фото интерьера кабинета в неоклассическом стиле.
Нестандартная форма потолка и полукруглое окно в спальне задали тему роскоши. Ее подержали серебристые тона текстиля и неоклассическая по духу мебель.
Интерьер хозяйской ванной комнаты на первом этаже. Умывальник обыгран как продолжение подоконника. Мебель для санузлов в белом цвете с серебряной патиной.
Холл первого этажа украшает панно с изображением копии рисунка Леонардо да Винчи.
Зоны отдыха с бильярдной представляет собой просторное открытое помещение с черными потолками. Диванная группа акцентирована потолочными балками с эффектом старения.
Зона отдыха с белыми диванами на втором этаже. Одна стена в помещении оклеена фотообоями.
Интерьер бильярдной в мансарде. Игорная зона с профессиональным столом обозначена пониженным потолком из гипсокартона со встроенными подвесными светильниками и подвесными лампами.
Фото интерьера ванной комнаты с элементами классического декора.
Бассейн расположен на первом этаже в помещении с окнами по двум сторонам. На полу – доска из тика, на окнах – деревянные жалюзи. Чаша бассейна выложена мозаикой, бортики оформлены камнем. За черной стеклянной перегородкой – блок банных помещений.
Интерьер домашнего СПА-центра. Стеклянная перегородка между бассейном и тренажерным залом объединяет помещения. В черном кубе расположена сауна и душевые.
Интерьер сауны в частном загородном доме.
Один из санузлов оформлен в черно-белых тонах. На стенах – керамическая плитка с классическим орнаментом. Умывальник и люстра исполнены в черном цвете.
В оформлении фасада двухэтажного дома использованы контрастные материалы: темный клинкерный кирпич, напоминающий об исторических постройках Павловска, и светлый песчаник нескольких оттенков.
Фасад дома в исторических окрестностях Санкт-Петербурга. Все основные жилые помещения, включая хозяйскую спальню, размещены на первом этаже.
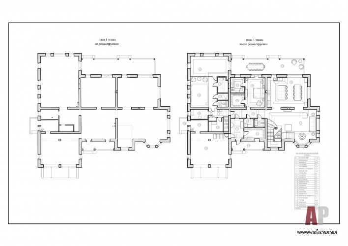
План первого этажа двухэтажного эклектичного дома в Павловске до и после реконструкции.
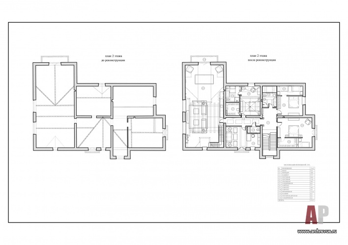
План второго этажа двухэтажного эклектичного дома в Павловске до и после реконструкции.
Концепция
В исторических окрестностях Санкт-Петербурга, вблизи Павловского парка архитекторы Анна Беляевская и Наталия Сморгонская оформили особняк для супружеской пары, которая уже давно вырастила детей и воспитывает внуков. Дом на участке с ровным рельефом сдавался в виде бетонной коробки, в задачу авторов проекта входило оформление фасадов, организация внутреннего пространства и декор помещений в парадной неоклассической стилистике.
Особенность проекта – в сжатом сроке исполнения (на подбор отделочных материалов и мебели было отведено 9 дней!) и необходимости жесткой экономии.
Планировка
Растянутый по ландшафту дом разделен на два крыла, все основные хозяйские помещения расположены на первом этаже. Справа от центрального входного блока с прихожей, гардеробной и гостевым санузлом входа находится студийное пространство гостиной, каминного зала, столовой и кухни. Торцы условных перегородок облицованы зеркалами, которые визуально усложняют единый объем.
Из столовой организован выход на открытую террасу с летней мебелью. Слева от входа размещены помещения для отдыха и спорта – бассейн, тренажерный и домашний СПА с банными помещениями. На одной оси с входным блоком спроектирована хозяйская спальня с сопутствующими помещениями. Верхний этаж отдан под гостевые помещения: спальни детей и внуков, которые часто навещают заказчиков (4 спальни со своими ванными комнатами), а также открытое пространство зоны отдыха-кинозала-бильярдной.
Декор
В оформлении эклектичного дома архитекторы использовали как арсенал средств, характерных для интерьеров в духе классики, так и элементы современного дизайна. Полированный камень, гипсовый лепной декор, черное стекло, зеркала, классические люстры и мебель… Парадный настрой в гостевой части создает контраст черного стекла и кухни с черными фасадами, отделанными серебряной патиной, с фактурой природного дерева и серо-серебристого камня.
Ноту современности вносит панорамный камин с круглой цилиндрической топкой из черного металла. В интерьере преобладают строгие серебристые, кремовые и антрацитовые оттенки.
Комплектация объекта
Строительство, компания «Алекс»
Строительные и отделочные материалы и изделия
Декоративная финишная отделка стен и потолков, фактурная штукатурка, поставщик AD Modum; краска Tikkurila
Изделия из камня, поставщик «Камнетес»
Плитка Apavisa, Ceramica Bardelli
Паркетная доска Solidfloor
Зеркальные панели, стекло, поставщик «ВР Стекло»
Свет Visionnaire
Сантехника Globa, Simas
Часы Nomon
Мебель Provasi, Biba Salotti, Cattelan Italia
Оборудование
Газовый котел Viessmann
Электроустановочные изделия Jung
Радиаторы Arbonia
Бытовая техника Miele
客服
消息
收藏
下载
最近

























