查看完整案例

收藏

下载
Vrtić „Vetrnik“ u Ričanima kraj Praga; Foto: Filip Šlapal
Razigranost i spontanost najmlađih bili su inspiracija za ovaj šatorasti vrtić
Arhitekte smatraju da ovaj objekat nije ustanova u klasičnom smislu, već da predstavlja maštovito oblikovan prostor koji omogućava razvoj dečje kreativnosti.
Jarko obojeni i zakošeni oblici karakterišu novu predškolsku ustanovu u češkom mestu Ričani, jednom od većih predgrađa glavnog grada Praga, a za koju projekat potpisuje studio Architektura.
Dizajn vrtića „Vetrnjik“ zasnovan je na detinjstvu, sa konceptom koji ima za cilj da dočara razigranost i spontanost, pa su se baš zato u projektu našli oblici koji interpretiraju jazbine i šatore.
Objekat je projektovao praški studio Architektura; Foto: Filip Šlapal
Odsustvo geometrije u dečijem umu
Ova ustanova za najmlađe sadrži vežbaonicu, baštu, igralište i učionice raspoređene po blokovima u različitim bojama, koji se granaju iz centralne bele strukture.
„Osnova nepravilne forme se oslanja na odsustvo geometrije u dečijem umu, kao i na drugačije uspostavljen red, na razigranost i spontanost.“, rekao je za Dezeen direktor studija Architektura David Kraus.
Pogled na vrtić „Vetrnik“ iz ptičje perspektive; Foto: Filip Šlapal
Svaki od blokova jarkih boja sadrži po jednu učionicu, dok se ostali sadržaji nalaze u glavnoj beloj „kocki“.
Arhitekte ističu da su im deca bila inspiracija, odnosno njihove igre, pokreti, vizije, kao i njihove razmere. Dečija spontanost, neorganizovanost, nepredvidivost, čistoća, radoznalost i optimizam uticali su na dizajn.
Svaki od blokova jarkih boja sadrži po jednu učionicu, dok se ostali sadržaji nalaze u glavnoj beloj „kocki“.
Svaki od blokova jarkih boja sadrži po jednu učionicu; Foto: Filip Šlapal
Ulaz nalik na svemirski brod
Fasada vrtića koja je usmerena ka ulici ima ulaz koji liči na svemirski brod i ova zona smeštena je uz „živi zid“ za koji se arhitekte iz Praga nadaju da će rasti i dodatno se širiti.
Nakon što prođu ulaz, posetioce i đake dočekuje prostor atrijuma smešten u beloj centralnoj zgradi. U okviru ove strukture smešteni su i kancelarijski prostori i drugi praktični sadržaji.
Ulaz na fasadi usmerenoj ka ulici; Foto: Filip Šlapal
Zona ispod mreže se može koristiti kao prostor za organizovanje mužičkih ili pozorišnih događaja, kao i izložbi.
Zanimljiv element u ovoj zoni je i velika mreža koja se oslanja na četiri drvena stabla, a zona ispod mreže se može koristiti kao prostor za organizovanje mužičkih ili pozorišnih događaja, kao i izložbi.
Iz atrijuma se granaju pojedinačne učionice, koje su povezane sa baštom. Prostori učionica, zahvaljujući masivnim prozorima, imaju dosta prirodnog svetla.
Velika mreža oslanja se na četiri drvena stabla; Foto: Filip Šlapal
Pejzaž dečije fantazije
Prostor igrališta koje je osmišljeno uz objekat vrtića trenutno je u izgradnji, a arhitekte se nadaju da će, kada bude završeno, to biti prostor ispunjen prirodom i pokretač maštovitih igara.
„Najveći napor je bio da se dobro dizajnira dnevni boravak, koji će biti pun zabavnih atrakcija, penjalica, i koji će biti svojevrsni pejzaž dečije fantazije, a možda čak i zabavni park. Hteli smo da napravimo objekat za decu koji nije ustanova, već je razigran i omogućava razvoj kreativnosti“, dodao je na kraju David Kraus.
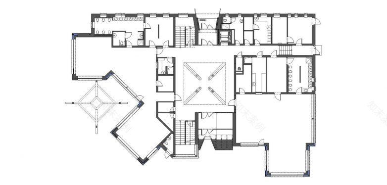
Osnova
Osnova
Presek Vrtić "Vetrnik" u Ričanima kraj Praga; Foto: Filip Šlapal
客服
消息
收藏
下载
最近











