查看完整案例


收藏

下载
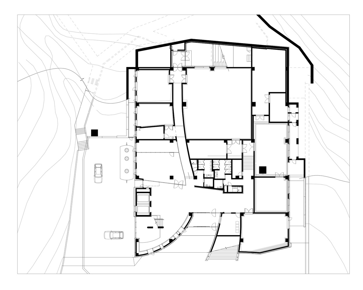
架构师提供的文本描述。该项目位于校园边缘,在韩国首尔的白板山开始。该项目由小池塘和室外舞台包围,在前面,在后面的白板山,这是一个很好的地点,俯瞰整个校园的汉城大学。在该项目之前,该地点被用于回收处理工厂。该项目的出发点是尽量减少对城市的山地和绿地的破坏,以便将规划限制在现有设施的范围内。
Text description provided by the architects. The project is located at the edge of the campus where the Baebong Mountain starts in Seoul, Korea. The project is enclosed by small pond and outdoor stage, in the front, and Baebong Mountain, in the back, which make the location a great spot to overlook the whole campus of University of Seoul. Before the project, the location was used for recycling disposal plant. The project was initiated with the mindset of minimizing the damage to the mountain and green space of the city so that the planning was limited within the boundary of existing facility.
© Kim Jae-Kyeong
金
© Kim Jae-Kyeong
金
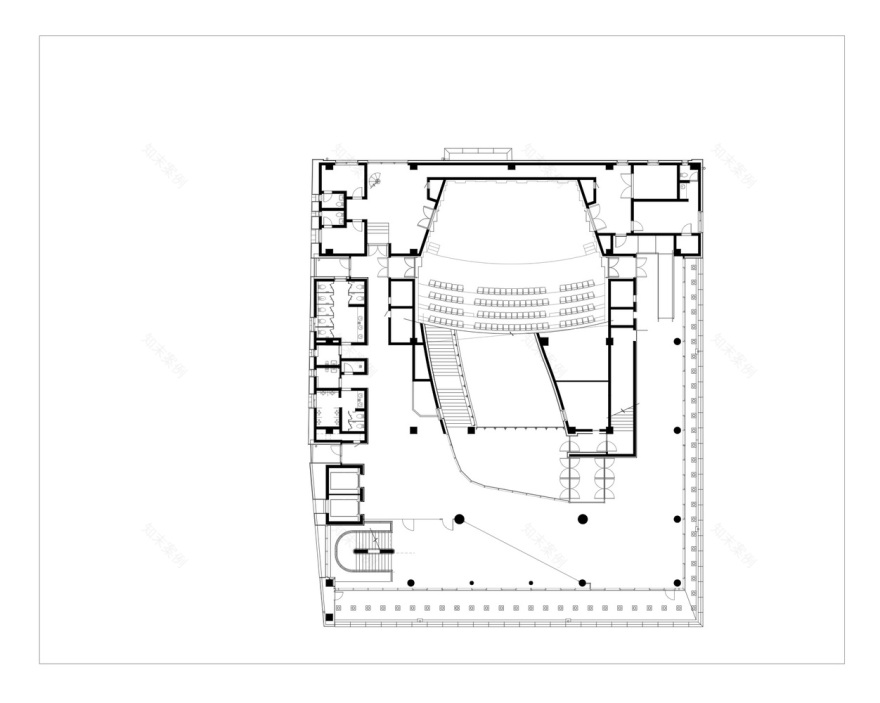
音乐厅位于顶层,规划有最好的风景景观以及作为音乐厅的功能,以满足音乐系内的重要性,讲演室和排练室都布置在较低的音量内。在底部空间的中心放置一个中庭,通过将白板山的景色引入到空间中来清空体积。阶梯式中庭是通往音乐厅的领先空间。中庭空间还充当一个缓冲区,将排练空间与项目的其他功能分开。中庭弯曲的墙壁帮助游客很容易到达不同的层次。
The concert hall is placed on the top floor, planned to have the best scenic view as well as its function as a concert hall, to meet the importance within the department of music, lecture and rehearsing rooms were placed in the lower volume of the building. An atrium is placed in the center of the bottom volume to empty the volume through to introduce the view of Baebong Mountain into the space. The terraced atrium is the leading space towards the concert hall. The atrium space also acts as a buffer zone that separates the rehearsing space from the other functions of the project. Curved walls of the atrium help the visitors to readily reach into different levels.
© Kim Jae-Kyeong
金
音乐厅前后的柱廊,映照着百白山橡树的形像,让游客间接感受到里面的森林。外部材料最初是粗糙的纹理混凝土,模仿松木板的图案,但为了便于施工,它被转变成黑色的石头和氧化的不锈钢板。
The colonnade of the front and each sides of the concert hall is reflecting the image of oak trees in Baebong Mountain so that the visitors can indirectly experience the forest inside. The material of the exterior was initially to be rough textured concrete mimicking the patterns of pine boards, yet it was changed to black stone and oxidized stainless steel plates to perceive ease of construction.
© Kim Jae-Kyeong
金
Architects Wooridongin Architects
Location Jeonnong-dong, Dongdaemun-gu, Seoul, South Korea
Category Educational Architecture
Collaborators J & J Architects Inc.
Area 1285.0 sqm
Project Year 2016
Manufacturers Loading...
客服
消息
收藏
下载
最近























