查看完整案例

收藏

下载
Escuela de vela de Sotogrande por Héctor Fernández y Carlos García [Sotogrande - Cádiz] España
Escuela de vela de Sotogrande por Héctor Fernández y Carlos García
Ligereza y delicadeza son los ingredientes fundamentales de la nueva Escuela de Vela de Sotogrande, proyectada por Héctor Fernández y Carlos García y que ellos mismos definen como un ligero catamarán que parece levitar sobre la arena de la playa.
Los arquitectos Héctor Fernández y Carlos García proyectan esta Escuela de Vela en Sotogrande y cuyas fotografías vienen de la mano de la fotógrafa Montse Zamorano.
El proyecto cuenta con un emplazamiento privilegiado a medio camino entre la playa y el club naútico, quedando referenciado a su vez al espigón de piedra próximo a la zona de proyecto. La ligereza del proyecto, con finos perfiles de metal, hace más prominente su carácter náutico vinculado al agua y a su propio paisaje.
Constructivamente resulta también muy interesante, resulto con tornillería y sin soldaduras, en un proceso seriado y sencillo que eleva ligeramente la escuela sobre la arena, marcando aún más su ligeraza y delicado posicionamiento en su entorno inmediato.
Este entorno próximo pasa a formar parte activa del proyecto y queda enmarcado desde el interior del mismo con una sencilla y elegante pérgola delantera que hace las veces de espacio de transición. Aporta no sólo una preciada sombra, sino además una gran unidad al conjunto del proyecto.
Descripción de proyecto Héctor Fernández y Carlos García
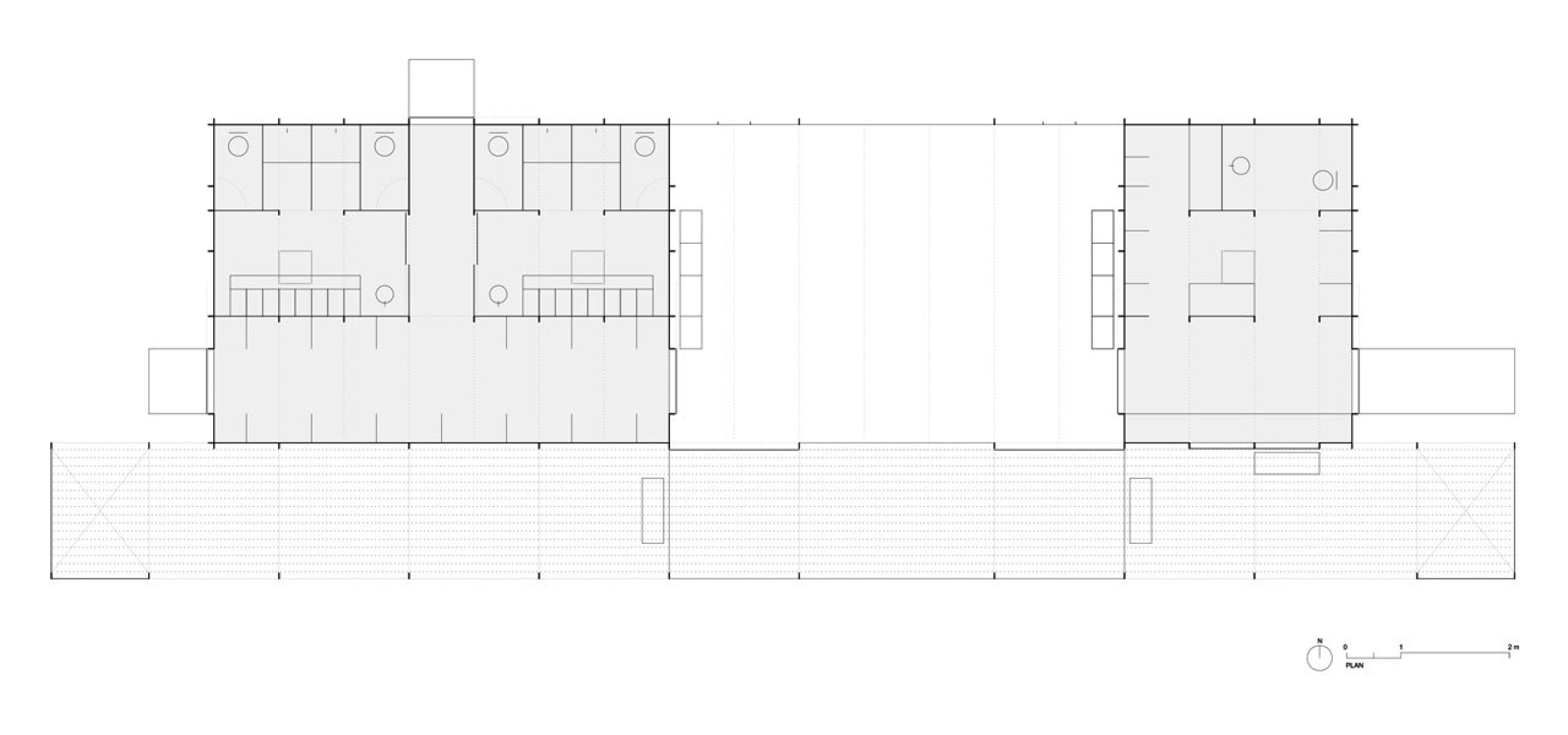
La Escuela de Vela del Real Club Marítimo de Sotogrande se sitúa en una posición privilegiada: entre la playa de los catamaranes y el puerto deportivo.
El proyecto se vincula al espigón de piedra que recorre longitudinalmente el paseo al norte de la playa y pretende levitar sobre el suelo, apoyándose en la arena, ligero, como si de un catamarán se tratase. Las reducidas dimensiones de la escuela y de sus dependencias de servicio hacen necesario interponer entre la construcción y la playa un elemento de mayor tamaño que permita que ésta sea vista desde lejos, convirtiéndola en un hito construido junto a la bocana del puerto. La pérgola, que se coloca delante del edificio, unifica asimismo todas las partes del proyecto y crea un umbral en sombra que protege los espacios previos a la construcción de la exposición directa del sol en su frente sur.
El edificio, que presenta así propiedades diversas en su frente y espalda, está compuesto de dos partes diferenciadas: por un lado, el volumen construido alberga la oficina de la escuela de vela, el aula de socios, el pañol de vela y los vestuarios; por otro, la pérgola situada al sur crea una habitación al aire libre que permite disfrutar del paisaje desde la sombra.
Con un marcado carácter náutico por su ligereza y aspecto, el edificio se sitúa sobre la arena ligeramente elevado en una posición dominante sobre el paisaje. El aula de socios es un espacio pasante que vincula visualmente el puerto y la playa, y a través de la cual corre la brisa marina ofreciendo a los usuarios un espacio de sobra y frescor en prolongación con el umbráculo exterior.
Los accesos al edificio se producen de forma diferenciada. El pañol de vela, los vestuarios y las oficinas disponen de entradas por los laterales y la parte posterior del edificio, mientras al club social se accede por el frente, desde el umbráculo y en continuidad con la plataforma exterior.
El edificio se construye mediante una estructura de acero galvanizado atornillada y sin soldaduras en obra, que de manera ordenada crea una serie de ritmos en las fachadas potenciando su carácter náutico y ligero. La sala de socios se abre a norte y a sur mediante paños de vidrio, practicables hacia la playa, que permiten la continuidad espacial así como la ventilación cruzada. El resto de cerramientos, tanto en paredes suelos y techos, se realiza mediante paneles de cemento y viruta de madera que aseguran la durabilidad y el comportamiento del edificio ante las inclemencias meteorológicas y la crudeza del mar. Asimismo, la pérgola situada al sur se construye con una estructura metálica, igualmente galvanizada, y un sistema de tensores que soporta una cobertura de cañizo en consonancia con el lugar.
Bajo dicha pérgola, o desde el interior de la sala social, el mar y el Peñón de Gibraltar se convierten, enmarcados, en protagonistas.
Por otro lado os presentamos este pequeño vídeo realizado por los arquitectos. Cuidadosamente realizado, con él nos presentan las sensaciones y experiencias relacionadas con el proyecto y su entorno. ¡Con este frío invernal parece apetecer más que nunca que llegue el verano!
Arquitectos
Héctor Fernández Elorza
/ HFE Arch. y Carlos García Fernández.
Colaboradores
Javier Mengibar (arquitecto técnico), Miguel Ángel Palencia (arquitecto técnico) y María Concepción Pérez Gutiérrez (estructuras).
Cliente
Real Club Marítimo de Sotogrande.
Constructor
Construcciones Mena y Barranco S.L.
Superficie
145 m².
Fechas
Julio a Diciembre de 2012 (proyecto), Enero a Junio de 2013 (construcción).
Localización
Playa de los Catamaranes, San Roque, Cádiz, España.
Presupuesto
75.000€.
Fotografía
Montse Zamorano
.
Héctor Fernández Elorza
Héctor Fernández Elorza
nació en Zaragoza (España) en 1972. Arquitecto en la Escuela Técnica Superior de Arquitectura de Madrid, ETSAM, en 1998, donde, desde 2001, es Profesor Titular en Proyectos Arquitectónicos.
Recibió la beca del programa de intercambio de la UE en el Instituto de Tecnología de Darmstadt en 1995 y 1996 y en el Instituto Técnico Real de Estocolmo, KTH en 1997 y 1998. Sus estudios de postgrado continuaron en Escandinavia, otorgado por la Fundación Marghit y Folke Perzhon en 1999 y 2000. Este período fue dedicado a su investigación de doctorado en el Architectural Museum Archive en Estocolmo y la Fundación Alvar Aalto en Helsinki. El Ph.D. los estudios se han finalizado en 2014 en la Escuela Técnica Superior de Arquitectura de Madrid, ETSAM, con la tesis doctoral denominada "Asplund vs. Lewerentz".
Ha sido Profesor Visitante y Profesor en las siguientes Escuelas de Arquitectura: Escuela de Arquitectura de Zaragoza y ETSAB-Barcelona (España), Universitá Di Roma "La Sapienza", Politécnico de Milán y Siracusa (Italia), Arquitectura Nordostniedersachsen Universität Hamburg y Fachhochschule Köln (Alemania), Universidad NTNU en Trondheim (Noruega), Kunstakademiets Arkitektskole en Copenhague (Dinamarca), Universidad KTH en Estocolmo (Suecia), Universidad de Innsbruck (Austria), Universidad Católica de Río de Janeiro (Brasil), Universidad de Belgrado ( Serbia), Universidad de Budapest (Hungría), Hogeschool voor Wetenschap en Kunst en Bruselas (Bélgica), el Instituto Real de Arquitectos Británicos-RIBA en Londres (Inglaterra), y la Universidad de Texas en Dallas y la Universidad Cooper Union en Nueva York (EEUU).
Galardonado con el Segundo Premio en la Competición Internacional "Louis Poulsen", Copenhague, 1999; Primer Premio en la Competición "La Casa del Tercer Milenio" Cantú, (Italia), 1999; Segundo Premio en la Competición "Karhus", Estocolmo, 2000; Finalista en el Concurso "Leca-Mur", Linköping, (Suecia), 2000; Cuarto Premio en el Concurso "Stockholm Bostader", Estocolmo, 2000. Obtuvo su obra "Architectural Documentation Center in Madrid": Primer Premio en el AR + D PRIZE de la British Architecture Association, RIBA, Finalista en el ENOR PRIZE 2005, Finalista en el PREMIO COSENZA 2005, Primer Premio en el PREMIO SALONI 2005 y Finalista en BIENAL DE ARQUITECTURA ESPAÑOLA 2005. Finalista en los PREMIOS GARCIA MERCADAL 2007, 2011 y 2012 con el Proyecto Urbano "Zuera Sur", "Parque Valdefierro" y "Twin square" en Zaragoza; Segundo Premio en la Competición "El casco antiguo de Belchite", 2009. Su obra Laboratorio de Química en la Universidad de Alcalá obtuvo el Primer Premio en el ATEG-PREMIO 2010, Segundo Premio en el PREMIO BIGMAT 2011 y Primer Premio en el PREMIO ENOR-MADRID 2012. En 2014 fue galardonado con el DESIGN VANGUARD para arquitectos emergentes por la revista Architectural Record.
En 2000 y 2012 participó en la Biennale di Architecture di Venezia.
El proyecto de investigación "Stockholm Universal Exposition of 1930" y su catálogo de publicaciones para la Exposición "Arquitecturas Ausentes del siglo XX" fue coordinado por él durante 2000-2005. En 2010 y 2011 ha sido Conservador del Congreso Internacional de Arquitectura "Cien años aprendiendo de Roma" y "Architettura e Resistenza" en la Academia Española de Roma.
Durante 2011 y 2012 ha sido codirector del Departamento de Estudios de Baldosas de Cerámica de Madrid.
Como arquitecto, ha proyectado y construido el Mausoleo para el oceanografista Odón de Buen, el distrito de San Juan en Zuera, la plaza principal de Cuarte, (Zaragoza); el Auditorio y Centro de Documentación de Arquitectura Contemporánea en "Nuevos Ministerios" (Madrid); la Escuela de Equitación en Oros Alto, (Huesca); el parque agrícola, parque de Valdefierro (Zaragoza); los edificios culturales en Jarandilla de la Vera, (Cáceres) y San Esteban del Valle, (Ávila); el Edificio de Laboratorios Químicos y la Facultad de Genética de la Universidad de Alcalá (Madrid); Venecia Park y Twin square (Zaragoza); Sotogrande Sailing School (Cádiz), una Casa Mahou ganada y en desarrollo, la renovación del Palacio del Duque de Infantado para la empresa cervecera Mahou San Miguel en Madrid.
Autor y coautor de los siguientes libros: E. G. Asplund, Exposición de Estocolmo 1930; Por si nos encontramos; Piedra, papel y tijera; Ensayos sobre arquitectura y cerámica; Babelia; Pensar con las manos y Materia y material, La ortografía del espacio y el alfabeto de la estructura; Cuaderno de viaje; Chicago-Nueva York, Arqueología Contemporánea, La Vuelta al Mundo en Ochenta Días, Madrid / Tokio, Sicilia y Vivir. Su trabajo se ha mostrado ampliamente en España y en el extranjero.
Durante 2009 y 2010 ha sido galardonado con el PREMIO ROMA en la Academia Española de Roma.
客服
消息
收藏
下载
最近




























