查看完整案例

收藏

下载
Zgrada u Varvarinskoj ulici u Beogradu; Foto: Relja Ivanić
Zgrada na Pašinom brdu sa brižljivim odnosom prema susedstvu
Kroz nalaženje prikladne razmere, beogradske arhitekte su nastojale da u višeporodičnu stambenu tipologiju implementiraju vrednosti individualnog stanovanja.
Vladislav Lalicki AVL), arhitektonska projektantska radionica osnovana 2008. godine u Beogradu, autorski potpisuje projekat oblikovanja stambene zgrade od 940 kvadratnih metara u Varvarinskoj ulici broj 10 na Pašinom brdu u opštini Voždovac, projektovane 2017. a izvedene tokom 2018. i 2019. godine.
Ovaj deo grada je u proteklom periodu doživeo intenzivnu promenu, iz nekadašnjeg predgrađa – četvrti porodičnih kuća srednjeg građanskog sloja – u zonu intenzivne komercijalne višeporodične stambene izgradnje, a arhitekta Vladislav Lalicki objasnio nam je kako su on i njegov tim u ovakav ambijent uneli nove kvalitete i standarde.
Objekat ima bruto površinu od 940 kvadratnih metara; Foto: Relja Ivanić
Afirmacija autentičnih ambijentalnih vrednosti
Kako navodi Lalicki, proces promene praćen je ne samo maksimalnim iskorišćenjem dozvoljenih, često prekomernih, urbanističkih parametara, već neretko i nedovoljno promišljenim i nedovoljno brižljivim odnosom prema susedstvu, orijentaciji, bližem i širem urbanom kontekstu, istorijskim i razvojnim slojevima pojedinih gradskih celina…
„Jedan od osnovnih ciljeva ovog projekta bio je upravo da se prepoznaju i afirmišu autentične ambijentalne vrednosti ovog kraja grada, kao i da se u transformisani urbani ambijent unesu novi kvaliteti i standardi“ – kaže beogradski arhitekta.
Autori su nastojali da u višeporodičnu stambenu tipologiju implementiraju vrednosti individualnog stanovanja.
U tom smislu, napominje, posebna pažnja poklonjena je problemu razmere, njenog prilagođavanja meri čoveka, malim distancama sagledavanja, relativno uskom profilu ulice – i to kako u celini kompozicije, tako i u detaljima.
„Upravo kroz nalaženje prikladne razmere, koje je u velikoj meri opedelilo i odabir materijala kao i njihov uzajamni odnos, nastojali smo da u višeporodičnu stambenu tipologiju implementiramo vrednosti individualnog stanovanja, koje je temelj i osnovni memorijski ‘sediment’ gradotvornosti Pašinog brda“ – objašnjava Lalicki.
Autori su nastojali da u višeporodičnu stambenu tipologiju implementiraju vrednosti individualnog stanovanja; Foto: Relja Ivanić
Niz natprosečnih tehničkih rešenja
Lalicki naglašava da je ovakvom pristupu pogodovala i činjenica da su se investitori odlučili za zgradu visokog komfora i kvaliteta stanovanja, u kojoj će i sami stanovati.
„U objektu je projektovano svega sedam komfornih stanova, što je ovaj postavljeni cilj učinilo realističnim i omogućilo primenu niza natprosečnih tehničkih rešenja, od dimenzionisanja stanova i pojedinih prostorija, preko odabira materijala i komponenti, pa do ugradnje infrastrukturnih i instalacionih sistema, posebno u pogledu grejanja, hlađenja i energetske efikasnosti objekta“ – navodi naš sagovornik.
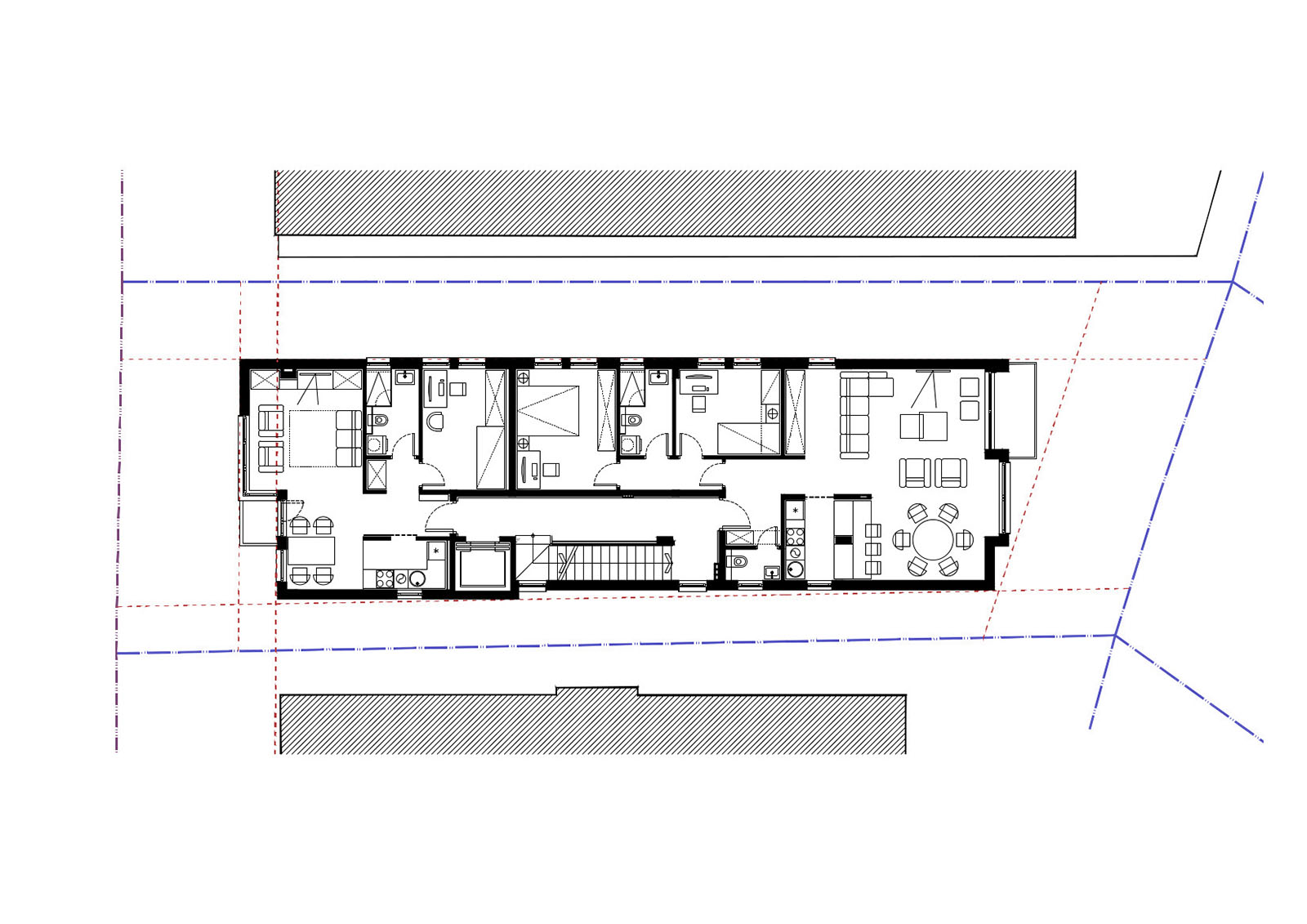
Osnova prizemlja
Prednja (ulična) fasada raščlanjena je i dinamizirana erkerom, koji postaje glavni oblikovni motiv.
Osnovni izazov u arhitektonskoj postavci ove zgrade predstavljala je uska lokacija, sa strogo propisanim udaljenjima od granica parcele, objašnjava dalje Lalicki.
„Poštujući sva ograničenja, zgrada je koncipirana kao jednostavan, izdužen slobodnostojeći kubični volumen. Prednja (ulična) fasada raščlanjena je i dinamizirana erkerom, koji postaje glavni oblikovni motiv“ – kaže arhitekta.
Prema ulici (severna ekspozicija) projektovani su manji stanovi, dok su prema dvorištu (južna ekspozicija) projektovani veliki stanovi, razvijene strukture.
Osnova sprata
Stanovi su dobro, višestrano prirodno osvetljeni i provetreni, sa logičnim i doslednim zoniranjem i orijentacijom prostora.
Celo potkrovlje zauzima jedan stan. Stanovi su dobro, višestrano prirodno osvetljeni i provetreni, sa logičnim i doslednim zoniranjem i orijentacijom prostora.
Uprkos uskom gabaritu, zajednički prostori u objektu (komunikacije) su veoma komforni. U podrumu zgrade projektovana je garaža propisnih kapaciteta, potrebne tehničke prostorije i stanarske ostave.
U detaljima, naročito u ulaznoj zoni, primenjeni su natur beton i drvo; Foto: Relja Ivanić
Natur beton i drvo u detaljima
U materijalizaciji fasade, kombinovana je fasadna opeka zemljanih tonova i metalne obloge od mikroliniranog lima u crnoj boji, kao i crna aluminijumska bravarija.
„Čovekomerne distance sa kojih se objekat realno sagledava, omogućile su potenciranje likovnog dijaloga ovih materijala, kontrastnih po svom poreklu, strukturi, teksturi, boji i taktilnim karakteristikama. U detaljima, naročito u ulaznoj zoni, primenjeni su natur beton i drvo“ – navodi Lalicki.
Dodaje na kraju da oblikovanje fasade blago referira na “industrijsku” arhitekturu ili, svojim uskim frontom, na stambene četvrti severnoevropskih gradova, ali ponajviše na iskustva beogradske moderne, što zgradu jasno smešta u kvalitetan lokalni kontekst i čini bliskom, prepoznatljivom i komunikativnom.
Zgrada u Varvarinskoj ulici u Beogradu; Foto: Relja Ivanić
Objekat ima bruto površinu od 940 kvadratnih metara; Foto: Relja Ivanić
U detaljima, naročito u ulaznoj zoni, primenjeni su natur beton i drvo; Foto: Relja Ivanić
Foto: Relja Ivanić
Foto: Relja Ivanić
Autori su nastojali da u višeporodičnu stambenu tipologiju implementiraju vrednosti individualnog stanovanja; Foto: Relja Ivanić
Faktografija
naziv projekta: Stambena zgrada u Varvarinskoj ulici
lokacija: Voždovac, Beograd
spratnost: P+2+Pk
tipologija: Slobodnostojeća stambena zgrada
investitor: „Zidarac“ doo, Ivanjica
godina projektovanja: 2017.
godina izgradnje: 2018–2019.
bruto površina: 940 m²
autor projekta: Atelje Vladislav Lalicki
autorski tim: Vladislav Lalicki, Nenad Lužanin, Marijana Poljovka i Tijana Miljić
fotografija: Relja Ivanić
客服
消息
收藏
下载
最近










