查看完整案例

收藏

下载
北京建院新作:周口店中心小学应急救灾校舍
北京建院新作:周口店中心小学应急救灾校舍
洒满阳光的中庭 ©石华
围绕中庭的孔洞空间 ©石华
设计单位:北京市建筑设计研究院股份有限公司
项目地点:北京房山
建成时间:2023年
建筑面积:3212.64平方米
学校鸟瞰 ©石华
建筑外观 ©石华
作为国企大型设计机构里从事校园建筑设计多年的团队,得知这样的消息和业主的诉求,我们感到责任是义不容辞的。于是在国庆假期其间,我们便尽力协调了团队的设计师,快速展开了设计工作。
周口店中心小学应对这次突如其来的搬迁工作,也是想尽办法,终于在位于校园操场的北侧腾挪出了一块狭小的场地作为接纳黄山店小学受灾孩子们住宿和新增教学建筑的建设用地。同时,学校也结合新安置学生的规模和未来教学需求,提出了相应的功能要求,这其中包含了宿舍、餐厅及部分教学的功能用房。
建筑与操场的边界 ©石华
局促的场地下,构建呵护孩子身心的空间系统
针对这样的建设语境、学校诉求和对场地的详细研究,我们感到虽然这是一个需要快速完成的应急工程,但却不应该仅仅是用一种简单快捷的方式去完成一个学校对于使用功能的基本需要。它要在满足学校功能的同时,提供更多关爱的内容,通过新建筑的营造为经受灾害的孩子们带来温暖与心灵的关照。
基于这样的思考,我们开始在这样一片狭小的场地上构建新的校园建筑。我们摒弃了更加简单的应对这种狭小用地的行列式宿舍与教学建筑的排布方式,因为这样的布局所形成的空间状态显得过于疏离,缺少相互的关联。我们尝试营造一种有聚合感的场所,让孩子们在这里能够感受到温暖与被包裹。
于是,在这个局促的场地上,我们采用了向心式的围合布局——不同的住宿和教学使用功能皆顺应场地围绕一个尺度不大但充满聚合力的中庭展开,中庭里洒满阳光,营造出具有家园般的温暖场所,餐厅安排在地下一层,通过一个通往地下的半开放下沉庭院与地面连接在一起。
概念分析 ©BIAD
用地狭小的建筑边界 ©石华
入口局部 ©石华
开放的二层中庭是这个教学建筑的空间核心,它如同一个心灵的港湾,把孩子们凝聚在这里。在这个不大的中庭里,我们采用了一种孔洞式的设计,若干个如洞穴般的空间围绕在中庭周围,作为中庭空间的延伸,提供了可停留的温馨场所。它们给予了孩子们探索的乐趣,也烘托出如巢穴般呵护的温暖氛围。
中庭的边界 ©石华
在孔洞中游憩的小朋友 ©石华
由于场地的局促,首层的教学单元皆围绕中庭顺应场地边界布置,结合场地扭转错动的功能布局,亦营造出这个学校建筑生动的空间体验。应对当下的教学观念,教室单元采用了更加开放的姿态,开敞的大窗作为教室与走廊的分隔,将教学单元与学校公共空间有机联系在一起,创造了看与被看、互动学习的可能。
与公共空间连接的教室 ©石华
从公共走廊看教室 ©石华
结合场地形成的变化的走廊 ©石华
教室空间 ©石华
学生宿舍安排在建筑的二层,与首层教学单元对应布置,亦环绕中庭展开。采光的中庭提供了宿舍公共区域明亮而温暖的住宿体验,相互错动的体量间形成的丰富边界空间,也为孩子们创造了多样化交往的可能。
学生宿舍分为男女生两个分区,为了避免相互干扰,二层宿舍开敞空间与中庭连接的区域采用了U型玻璃作为分隔,一方面提供了有效的视线遮挡,另一方面也兼顾了开放性。阳光透过U型玻璃进入走廊,形成了更加柔和的光照效果。
通过U型玻璃与中庭连接的宿舍区 ©石华
由于整个项目场地空间有限,餐厅功能被安排在地下一层,餐厅是学校人流较大的区域,为了缓解就餐时间瞬时的大量人流带来的交通压力,设计采用了半开放的下沉庭院结合室外开敞台阶的做法,一方面让孩子们更加顺畅地来到餐厅,另一方面也提供了地下餐厅更加良好的通风与采光,给孩子们营造出更好的就餐环境。
通往地下餐厅的楼梯 ©石华
自然光洒进地下餐厅 ©石华
材料与建造带来的温度
这个应急救灾的校园建筑既需要应对快速建造的现实条件,同时也要给未来学校的长远使用创造良好的条件。因此,在这个项目建造系统的选择上,我们并没有采用适用于快速建造的一些体系,而是采用了钢筋混凝土框架剪力墙结构。同时在材料的表达层面,我们也尝试了一些更具人文性的内容,以此来为这个学校未来的使用提供更加人性化的感受。结合空间氛围的营造,我们与结构工程师一同协作,根据建筑表达和结构安全的需要,仔细安排了结构的剪力墙与框架柱的位置,如在重点营造的中庭区域周边配置了结构的剪力墙。
在混凝土浇筑中,我们采用条状的木模板作为支模材料,让浇筑后的混凝土呈现出更具质感的表达。当然,在应急项目的造价限定下,我们使用的木模板并非那种在一些文化建筑中为展现木纹混凝土特殊肌理所采用的专业木模板,而是就地取材,使用工地上最常用的木方板进行拼接形成浇筑混凝土的模板,这样的方式一方面节约了造价,另一方面也更便于操作。
施工过程中混凝土脱模后效果 ©石华
不过这样的方式混凝土脱模后所呈现出的效果,也显得更加粗放与朴拙,但这种粗放的效果并非我们希望带给孩子们的。于是在这样表面肌理的基础上,我们涂刷了白色涂料,涂料修饰了裸露混凝土的粗糙感,墙面既干净明快,又有呈现出细腻的质感表达。在中庭顶部漫反射天光的映衬下,整个墙面肌理随时间微妙的改变,呈现出丰富而有温度的表情。
与有质感的白色墙面形成对比,中庭周围的“孔洞”空间采用了温暖的木质墙板包裹,同时地面配置了小的阶梯空间,多个“孔洞”面向中庭打开,一方面形成围绕中庭的休憩场所,另一方面,每个孔洞自身也形成了一个个温馨的研学空间,让在这里学习和活动的孩子体会到被呵护的感受。
木模板混凝土涂刷白色涂料 ©石华
阳光给予的照护
自然光的设计一直是我们在教育建筑中不断尝试的设计内容,良好的自然光一方面为教育带来助力,另一方面,也会为在建筑中生活的孩子们带来温暖。
在这个应急救灾的学校建筑中,我们希望用温暖的阳光抚慰那些经历了水灾侵扰的孩子们。阳光进入室内的方式做了仔细的控制,天光通过斜向的导光板引入室内,形成了柔和的漫射效果,搭配横向木纹肌理的白色墙面和温暖的木色“孔洞”,创造了一个有温度的校园“聚场”。它成为学校的港湾,关爱着每一个孩子。
空间轴测示意图 ©BIAD
中庭里漫射的光线 ©石华
在这些年的实践中,虽然完成过许多校园建筑,但这样一个应急救灾的教育设施对我们来说还是第一次尝试。在项目的设计过程中,我们除了考虑常规学校建筑所关注的教育内容外,也把更多的精力放在了如何用空间去关爱孩子们。建筑中每一个场景的构建,每一个细节的设计,每一道光线的设置,都倾注了团队设计师的心血。我们希望用这样的努力,让这样一座有着特殊意义的校园建筑成为孩子们的心灵家园,呵护着每一个孩子在这里快乐健康的成长。
设计图纸 ▽
总平面图 ©BIAD
地下一层平面图 ©BIAD
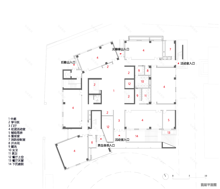
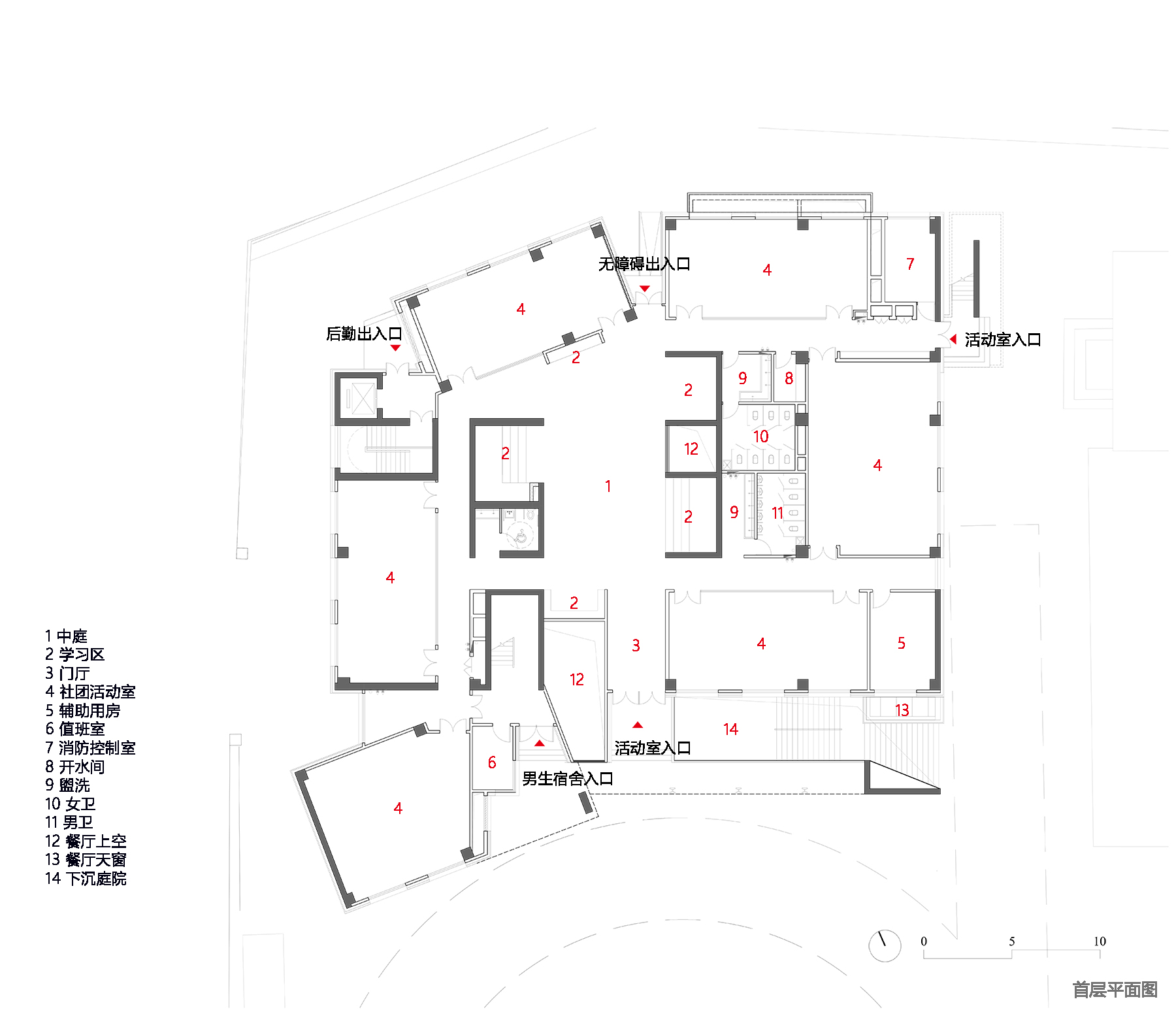
首层平面图 ©BIAD
二层平面图 ©BIAD
立面图 ©BIAD
剖面图 ©BIAD
完整项目信息
项目地点:北京市房山区周口店大街54号周口店中心小学
设计单位:北京市建筑设计研究院股份有限公司
设计完成时间:2022年
建设完成时间:2023年
占地面积:1620平方米
建筑面积:3212.64平方米
设计团队成员:石华、张广群、金雪丽、吴越飞、王璐、张琳梓、闫景月、白鸽、房梦茜、曾丽娜、王沅培
项目业主:北京市房山新城投资有限责任公司
摄影:石华
客服
消息
收藏
下载
最近






























