查看完整案例

收藏

下载
Dijamantski krov od smreke, jasena i čelika; Foto: Leonardo Finotti
Geometrijski krov iznad teniskog terena spaja čelik i CLT
Geometrije krovova koji pokrivaju teniske terene Diamond Domes u švajcarskom mestu Bürgenstock ostavljaju bez daha.
Švajcarska kompanija
Neue Holzbau
, specijalizovana za drvene konstruktivne elemente, napravila je geometrijski krov za dva zatvorena teniska terena po projektu
Rüssli Architekten
, kao deo odmarališta Bürgenstock Resort u švajcarskim Alpima, na visini od 874 metra.
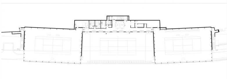
Strukturu postavljenu na betonskoj bazi, prekrivaju tri teniska terena, gde je centralni otvoren a dva bočna zatvorena terena natkrivena je konstrukcijom koja više podseća na skulpturu nego na funkcionalni inženjerski krov. Naime, krovna konstrukcija izvedena je od
unakrsno lameliranog drveta
CLT
smreke
jasenovog drveta.
Foto: Leonar Dofinotti
Sistem se zasniva na lepljenju čeličnih šipki za unakrsno lamelirano drvo čime se povećava nosivost.
„Formu i unutrašnje profile osmislite su arhitekte, a zatim smo mi razvili i dizajnirali celokupnu konstrukciju, veze i sve detalje.“, rekao je Bruno Abplanal za
Dezeen
direktor kompanije Neue Holzbau.
Inspiraciju za „dijamantsku“ formu krova arhitekte su pronašle u
kristalnim formacijama obližnjih stena
koji krase ovaj švajcarski krajolik.
Ipak, ovakav oblik krova nije slučajan. Krovovi teniskih terena zapravo su demonstracija inženjerskog sistema nazvanog GSA Technology, koji su stvorili Neue Holzbau. Sistem se zasniva na
lepljenju čeličnih šipki za unakrsno lamelirano drvo
kako bi se svaki modul mogao brže pričvrstiti vijcima čime se postiže i da konstrukcija može da podnese velika opterećenja.
Foto: Leonar Dofinotti
Problemi montaže
Teniske dvorane su konstruisane tako da sa tri strane imaju betonske zidove, dok je zid okrenut ka padini
zastakljen
kako bi se omogućio pogled na okruženje. Naravno, ovaj stakleni zid je morao temeljno da se razmotri prilikom konstruisanja krovne konstrukcije.
„Konstrukcija je instalirana na četiri prethodno postavljena montažna tornja, koji su služili kao oslonac prilikom montaže. U fazi montaže, noseća konstrukcija je bila u takoreći
prednapregnutom stanju
. Kada su ploče sastavljene i kada je postignuta potpuna statistička stabilnost dijamantskog sistema, montažni tornjevi su spušteni.“, objasnile su arhitekte iz Rüssli Architekten.
Foto: Leonar Dofinotti
Foto: Leonar Dofinotti
Aluminijum kao pokrivač
Spoljašnju stranu krova prekrivaju
aluminijumski paneli
, odabrani zbog svoje izdržljivosti ali i boje koja adekvatno dopunjuje kamen korišćen na fasadi objekta.
Na krovu kao i na bočnim stranama fasada postoje otvori za ventilaciju terena leti, a na ovaj način teniske dvorane jednostavno se mogu povezati i mogu postati prostori za organizovanje raznovrsnih događaja.
Foto: Leonar Dofinotti
Rüssli Architekten su takođe izgradili i i novu tenisku kuću, koja je orijentisana ka otvorenom terenu i povezuje dva zatvorena terena.
Foto: Leonar Dofinotti
Osnova krovne ravni
Osnova
Preseci kroz objekat
Izgled
客服
消息
收藏
下载
最近














