查看完整案例

收藏

下载
京都的周末住宅:新旧材质的交错 / 小大建筑设计事务所 京都的周末住宅:新旧材质的交错 / 小大建筑设计事务所
住宅外立面 摄影:堀越圭晋 / SS
项目地点:日本,京都
设计单位:小大建筑设计事务所
建筑面积:60平方米
建成时间:2019
本项目是将日本京都的一座长屋形式的住宅,改造成适合一家人居住的周末住所。
This is a renovation project of a long-house style machiya in Kyoto.
住宅室内被设计为一个通透明亮的空间。长屋作为一种传统的日式房屋,由于住宅的两个侧壁是与邻居彼此共享,无法设置门窗,导致内部空间往往很昏暗,因此我们根据主人的生活方式设置了天窗,带来了全新的采光和通风方式。
A machiya is a type of traditional Japanese house where the two side walls do not have windows because they are shared by the neighbors, and the interior tends to be dark especially due to its long and narrow shape. A skylight was added according to the owner’s lifestyle, bringing new ways of illuminating and ventilating the space. We also removed the rotten and non-functioning building materials and upgraded sound and heat insulation quality.
改造前
改造后,全落地窗的设计保障了建筑的采光与通风 摄影:堀越圭晋 / SS
天窗光线进入的同时,显露了原有梁柱的材质特征,创造出具有深度的光影效果 摄影:堀越圭晋 / SS
我们将室内已无功效的腐烂建材移除,提高了隔音和隔热效果;原有的具有厚重历史感的梁、柱则被保留并修复;并借助季节性的本地植物和自然要素,对庭院进行了景观设计。在现代室内设计的衬托以及新旧材质的对比下使得他们差异化的美感更加突出。
Selected beam, columns, and the backyard were preserved and repaired. In contrast with the modern interior design, the beauty of these historical elements stands out more.
改造前
原有梁柱被保留并修复,构建出一个富有节奏感、整体而连续的空间框架 摄影:堀越圭晋 / SS
庭院在阳光和灯光的映射下,墙壁呈现出不同的肌理效果 摄影:堀越圭晋 / SS
在外立面的设计上,我们选择尊重并传承京都历史悠久的街道风貌,采取了谨慎而简单的干预方式,专门请传统手艺匠人重新处理了墙面;同时,在功能性上,将木窗框因自然损耗而减弱的密封性进行增强。在外观上做了最少的改变,以保留原有建筑立面的深邃历史感与美感。
In terms of façade design, we chose to respect the historical style of the Kyoto streets and made minimum changes to the appearance. We invited traditional craftsmen to only touch-up the earth wall and re-sealed the decaying wooden window frame.
原住宅外立面
温暖灯光营造温馨气氛 摄影:堀越圭晋 / SS
住宅所在街道风貌 摄影:堀越圭晋 / SS
在我们的理解里,尊重历史不是让自己一味地忍受与现代生活格格不入的生活方式,完全复制过去的生活;同时,我们也不应该完全摒弃历史存在过的痕迹。因此,我们希望在增加既有构件存在感的同时,翻新部分可以与之协调的共存,以此感受过去的回忆。
We believe being respective to the historical values should not be blindly enduring a lifestyle that is no longer appropriate nowadays, but at the same time, we also should not abandon all traces that once existed.We hope that one can feel the memories of the past by increasing the presence of the existing components.
一楼洗手间 摄影:堀越圭晋 / SS
住宅室内楼梯 摄影:堀越圭晋 / SS
二楼卧室 摄影:堀越圭晋 / SS 设计图纸 ▽
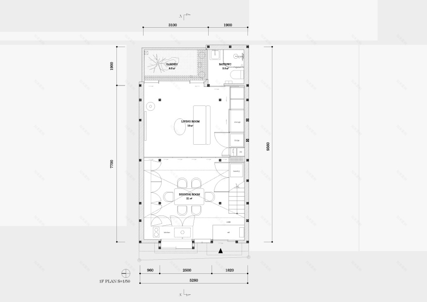
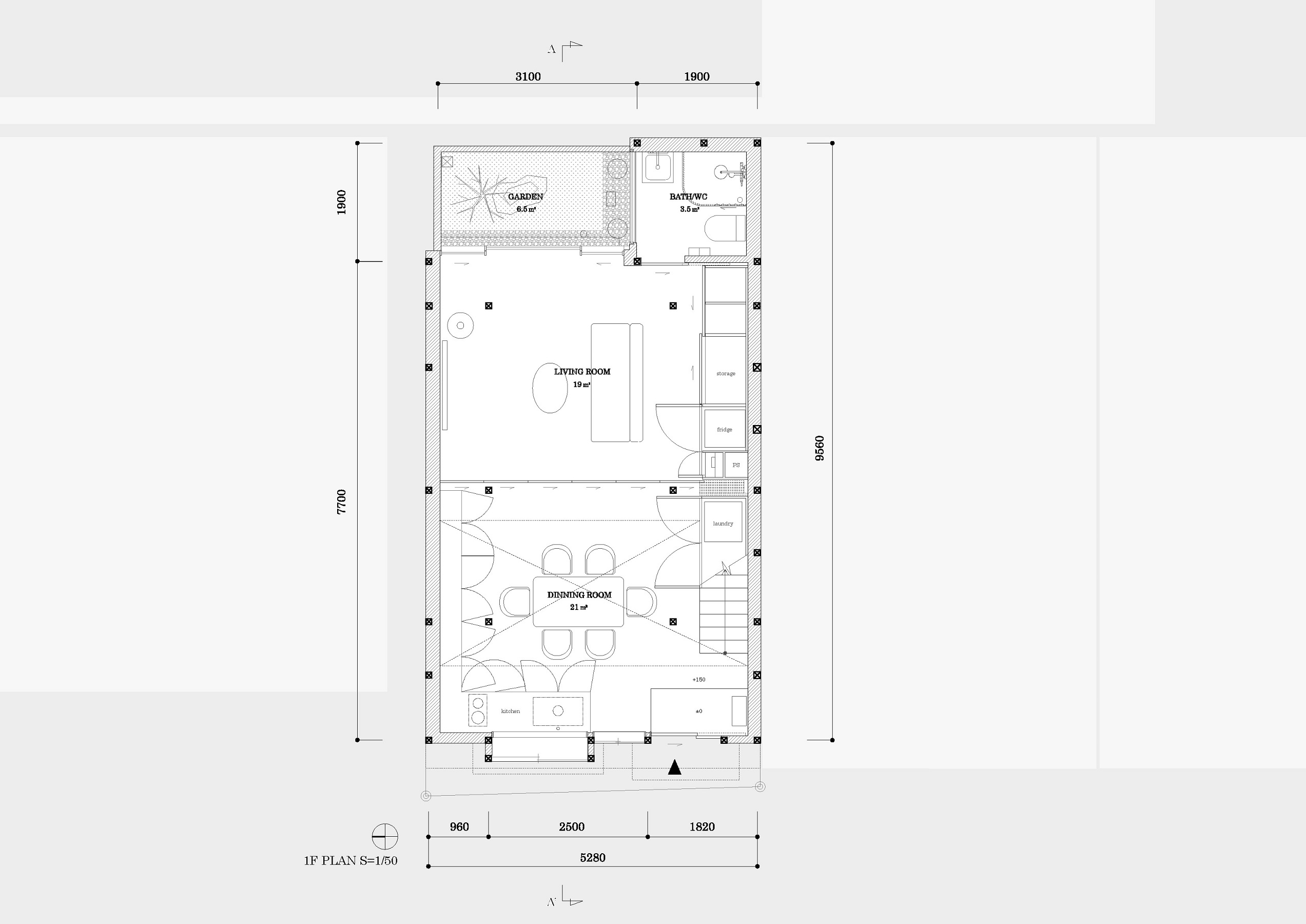
一层平面图 ©小大建筑设计事务所
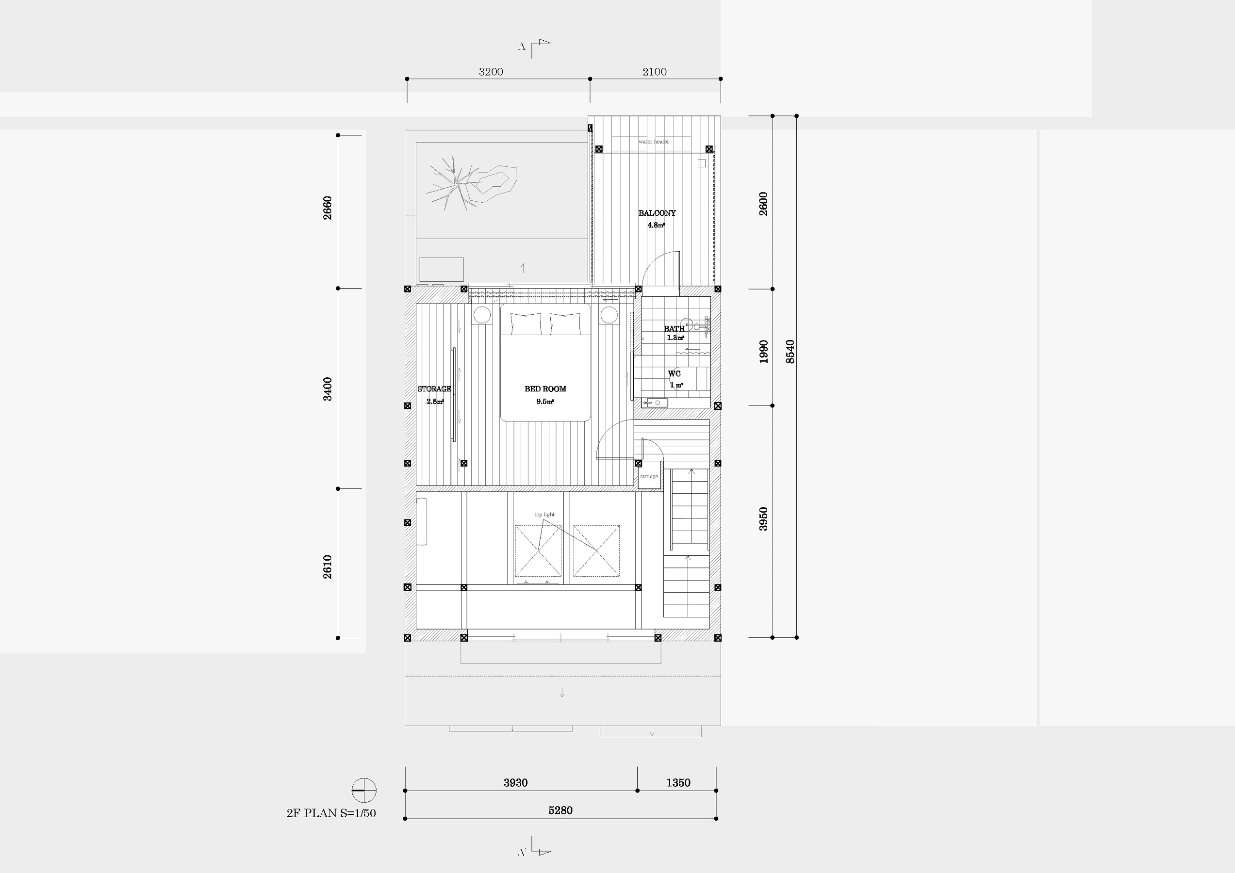
二层平面图 ©小大建筑设计事务所
剖面图 ©小大建筑设计事务所
完整项目信息
项目名称:Weekend House in Kyoto
项目类型:住宅
项目地点:日本,京都
设计单位:小大建筑设计事务所
主创建筑师:小嶋伸也、小嶋綾香
设计团队:小嶋伸也、小嶋綾香、泰川惠多朗
建成状态:建成
设计时间:2018年2月—2018年11月
建设时间:2018年11月—2019年4月
用地面积: 55.1平方米
建筑面积:60平方米
规划:小大建筑设计事务所
建筑:小大建筑设计事务所
景观:小大建筑设计事务所
室内:小大建筑设计事务所
照明:小大建筑设计事务所
施工:Az planning
摄影师:堀越圭晋 / SS
客服
消息
收藏
下载
最近



















