查看完整案例

收藏

下载
Stare daske od ariša poslužile su za fasadu; Foto: Esteban Arteaga, Alfonso Spoliansky
Ništa se ne baca! Ovako izgleda reciklirana kuća u Čileu
Zadatak za arhitekte bio je da se pri izgradnji kuće iskoristi što više materijala koje je porodica sakupljala tokom dugog niza godina. Rezultat izgleda ovako!
Dugačka, a uska kuća na dve vode podignuta je na brdovitom terenu s kojeg se pruža pogled na čileanske vulkane Osorno i Kalbuko. Osim toga što je porodica želela da njihov budući dom ima dobar pogled na ove prirodne atrakcije kao i da ima što više prirodnog svetla u enterijeru, projektni zadatak za arhitekticu
Maria Laura Cristi
i biro
Tramarquitectura
bio je da se u projekat
uključi što više recikliranih materijala i predmeta
, od kojih su poneki i iz prošlog veka, koje je bračni par sakupljao tokom godina.
Projekat je urađen u saradnji s vlasnicom kuće, koja je inače i umetnica, i kojoj će ova kuća od
200 kvadrata
služiti i kao atelje. Tako je nastala ova nesvakidašnja kuća
eklektičnog enterijera i eksterijera
koja pruža svojim vlasnicima dobru energiju za život i rad.
Gornja etaža; Foto: Esteban Arteaga, Alfonso Spoliansky
Kuća oblikom podseća na klasičnu kolibu, ali koja je reinterpretirana novim ali i starim materijalima.
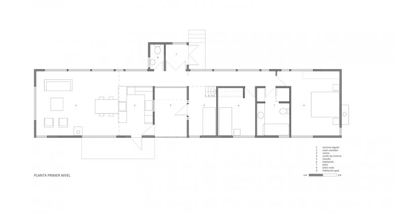
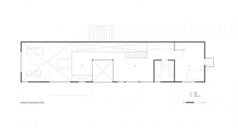
Imajući u vidu zahteve klijenata, arhitekte su osmislile
kuću na dve etaže
koja svojim oblikom podseća na klasičnu kolibu koja se može videti na jugu Čilea, ali koja je reinterpretirana novim ali i starim materijalima. Naime, jedna fasada urađena je od metalnih panela dok su severna, istočna i južna fasada od metalne konstrukcije koja je
obložena recikliranim daskama od ariša
koje su postavljene dijagonalno kako bi se vizuelno postigla dinamika, pišu arhitekte za
ArchDaily
.
Daske od ariša postavljane su u riblju kost; Foto: Esteban Arteaga, Alfonso Spoliansky
Severna fasada; Foto: Esteban Arteaga, Alfonso Spoliansky
Dupla visina
U kuću se ulazi s istočne strane duple visine u kojoj je
zimska bašta
okupana svetlom. Ona je dekorisana sa bezbroj predmeta kojima je unet nov život.
U severnoj strani kuće, koju takođe karakteriše dupla visina, smestila sa dnevna soba, sa trpezarijom kao i integrisana kuhinja koja je praktično
okvir za gornju etažu
na kojoj je smešten atelje. Privatna zona je u južnom delu kuće sa spavaćim sobama, radnom sobom i kupatilom.
Dvostruka visina prostora načičkana starim predmetima; Foto: Esteban Arteaga, Alfonso Spoliansky
Nameštaj, rasveta, detalji, slike – sve je to deo porodične kolekcije koja je sačuvana ili je sakupljana tokom dugog niza godina
U enterijeru je malo toga novijeg datuma. Nameštaj, rasveta, detalji, slike, prekrivači – sve je to deo porodične kolekcije koja je sačuvana ili je sakupljana sa raznih mesta tokom dugog niza godina. Zbog toga ovaj dom deluje tako
toplo i ušuškano
!
Ulaz u kuću bogat je zelenilom i recikliranim predmetima; Foto: Esteban Arteaga, Alfonso Spoliansky
客服
消息
收藏
下载
最近













