查看完整案例

收藏

下载
Atelier Xi, China
Surrounded by a field
of peach trees, the form
of Peach Hut is inspired by the trees’ tendency to lean to one side. The deep-pink pigmented concrete is used to create sweeping curves that arch into the sky
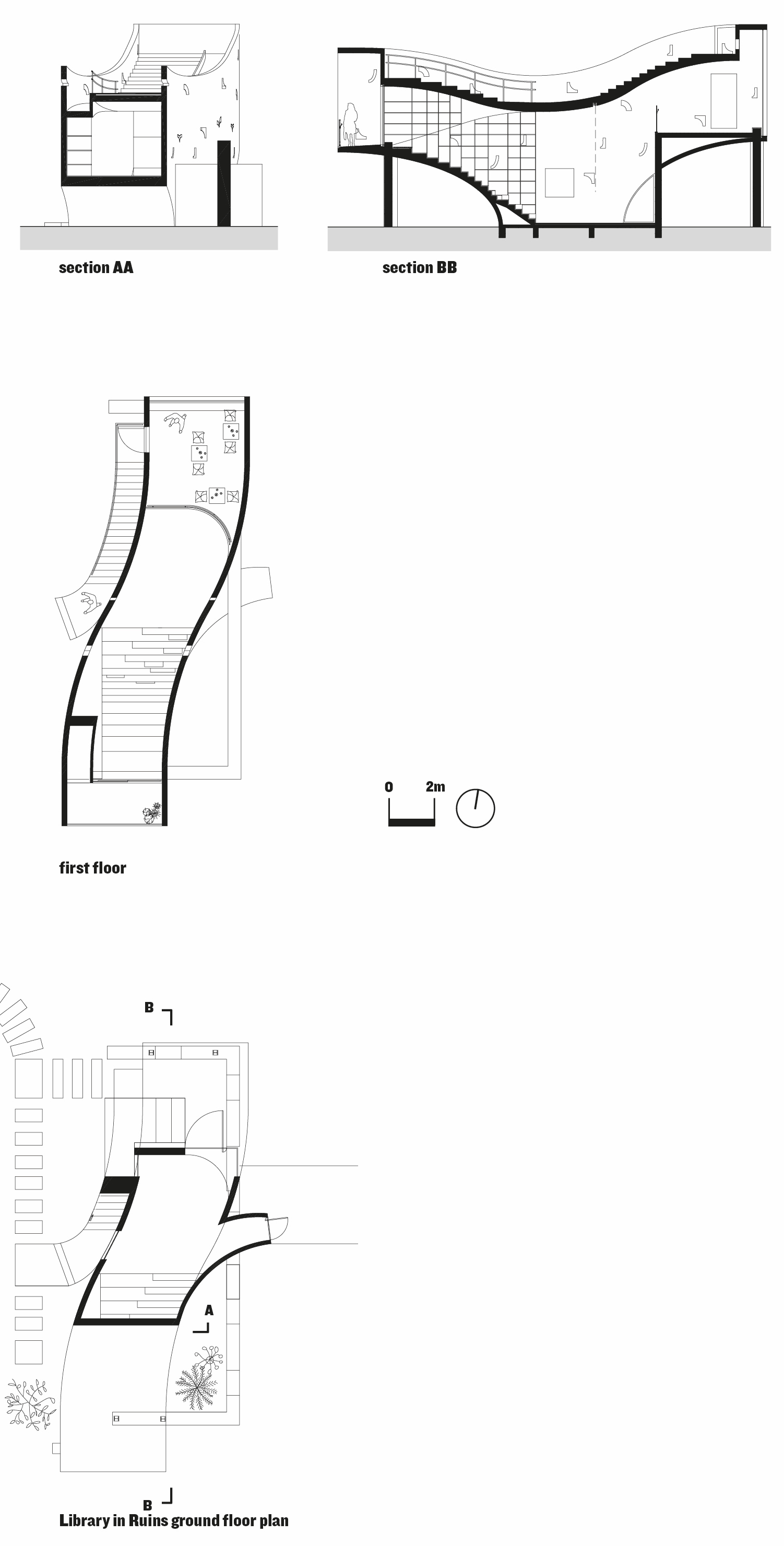
Library in Ruins sits
on top of the ruin of an adobe house in Sunyao Old Village
It uses the same sweeping forms as the Peach Hut, but in a regular grey concrete
The curve of the roof creates a slide for
local children
Since founder Chen Xi returned to China, the practice has sought to forge an architectural identity in rural areas
Atelier Xi has been shortlisted for the AR Emerging awards 2022. View the shortlist
Decades of rapid urbanisation in China have seen villagers migrate from rural to urban areas, in favour of newly constructed cities. Those who stayed behind face social and cultural fragmentation, a lack of quality spaces, and inadequate access to education and other resources. In the rural region of Xiuwu, Henan Province, Atelier Xi was commissioned by the local municipality, who have a restrictive budget, to design a 300m² public building to serve villagers across a 630km² site.
Challenging a prescriptive brief, the young practice rethought the typical community centre, instead proposing seven individual small buildings ranging from 50m² to 70m² each – sizes fitting their immediate context and use. Chen Xi, founder of Atelier Xi, grew up in Wuhan and Beijing and practised in the US and Denmark before setting up Atelier Xi in Shenzhen in 2017. It was his return to China that informed the series’ bold forms, juxtaposed with the rural land to create a specific architectural identity in his home country. One building provides respite and social space in a lush peach tree field during summer harvest; another emerges from the ruins of an abandoned village in a mountainous region to become a library; a third turns a spring fishing spot into a theatre on water – each building alluding to the cyclical patterns of agricultural production in China.
Leading the series, the Peach Hut pavilion was conceived as a place to provide shade and shelter, as well as hold harvest tasting events and generate seasonal income for villagers under the scorching summer sun. The building was cast
out of concrete, with a form mimicking the branches of surrounding trees, and a large cantilevered extrusion reaching for foliage. The curves of the concrete alcoves gently cradle visitors, while large openings frame the views of the peach trees. The distinct peach-pink shade of concrete pays homage to the peach field even when the branches are barren.
Located 20km from the Peach Hut, the Library in the Ruins continues the formalistic language of its predecessor to serve as a communal library and play space for children. Xi found poetry in the remnants of the adobe houses and cave dwellings of Sunyao Old Village, a mountainous area away from the town centre that the previous generation of villagers migrated from. Following intensive surveys and the preservation of the ruins of one of these houses, an earthen floor has been repurposed, and the new insertion is poised on top of the historic building. The glazing at both ends of the extension allows light to flood in during the day for reading. At night, the solidity of the new extension contrasts with the hollowness of the old, illuminating a structure that seeks to bring people back to a place that has been left behind.
The choice of material for both projects is considered – both crafted from cast
concrete that achieves a monolithic and sculptural quality. They evoke a sense of strength and stability for communities that seek to regain a sense of identity. However, local workers and contractors had limited experience working with materials other than concrete; given the close connection between the Peach Hut and its natural surroundings, the architects introduced timber formwork casting as a new construction technique for the builders, achieving collaborations and partnerships. Atelier Xi celebrates the traces of construction as the marks left by the craft over time.
The construction of the rest of the series has been delayed until funds and donations are made available to the municipality. But in Xi’s imagination, the structures are vivid and free-spirited, conscious of their social responsibility and waiting to be enlivened as common grounds for villagers and visitors alike. In its work, Atelier Xi turns the restrictions that might impose limitations on design into compelling architecture by taking small steps and creating quiet yet resilient spaces.
客服
消息
收藏
下载
最近









