查看完整案例

收藏

下载
Art Stable / Olson Kundig Architects
Architects
: Olson Sunberg Kundig Allen Architects
Area
: 25,556 ft²
Year
: 2010
Photography
: Benjamin Benschneider, Tim Bies, Point32, Victor Call
Lead Architects
: Tom Kundig
Project Team
: Kirsten Ring Murray, Kevin M. Kudo-King, Jeff Ocampo, Ming-Lee Yuan
City
: Seattle
Country
: United States
Art Stable, designed by Olson Kundig Sunberg Kundig Allen Architects, is a seven-story live-work building situated on a former horse stable site in Seattle, Washington DC. Completed in 2010, this adaptive reuse project caters to urban living and working, offering five adaptable units that revitalize the site with innovative design features. The building emphasizes flexibility and sustainability, incorporating large, manually operable art doors operated by a custom-designed hand wheel and hinge system. This unique feature extends to a rotating davit crane on the rooftop, enhancing functionality and reflecting the neighborhood’s industrial character. Additionally, the structure includes a geothermal heat pump system that blends concrete, steel, and glass materials. Recognized with the 2010 AIA Seattle Citation Honor Award, Art Stable highlights innovative urban design in a compact city environment.
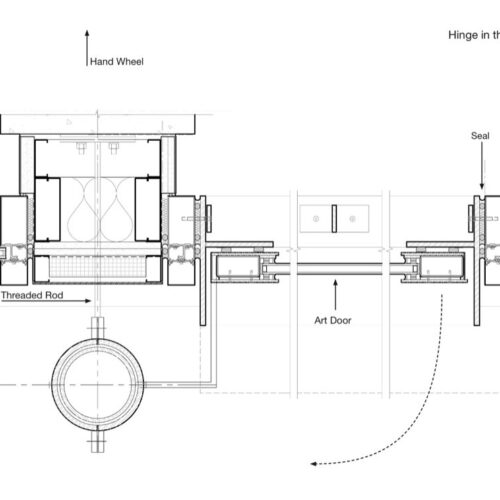
A collaboration between the architect, client, engineer, builder, and fabricator resulted in a unique hinge mechanism that enables the opening of 8-foot tall by 12-foot long steel-clad doors on all seven levels. These vertically stacked art doors on the building’s alley side facilitate the easy movement of large materials or art pieces in and out of each unit.
The custom hinge and art doors, located on the east-facing alley side, can be opened up to 75 degrees by turning a large hand wheel. This mechanism, involving a threaded rod and sliding pivot bolt, allows users to easily manage the 2,250-pound doors, holding them open at the desired angle. The crane then lifts or lowers objects into or out of the units.
On the west side, steel-framed windows, also measuring 8 feet tall by 8 feet long, are supported by a similar hinge mechanism. These windows offer views of the city and the Cascade Mountains, adding a dramatic visual experience for residents.
The building’s design, using concrete, steel, and glass, reflects the warehouse typology of the transitioning industrial neighborhood. Each unit boasts an 11-foot ceiling height and floor-to-ceiling window walls. Interior spaces are left for owners to customize, with the option to add windows to the north facade, balancing privacy and transparency. The street-facing side of the building features oversized hinged windows that open for cross-ventilation.
The building incorporates several sustainable features, such as a geothermal heat pump system embedded in the foundation’s augercast structural pilings (the first use of this system in the US), in-floor radiant heating and cooling, natural ventilation, and the potential for future solar/photovoltaic technology integration. The flexible design also anticipates the possibility of future non-residential use.
Address
: 516 Yale Ave N, Seattle, WA 98109, United States
Architect
Anton Giuroiu
Anton is a RIBA accredited architect, when he's offline, he spends his time with the sculpta.ba architecture practice or in the MKR.S crafting studio, laser engraving and laser cutting architecture models. In his free time he geeks over taking care of his pencil and mechanical pencil collection.
Expertises:
Architecture, Interior design, Home improvement, Drawing, Laser machining
客服
消息
收藏
下载
最近


























