查看完整案例

收藏

下载
Planirani objekat u Ugrinovačkoj 100-102; Vizuelizacija: Vemex Projekt
Zemunska novogradnja: Četvorospratnica u Ugrinovačkoj ulici na javnom uvidu
Preduzeće „Zemun Invest“ planira izgradnju objekta sa 24 stana, poslovnim prostorom od 126 kvadrata i podzemnom garažom sa 39 parking mesta.
Nakon nedavno najavljenih novih objekata na brojevima 58 i 92, Ugrinovačka ulica u Zemunu mogla bi i na broju 100-102 uskoro dobiti još jednu stambeno-poslovnu zgradu, a za čiju izgradnju je ovih dana javnosti predstavljen i urbanistički projekat.
Nosilac izrade projekta, koji se na javnom uvidu nalazi do 11. maja, je preduzeće „Vemex Projekt” d.o.o. iz Beograda, investitor je preduzeće „Zemun Invest” d.o.o. iz Zemuna, dok je posao odgovornog projektanta poveren Ivani Banović, dia.
U objektu je projektovano ukupno 39 parking mesta; Vizuelizacija: Vemex Projekt
Parcela od 1.113 kvadrata. Urbanistički projektom su obuhvaćene tri cele katastarske parcele u KO Zemun, koje su istovremeno i granica obuhvata i od kojih se formira jedna građevinska parcela GP1 koja će imati površinu od 1.113 m².
Parcela je topografski skoro ravna sa veoma blagim padom od ulice ka zadnjoj strani parcele, i po liniji ulice od jugoistoka ka severozapadu, a na noj se nalaze izgrađeni porodični objekti koji su svi predviđeni za rušenje.
Situacija – krovne ravni
U podrumu se nalazi garaža sa 39 parking mesta, od čega je 13 parking mesta ostvareno sistemom nezavisnog parkiranja.
Stambeno-poslovni objekat je projektovan kao dvostrano ugrađen objekat, a zauzima ukupnu BRGP od 2.679 kvadratnih metara.
Spratnost objekta je Po+Pr sa galerijom+3+Ps.
U podrumu se nalazi garaža sa 39 parking mesta, od čega je 13 parking mesta ostvareno sistemom nezavisnog parkiranja.
Pogled iz dvorišta; Vizuelizacija: Vemex Projekt
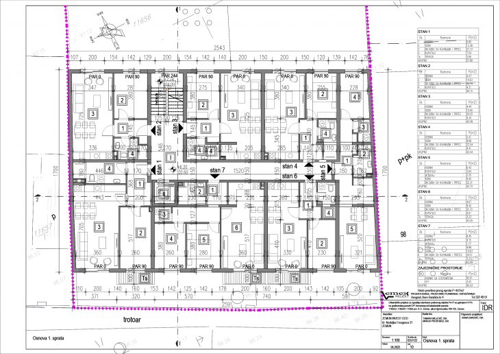
Projektovana 24 stana
U prizemlju se nalazi poslovni prostor korisne prodajne površine oko 126 m² sa magacinom. Prizemlje je projektovano sa galerijom i biciklanama.
Na spratovima i na povučenom spratu projektovan su ukupno 24 stana različitih struktura.
Osnova podruma
Osnova prizemlja
Osnova galerije
Osnova 1. sprata
Osnova povučenog sprata
Presek 1-1
Presek 2-2
Planirani objekat u Ugrinovačkoj 100-102; Vizuelizacija: Vemex Projekt
Vizuelizacija: Vemex Projekt
Vizuelizacija: Vemex Projekt
Vizuelizacija: Vemex Projekt
客服
消息
收藏
下载
最近















