查看完整案例

收藏

下载
RIBA's House of Architecture plans become clearer with updated Benedetti proposal
Plans for the upcoming restoration of the
Royal Institute of British Architects
(RIBA)
66 Portland Place
headquarters in London have become clearer with the release of an updated proposal detailing the scope of work on the new House of Architecture project.
Benedetti Architects
will be leading the project, which was won in 2022 after a
short competition
. The estimated £58.8 million (about $74.3 million USD) effort will enable full accessibility throughout all 28 levels of the 90-year-old Art Deco building while removing extant fossil fuel-dependent systems to support a push toward net zero. The original George Grey Wornum design has been protected under a historic Grade II* listing since 1970.
RIBA says: "[The] House of Architecture brings together three critical areas of our work that need investment, and will deliver on improvements that are fundamental to RIBA’s ongoing mission."
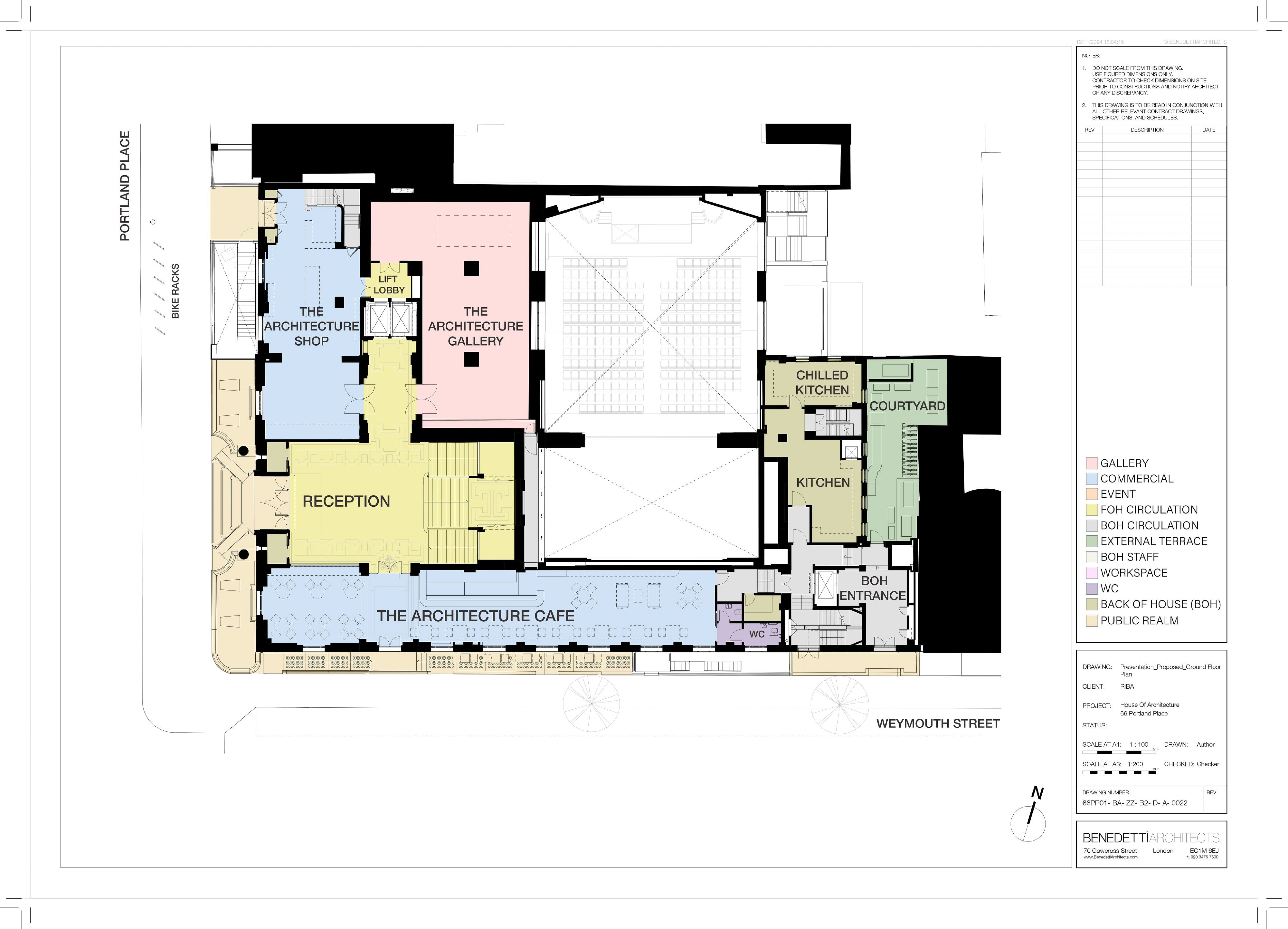
The project adds a new café while reinstating the building’s original members’ room from 1934, reimagining its library, refurbishing the existing Architecture Gallery, and relocating the exhibition room up another floor to supplement study and discovery opportunities in compliment to the newly adjacent library. The RIBA bookshop is also set to be relocated to better serve the public.
Among the much-needed accessibility upgrades, the project will create larger elevators that can now accommodate wheelchair users and install improved entrances at the ground level in place of those that had been described as "outdated" and "intimidating" in public feedback. Banners that were hanging above the entrance were also removed after summer consultations with the Westminster Council.
RIBA expects the final planning application to be submitted early next year before 66 Portland Place is closed in May. Construction will take approximately two years to be completed in time for the end of 2028. RIBA says its plan to open a temporary space in London in September 2025 has yet to be confirmed. The new location of the removed Collections is also yet to be identified.
客服
消息
收藏
下载
最近

















