查看完整案例


收藏

下载
客户橡树屋学校工作室亚伯拉罕Herreruela,阿尔贝托阿罗约,康塞普西翁帕迪利亚结构欧盟TECA设施BM Ingenierios建筑公司Novantia整体S.A.技术建筑师Roberto López制造商装货.多规格少规格
Client Oak House School Studio Abraham Herreruela, Alberto Arroyo, Concepción Padilla Structure EUTECA Facilities BM Ingenierios Construction Company Novantia Integral S.A. Technical Architect Roberto López Manufacturers Loading... More Specs Less Specs
© Enrique Cabeza de Vaca
(Enrique Cabeza De Vaca)
架构师提供的文本描述。在整个人类历史中,天才基因座的表达被赋予了不同的含义,反映了人类对事物的理解的需要,而不仅仅是对地方的存在和形态的理解。
Text description provided by the architects. Throughout human history, the expression genius loci has been given different meanings, reflecting man’s need to understand something beyond the physical presence and morphology of places.
© Enrique Cabeza de Vaca
(Enrique Cabeza De Vaca)
橡树屋学校的新建筑所建的地块,充满了风景的意义和社区自身的价值。该项目的基本目标之一是倾听这一含义并保存这些价值观。
The plot of land where Oak House School’s new building has been erected was laden with scenic meaning and the community’s own values. One of this project’s fundamental aims has been to listen to that meaning and conserve those values.
© Enrique Cabeza de Vaca
(Enrique Cabeza De Vaca)
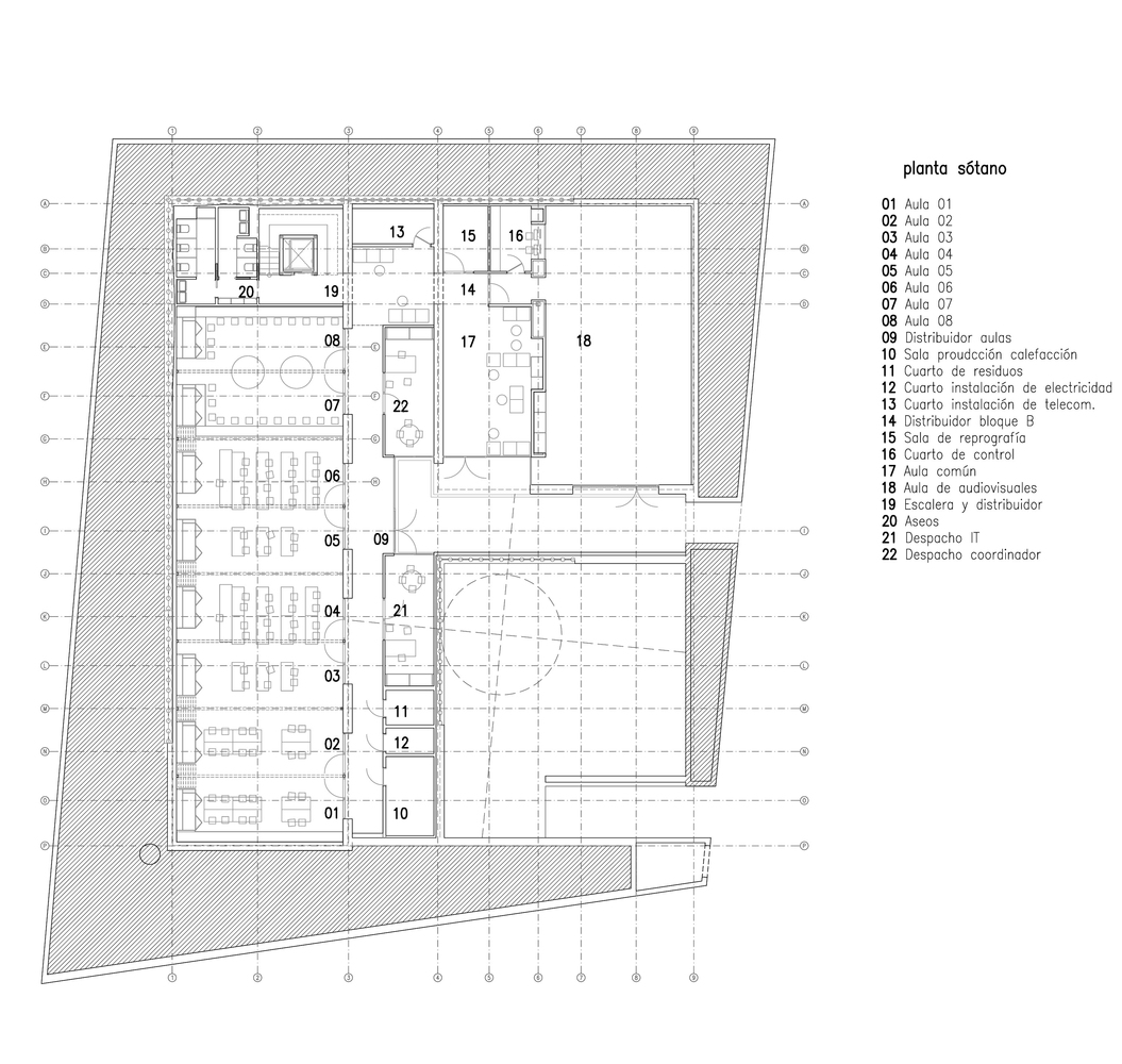
分成两卷,满足了尽可能多地暴露在自然光线和通风下的外观的需要。这些体积的定位使南面暴露在最大可能的垂直表面面积。他们的位置保存了原来别墅的休闲区域:法国花园。
Division into two volumes meets the need to expose as much of the façade as possible to natural light and ventilation. The positioning of these volumes gives southward facing exposure to the largest possible area of the vertical surface. Their location conserves the original villa’s leisure area: the French garden.
Axonometric
最后的形式是这些战略之间对话的结果:两个物质层面被一条透明的地带隔开。在它上面,两个悬挂的天然木材展馆与原别墅的塔相互作用和框架。在它下面,沉入土地的白色混凝土墙系统驯化了地形,塑造了地块的内部循环,并在古老的法国花园里建起了一个小的大学前校园。
The final form results from a dialogue between these strategies: Two material levels separated by a transparent strip. Above it, two suspended natural wood pavilions interact with and frame the original villa’s tower. Below it, a system of white concrete walls sunk into the land domesticates the topography, shapes the plot’s inner circulation and houses a small pre-university campus in the old French garden.
© Enrique Cabeza de Vaca
(Enrique Cabeza De Vaca)
从建筑的角度来看,这个项目的解决方案来自于上下层之间的辩证法。在半埋层中,包裹系统是“整体”的,因为它是由一层材料形成的。在空中层,围护系统是一个多层通风的干燥木材表面。一个是巨大的,另一个是光。
From an architectural point of view, this project’s solution arises from the dialectics between the upper and lower levels. In the semi-buried layer, the enveloping system is “monolithic”, in that it is formed by a single layer of material. In the aerial layer, the enveloping system is a multi-layered ventilated façade of dry-jointed wood. One is massive, the other light.
单一的材料支撑、隔离、包裹和包含设施的整体层遵循我们几个世纪以来建造的方式:希腊寺庙、佛罗伦萨宫殿、哥特式大教堂和传统的土坯房。在设计阶段,我们要求Cemex有可能为两边的白面混凝土创造一个具有特定传热和阻力水平的特制混凝土。它必须非常厚(45厘米),以达到所需的舒适性,因为,尽管在传热方面有很大的改善,它是不可能达到我们的规格使用传统的厚度水平。
The monolithic layer, where a single material sustains, insulates, clads and contains the facilities, follows the way we have built for centuries: Greek temples, Florentine palaces, Gothic cathedrals and traditional adobe houses. In the design stage we requested CEMEX the possibility of creating a tailor-made concrete with specific levels of heat transfer and resistance for a white-finish concrete on both sides. It had to be very thick (45cm) to achieve the required comfort, given that, despite significant improvements in heat transfer, it was impossible to reach our specifications using conventional levels of thickness.
© Enrique Cabeza de Vaca
(Enrique Cabeza De Vaca)
另一方面,空中水平是使用相反的建筑系统设计的:一个干式通风立面。在这里,信封是由不同的重叠层组成的,每个层都扮演着特定的角色,并且作为一个整体满足所有需要的规范。应特别提到乙酰化木覆层“Accoya Wood”。这种处理改变了木材的有机结构,去除了木材的吸湿特性,使木材处于自然状态,没有清漆或木材污渍。
The aerial level, on the other hand, has been devised using the opposite construction system: a dry-joint ventilated façade. Here, the envelope is made with different overlapping layers, each of which plays a specific role, and which as a whole meet all the required specifications. Special mention should be made of the acetylated wood cladding “Accoya Wood”. This treatment modifies the organic structure of the wood, removing its hygroscopic properties, making it possible to leave the wood in a natural state, without varnish or woodstain.
© Enrique Cabeza de Vaca
(Enrique Cabeza De Vaca)
从环境角度看:该项目采用了精确的被动措施,从而降低了对能源的需求:其半埋藏的位置和植被覆盖使室内温度稳定,以抵御外部气候的变化。暴露在南方的光线捕捉冬天所需的能量,循环空间和遮阳系统保护建筑物不受直接阳光的照射,从而消除了夏季空调的需要。
From an environmental perspective: The project incorporates precise passive measures, which result in a lower demand for energy: Its semi-buried position and vegetation cover stabilise the interior temperature against the changes in the exterior climate. Exposure to light from the south captures the energy needed in winter, and the circulation spaces and shading systems protect the building from direct sunlight, eliminating the need for air conditioning in summer.
© Enrique Cabeza de Vaca
(Enrique Cabeza De Vaca)
Axonometric
还纳入了积极的措施,这些措施转化为对太阳能的有效利用:主要的能源来源在场址本身。冷却和加热系统通过地热系统从底土中获取能量。
Active measures are also incorporated, which translate into an efficient use of solar energy: The main source of energy is found at the site itself. The cooling and heating system gets its energy from the subsoil, via a geothermal energy system.
© Enrique Cabeza de Vaca
(Enrique Cabeza De Vaca)
Architects Trasbordo Arquitectura
Location Carrer de Sant Pere Claver, 08017 Barcelona, Spain
Category High School
Architect in Charge Justo Orgaz, Ignacio Capapé
Project Year 2015
Photographs Enrique Cabeza de Vaca
Manufacturers Loading...
客服
消息
收藏
下载
最近


























