查看完整案例

收藏

下载
倫敦金士頓大學學生學習中心/Grafton Architects
倫敦金士頓大學學生學習中心/Grafton Architects
Grafton Architects所設計的倫敦金士頓大學(Kingston University)學生學習中心完成,這棟造價高達5000萬英鎊的地標學習中心是2013年金士頓大學與英國皇家建築師學會聯合發起的競圖,作為大學的大門以及通往泰晤士河的金斯敦門戶,該學習中心是金斯敦新願景的一部分,它鼓勵非正式學習,與市中心建立更緊密的聯繫,並將充滿活力的學生群體與當地社區聯繫起來,最終從五名候選團隊中選出了Grafton Architects來設計該建築。
作為大學的創新學習中心,該建築的開放精神在內部得到了呈現,9400平方公尺面積中超過50%是開放式配置。相互聯繫的空間矩陣在空間和視覺上相互重疊和交織,使學生、參觀者和工作人員都能找到僻靜的角落,進行創造性學習和小組合作工作,同時建築又不失相互聯繫的整體性。在學習中心內,你可以看到整棟建築發生的事情,這有助於協作並促進學習成為一個社會過程。
該建築由屢獲殊榮的承包商Willmott Dixon建造,取代了可容納學生、會議和辦公空間的預鑄建築,學習中心標示著振興金斯敦大學傳承的重要里程碑,擴大了大學在金斯敦皇家自治區的地位。
Grafton Architects 以永續發展和社區導向型大學為核心,從根本上重新配置了學生的學習體驗,創造了自由開放的空間,使得非正式的學習、研究和表演有機地在融合在一起。該學習中心在設計時充分考慮了當地社區以及員工、學生和校友的需求,為社區提供了全新且充滿活力的市民服務,為英國大學建築的未來提供了世界級的願景。
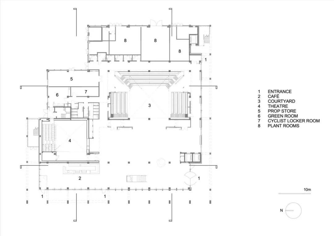
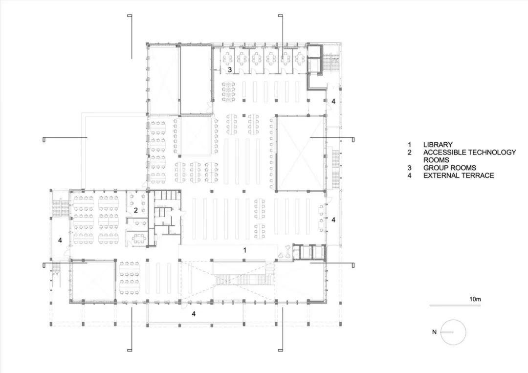
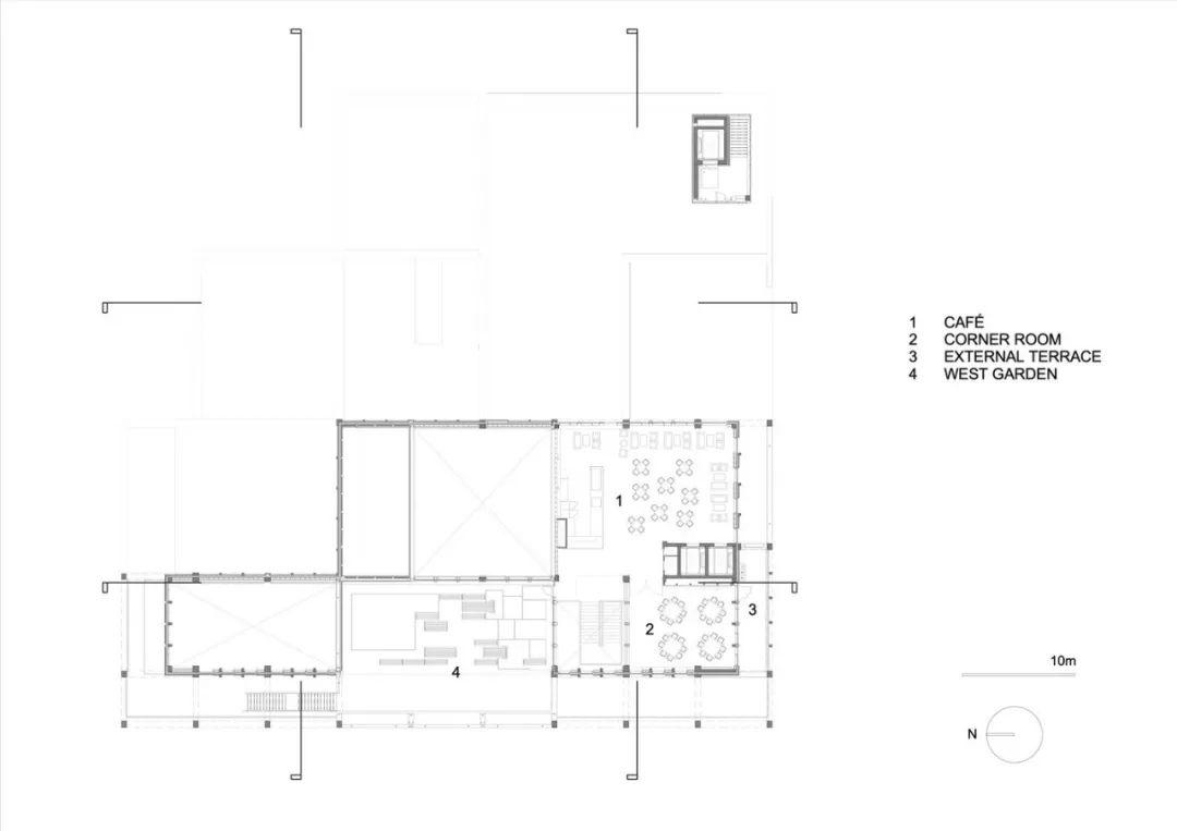
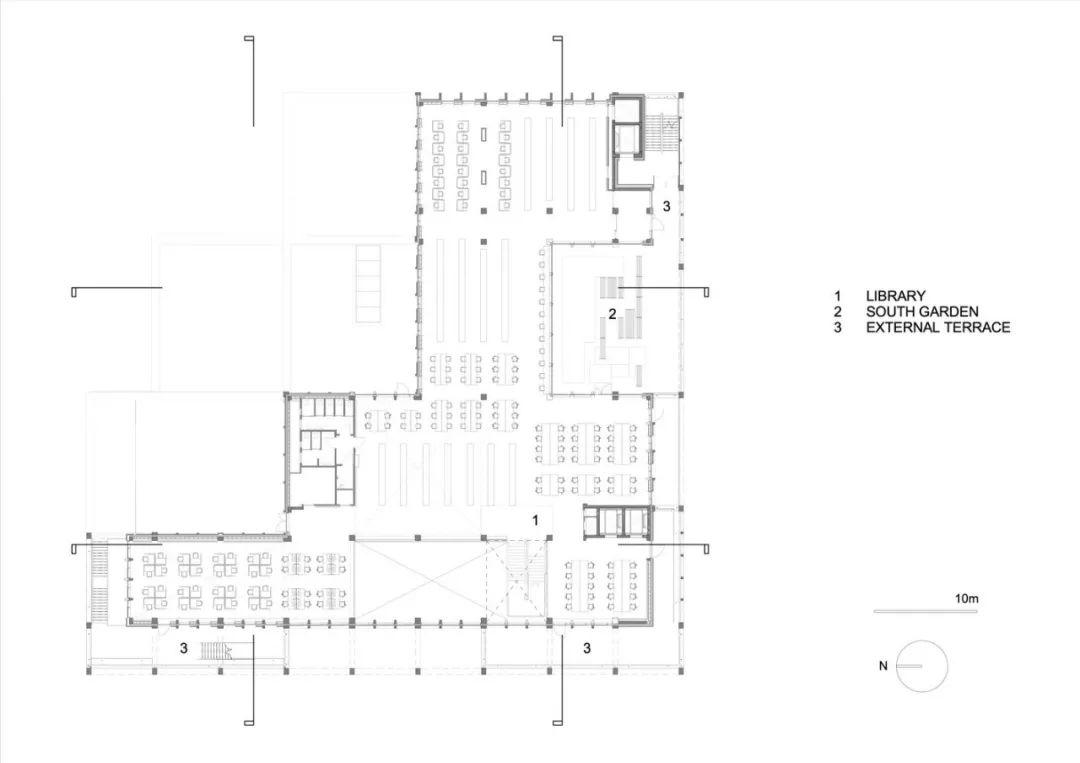
作為學生、員工、校友和當地社區的文化和教育中心,該學習中心設有大學圖書館和檔案館,帶頂棚的庭院,舞蹈工作室,劇場、適應性學習空間以及兩個咖啡館,同時還考量到了社區的需求。
柱廊採用了北歐建築的外部迴廊,是提案的關鍵部分,它提供了無障礙的舒適空間,試圖吸引學生、員工、訪客和社區走進建築。在較高的樓層,三個層疊的景觀露台塑造了整個建築的外立面,將建築物從地面到屋頂連接起來。由重建的石頭建造,柱廊的外立面採用再生石材建造,與對面的薩裡郡議會大廈的波特蘭石材立面相呼應。
室內中庭挑高達三層樓高,咖啡廳、門廳以及表演集會空間位於地面層,歡迎訪客來參觀。宏偉的開放式樓梯穿過建築物,連接量體各部和機能空間,同時,私人學習區確保了學習可以不間斷地進行。
基地平面圖
地面層平面圖
二樓平面圖
三樓平面圖
四樓平面圖
五樓平面圖
六樓平面圖
剖面圖
剖面圖
剖面圖
剖面圖
立面細部
立面細部
等角透視分析圖
作品資訊
作品名稱:Kingston University Town House
作品位置:英國Penrhyn Rd, Kingston upon Thames KT1 2EE,
業主:Kingston University
建築師:Grafton Architects
作品名稱:
完成年份:2020年
總樓地板面積:9400.0 m2
攝影師:Ed Reeve,Dennis Gilbert / VIEW
承包商:Willmott Dixon Construction (WDC)
結構工程:AKT II
機電顧問:chapmanbdsp (Design Stage), DES Electrical/CMB Engineering (Construction Stage)
專案造價管理:Turner & Townsend
施工技術員, Cdm&BIM顧問:Turner & Townsend
業主技術團隊:Architon Group Practice and MG Partnership
現場監工:Fulkers
客服
消息
收藏
下载
最近





































