查看完整案例

收藏

下载
Casa B-138 / Taller 11 Arquitectura
Diseño:
Taller 11 Arquitectura
Ubicación:
Alto de Las Palmas, Envigado, Colombia
Arquitectos a cargo:
Giovanni Hincapié Ocampo – Juan Sebastián Aristizábal Buitrago
Ingeniero a cargo:
Taller 11 Arquitectura
Fotografías:
Heltah estructuras (Santiago Arboleda)
Año:
2023
Área
: 523 m2
Estado:
Construida
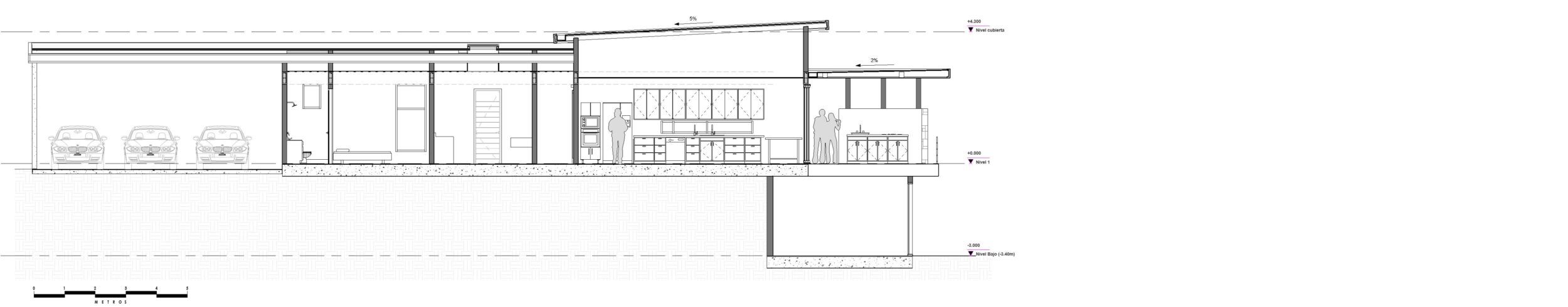
Ubicada en el alto de las palmas en el municipio de Envigado, se compone de tres módulos principales en los cuales se distribuyen las áreas privadas, sociales y de servicios en primer nivel y un nivel inferior con espacios complementarios y de ocio para sus propietarios.
Desde el diseño se buscó destacar la condición en la cual se encontraba el lote, por tal razón se plantea que hacia su fachada norte fuera reservada y que destacaran los materiales utilizados, en sus costados oriente y occidente aprovechar su condición solar para mantener la temperatura e iluminación natural en cada uno de los espacios durante el día y finalmente hacia su fachada sur darle un remate hacía el paisaje por medio de una terraza que unifica las áreas sociales y enmarca la naturaleza además de adentrar su contexto y hacerlo parte de su diseño.
La vivienda se desarrolla en un área total de 523 m
2
.
客服
消息
收藏
下载
最近




























