查看完整案例

收藏

下载
Kwong Von Glinow Design Office Wins New York Affordable Housing Challenge
Kwong Von Glinow Design Office
was awarded 1st Prize for their New York Affordable Housing Challenge competition entry. Their project responds to Mayor de Blasio’s priority placed on creating more affordable housing in
New York City
, by using both new sites and redeveloping existing sites. The housing crisis for the last two decades has generated a more and more socially disparate city, with the majority of NYC residents spending more than half of their yearly income on rent. Kwong Von Glinow Design Office provides a housing solution based on the modular system of a “table top” which aggregates and stacks to provide good density and good diversity as a prototype for affordable housing in New York City. The system is not only flexible to accommodate the various lot sizes of New York City, but is also adaptable to various unit combinations, providing diversity within.
The award took place at the New York Build Expo 2017 held at the Javits Center, presented by Vividly and Bee Breeders. Lap Chi Kwong and Alison Von Glinow, co-founders of Kwong Von Glinow Design Office, presented their winning entry at the Expo.
The Table Top Apartments
proposal was realized in virtual reality by Vividly at the Expo, allowing visitors to walk around the apartment’s vertical courtyards with VR glasses.
Project Description
The Table Top Apartments
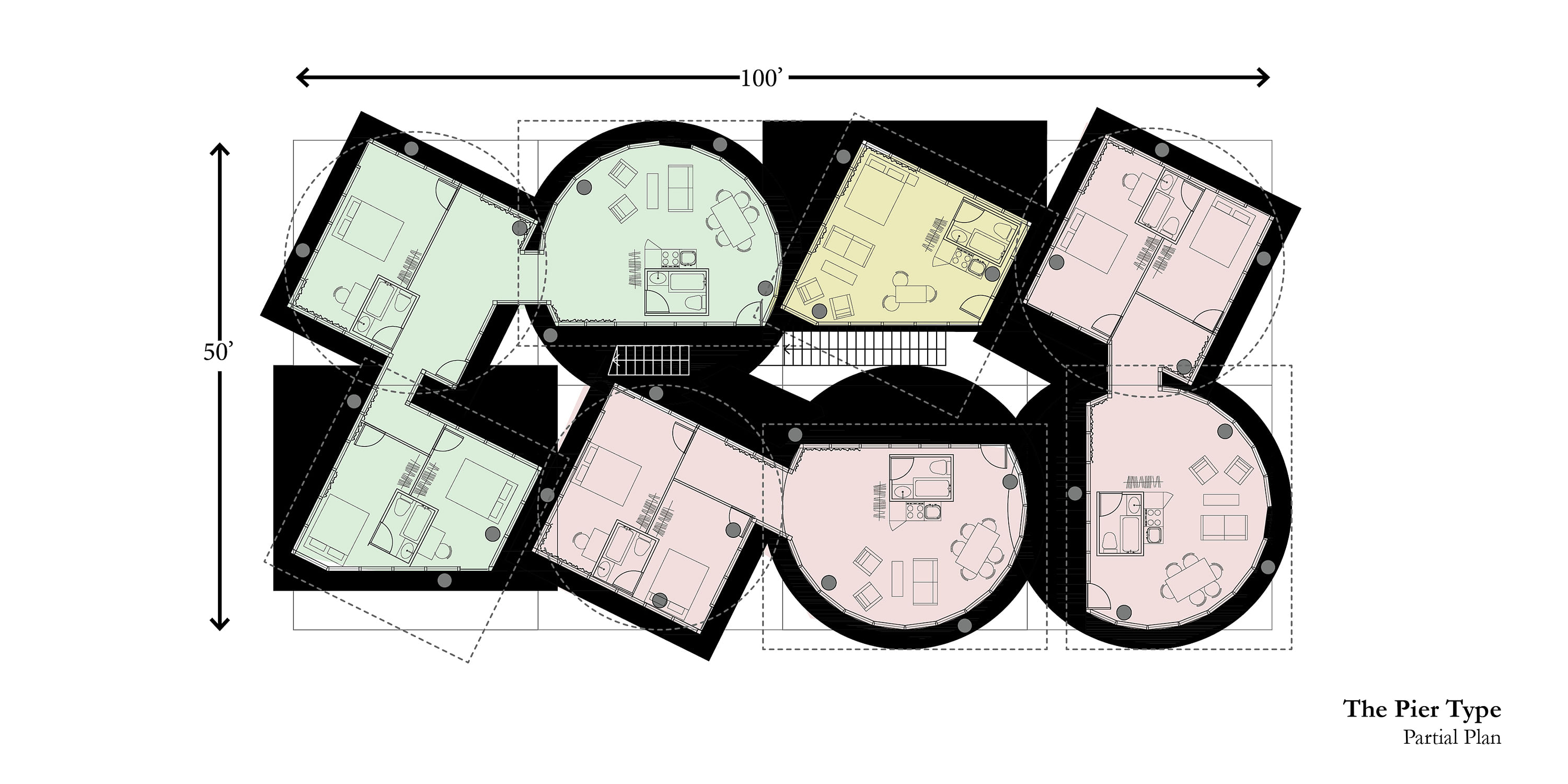
uses a system of modules based on the form of stacking table tops to generate affordable housing as 4-story walk-ups, piers, towers with setbacks and cascading balconies, and even superblocks. This table top system is not only flexible to accommodate the various lot sizes of New York City, but is also adaptable to various unit combinations, providing diversity within the housing.
The Table Top Apartments
emerges from the use of a few simple modular elements which aggregate to create a new mode of living between the inhabitants, their neighbors and the public. The concept of the module is taken from a table top with four legs where the
table top
or
slab
is shaped as either a circle, square or rectangle, and the
table legs
or
columns
serve as the building’s structure and space for vertical services. The post-and-slab table top units stack and aggregate, creating different combinations of unit-types to emphasize the project’s assertion that diversity paired with density makes for a healthy and sustainable living environment. A simple storefront glazing system mediates between the interior of the units and the exterior, while private spaces and bathrooms are enclosed in wood cabinets.
The use of three different table top shapes, which are deliberately misaligned when stacked, create apertures in the slab between units. The resulting vertical courtyard space forms a realm that serves as space for public circulation, bringing in light and air. The spatial juxtapositions of
The Table Top Apartments
generate a new way of living in affordable housing that is dense, diverse, open, and light.
Kwong Von Glinow Design Office
Lap Chi Kwong and Alison Von Glinow co-founded Kwong Von Glinow Design Office in Chicago in 2016. Both partners earned their Masters of Architecture from Harvard University Graduate School of Design. They have worked for Pritzker prize-winning architects Herzog & de Meuron in Basel, Switzerland, Pritzker prize-winner Wang Shu in Hangzhou, SOM in Chicago and New York, and Toshiko Mori Architect in New York before opening their own office. Their firm has been named the recipient of the 2016 Chicago Prize awarded by the Chicago Architecture Club. Their office is currently working on several projects in Chicago and Hong Kong.
客服
消息
收藏
下载
最近





















