查看完整案例

收藏

下载
Kuća oblikovana stranama sveta
Anđela Aleksić,
09.10.2015.
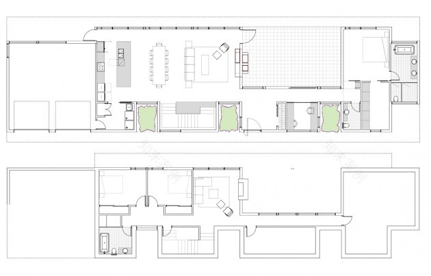
Organizacija unutrašnjosti ove impresivne kuće u potpunosti je vođena željom za stvaranjem sklada s okruženjem, ali i stranama sveta.
Arhitekta
Randy Bens
projektovao je ovu porodičnu kuću u zapadnom Vankuveru, u neposrednoj blizini obale mora Sališ.
Želja za dobijanjem pogleda na more iz što više prostorija, oblikovala je kuću u izduženu pravougaonu formu.
Dok su dnevna zona i spavaće sobe okrenute ka zapadu i prelepom pogledu na more, stepenište i kupatila, kao i pomoćne prostorije, organizovane su na istočnoj fasadi.
Na istočnoj strani kuće formirane su tri niše, preko kojih eksterijer ulazi u zonu fasade i ritmično je razigrava.
Na zapadu, kuća je usmerena i na veliko dvorište i natkrivene prostore predviđene za relaksaciju u prirodi.
Iako je čitava kuća nastala oblikovanjem pod uticajem okruženja, forma krova dobijena je kao posledica stvaranja potrebnih volumena unutrašnjeg prostora, istakao je
arhitekta
.
Materijali koji su korišćeni na eksterijeru kuće, javljaju se i u enterijeru. Beton, čist ili prekriven belom bojom, drvo i metal dominirali su kod materijalizacije ove porodične kuće.
Foto:
Ema Peter
客服
消息
收藏
下载
最近










