查看完整案例

收藏

下载
Nikola Popić: Kosor House
Nikola Popić: Kosor House
Within the framework of the Annual Exhibition of Realizations by Croatian Architects in 2010, which is set to take place at the end of the week in Split, the Croatian Architects’ Association (
CAA
) will confer their awards for the most successful Croatian architects’ realizations in 2010 both in Croatia and abroad.
The nominated realizations contending for the ‘Bernardo Bernardi’, ‘Drago Galić’ and ‘Viktor Kovačić’ Awards, respectively, were featured
here
, while all nominated projects will be presented within the next couple of weeks.
Today we present the “
Kosor House
”
in Bol on the Island of Brač, whose author is
Nikola Popić
,
along with
Đurđa Vujnović
and
Nikša Mrkonjić
.
For more details on the project read further:
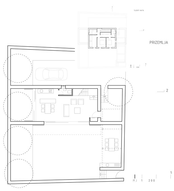
In Bol on the Island of Brač, on a small lot in the Benačica area, where houses are already sprouting up like mushrooms, in both adequate and inadequate bulk, a small house was set to be developed as a summer residence, with equally important interior and exterior premises. The plan was to activate the entire lot as a single house, leave a parking spot in the northern part of the lot, and fencing in the remaining part of the lot with ground-level stone walls, within which a series of interior and exterior premises can be placed thus providing a pleasant stay for the majority of the year.
The stone wall is built from a highly specific and very rare type of bol stone “the obala” which can’t be obtained from the rock quarry but is found during diggings. Fenced-in walls in Bol have always been built from these indigenous Bol rocks. A compact floor cubicle leans on the set walls, thus throwing a soothing shadow over the ground floor while still allowing the sun to occasionally break through.
The region’s specific lighting is displayed throughout the house by way of specially arranged embedded elements.
The ground floor living room is tied to three courtyards which are extended to the lot’s fence lines. An entrance in the east, a west-intimate and a south one with a line of trees spilling over into the western part, linked with a pergola, crossing over into the east courtyard. The upper floor with bedrooms and a sea view is consoled left towards the south so as to shield the closed-off part of the living room from the summer sun.
Designing started in
:
2007.
Completion in
:
2010.
Location area
:
308 m2
Total layout area
:
132 m2
AUTHORS:
Nikola Popić
ASSOCIATES:
Đurđa Vujnović, Nikša Mrkonjić
PHOTOGRAPHS:
Miljenko Bernfest, Jelena Popić
客服
消息
收藏
下载
最近

















