查看完整案例

收藏

下载
Kako smestiti tri sobe u tridesetak kvadrata
Sonja Brstina,
06.04.2015.
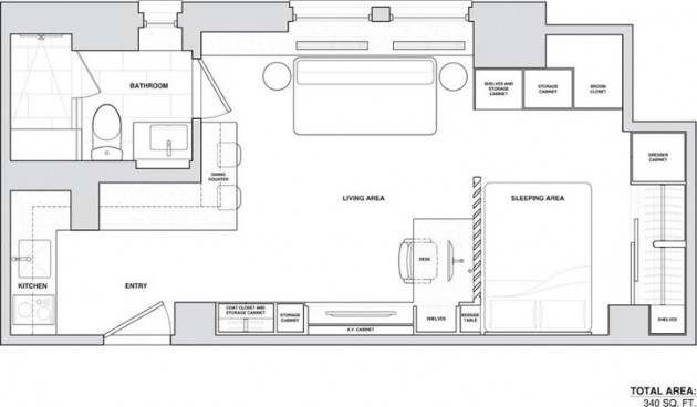
Stan od 31 m2 na Menhetnu može da posluži kao lep primer kako urediti stambene prostore malih kvadratura.
Investitor je želeo
dom koji bi je izgledao čisto, jednostavno, elegantno i vanvremenski. Arhitekta je umesto
stvaranja jednog otvorenog prostora uz koji bi prostor izgledao veći, odlučio da napravi odvojene a ipak, međusobno povezane zone dnevne sobe, odmora i kuhinje.
S tri prostorije u prostoru od samo 31 metar kvadratni
nećete se osećati kao zarobljeni u jednoj kutiji.
Spavaći deo je odvojen pregradom napravljenom od koso postavljenih stubića koja sprečava pogled iz dnevne sobe, osim s pozicije radnog stola.
U ovom malom stanu, arhitekta se odlučio da ograniči broj tekstura i boja. Tako se hrast pojavljuje na podu, javor na ormarima i bela boja na zidovima i delu nameštaja, piše
Plafon je spušten po obodu u koje su ugrađene LED svetiljke. Centralni deo dnevne sobe je veće visine i on prati i definiše prostor dnevne sobe.
U malom stanu najbitniji je prostor za odlaganje. Zbog toga je arhitekta iskoristio par trikova. Visina radne ploče u kuhinji postavljena je na visinu od 104 centimetra u odnosu na standardnih 90 centimetara.
Ova povećana visina dopustila je da se ugradi dodatni red ladica ispod radne površine.
hinja je smeštena u ulazni deo stana i tako da se ne oseća kao da se kuva u dnevnoj sobi.
Slika iznad kreveta delo je autora Thomas Hubben.
U kupatilu je ugrađen
Corian umivaonik i potpuno zatvoren tuš. Iza o
gledala je ormarić za odlaganje a č
ak je i toaletni papir je uvučen u stranu kako bi se sačuvale čiste linije u prostoriji.
Foto: William Taylor
Sonja Brstina
Dizajner enterijera - diplomirani inženjer arhitekture
客服
消息
收藏
下载
最近










