查看完整案例

收藏

下载
简俊凯-DUO实施方案:南昌OCT当代艺术馆,隐于喧嚣的非线性系统
简俊凯-DUO实施方案:南昌OCT当代艺术馆,隐于喧嚣的非线性系统
方案鸟瞰效果图 ©DUO
设计单位:DUO道域优建筑设计事务所
项目地点:江西南昌
方案状态:在建
建筑面积:3149.53平方米
撰文:简俊凯
在一片“争红斗艳”的世界里,寻求一份坚毅的“无我”,基于这种利他主义,一系列的因素催生出一个非线性的建筑系统,一个类耗散结构,从而走向建筑自我生命力的提振之“大我”,是这个设计最终想实现的美好……
▲ 方案动画演示视频 ©DUO
©DUO
利他主义 立面消隐 被动形态
整个设计始于一个问题,当周围文脉的需求和文化建筑自身因“引流”使命而生的张扬特性产生矛盾,建筑自身当如何谦逊地从利他主义出发,和周围形成某种正反馈的共生性,自“无我”始,达至某种“大我”。
©DUO
当代艺术馆建设地块周围的文脉要素并不复杂,却引发出有点反常的设计结果——一个没有主立面的文化建筑,确实在设计之初一度给团队带来某种陌生感。
在主朝向正前方(东北向),远处是湿地自然景观,近处是庆典广场。站在周围文脉角度来看,项目地块上被期待的与其说是鹤立鸡群的形象,不如说是某种供人休憩,以远眺(湿地)近观(广场及庆典活动)的公共场所。这是场地给与我们的初始信息,也是一种来自基地周围的场地的呼声。
基于对这种呼声的回应,DUO以“利他主义”为核心,希望赋予建筑一种坚毅的谦逊态度——不仅体现在最初的设计逻辑上,也体现在最后的建筑气质上。
施工现场 ©DUO
顺理成章地,在面对主朝向一侧的地面被掀起。这块地面是建筑形成前的公共场地,因而得以保留,并进化成更适合眺望的看台型场所,建筑的功能则被藏于坡下。这个被掀起的地面对内是建筑的屋盖,对外是城市领域的延伸,由此实现场地公共性的最大化。
然而这种处理引发出一种有违常态的结果——建筑主要朝向上的立面被消隐了,整体呈现出“被动”的形态关系。通常而言,对于一向比较注重形态的文化建筑,要么采取无方向性的均衡态,要么采取带方向性的主动态,亦或是两者之间的类主动态,甚少采用被动态。而主朝向立面之于文化建筑,几乎又是最不可能绕过的核心议题之一。
©DUO
但这个被延伸的“功能增强型”城市公共领域是重要的,是“无我”的态度所催生的,通过这种蔓延至建筑之上的公共领域,不仅实现了“利他”,同时也实现了“利己”。
大量不因艺术而来、自我定义为“无艺术细胞”的大众,当为远眺而踏足这片领域的时候,无意中也进入了艺术馆的范围,或多或少会产生进入一看的冲动,从而实现艺术馆的本意的最大化——通过艺术感化大众。相比之下,“没有主立面”和“被动形态”显得无关紧要,甚至是理所当然了。
©DUO
自组织系统 非平衡体系 建筑诚实性
敏感系统,通过与周围文脉的各种反馈作用,可实现出自组织的秩序,诚实的建筑应尽可能体现出这种秩序。
©DUO 掀起的地面最终形成具备某种自然野趣的坡,坡本身对内部空间产生挤压效应,一方面使东北角多功能区下沉至地下,同时也使西南区域的室内功能区域被挤出,形成大悬挑状态,最后必然导致一个非平衡的体系。另一方面,挤压使得首层空间边界几乎挤满场地边沿,毫无保留地展现出方形的地块轮廓特征。这种结果,是建筑受到文脉影响后经一连串连锁反应而引发出的自组织状态。
©DUO 这种自组织产生的结果,也展现了建筑的一种难能可贵品质——反映真实本质的诚实。这种诚实性也让建筑的利他意图得以直观可视。清水混凝土浇筑的方式(而非钢骨+曲面幕墙体系)以及各种巨型柱帽(结构的主要特征之一)的裸露等,都进一步增强了诚实的品格。选用混凝土,在外观上可更直观地体现内部的空间形态,从而实现内部特征的外在可视性。
©DUO
开放系统 多孔界面
主立面的消隐为建筑带来了多孔的界面,同时还引发了另一种消隐——主入口的“主”角色消隐,进而形成一个开放系统。
©DUO 掀起的地表本身就是一个界面,界面之上是延伸的城市领域,界面之下则是建筑的室内领域。若干撕开的裂口让界面进一步演化成多孔状态。这种多孔性质让建筑成为了开放的系统——人们可以在这张覆盖全局的界面上从多个不同位置穿越于室内领域和城市领域。
©DUO
在这里,位于建筑物前方首层的入口(通常意义上所谓的“主”入口)的“主要”地位被淡化了。实际使用中,人们从界面上方不同高度的“裂口”进出,尤其对本不打算看艺术展或参与艺术活动的人群来说,他们因其他目的而进入这片延伸的城市领域(比如观看远景),随后抱着尝试接触艺术的心态而进入艺术馆内部。
而艺术馆内部的人也可以在多个不同的内部区域,通过“裂口”瞬间进入城市领域,远眺湿地湖景或近观庆典活动。由此,一套多点穿越的流线系统形成了,这种开放界面极大提升了城市领域和室内领域的互动和交流,增加建筑系统对城市系统能量的吸取。
©DUO 建筑内部的所有公众区域不设隔墙,在空间上完全贯通,整个内部公众区域都可视为一个整体。在这个开放的空间系统中,不仅灵活的布展得以实现,更重要的是不同信息可以在不同区域间自由流动,让不同艺术事件之间形成良性互动,共同形成一个丰富多样的完整艺术事件,形成某种正反馈机制。
©DUO
非线性系统 内部非平衡态
非线性空间是创造非平衡态的前提。
©DUO 遵从自组织原则,提升了敏感度的建筑系统在外部因素的作用下形成。通过剖面观察,这种外部因素之间的非线性关系(遵从客观规律而形成的人造文脉或自然系统,通常而言都是非线性系统)产生了对内部的传导,形成了非线性的内部空间体系。
非线性空间剖透视示意图 ©DUO
掀起的地面挤压出非线性内部空间,空间内不同子区域之间的差异性被拉大,这些共处同一连通空间中的不同区域必然会诱发不同的事件,而空间的开放连通保证了不同事件之间的信息交流。这种不同事件的信息交流本身亦会促进人的流动,毕竟同质的事件不可能诱发人们的兴趣。
由此,非线性空间拉大了空间中不同区域的差异性,也拉大了区域中事件的差异性,形成了所谓的“张力”。这些非均质的剖面展现出一种被放大化的非平衡态,是充满生命力的;反之,均质的线性空间是惰性空间,是消极的,带有某种类似“热寂”的绝望隐喻。而均质本身,也是早期现代主义缺乏活力的原因之一。因此,我们选择拥抱这种自发涌现的非平衡的内部空间状态。
©DUO
与非线性的剖面形态貌似矛盾的,是首层平面的外轮廓。这个轮廓几乎为标准的正方形,就其本身而言,显示出典型的静态特征,是敏感的系统对于外界街区形态与挤压效应两个因素双重作用的自组织结果。对于这种自组织结果,我们予以了尊重,而不是强加干预,从而跌入某种常见的绝对化设计操作之中。(这种绝对化的现象,不仅存在于后现代主义理论家们所批判的早期现代主义设计中,其实也存在于各种常见的当下。)
非线性空间体系示意 ©DUO
而这个静态的建筑平面边界与动态的建筑平面中央恰恰形成了非线性的状态,两者之间形成极大差异——坚硬和柔软之间的差异、静态的线性叙事与动态的非线性叙事之间的差异、人类意志隐喻与自然本质隐喻之间的差异。
平面的中央区域,不同性质的空间再次交汇,并由扭曲的路径串联。路径本身紧贴曲面屋盖,以非线性的方式纵切由自西往东排列的曲面屋盖所划分出的空间序列,形成各种空间“湍流”。非线性空间如同自然系统一般,表意是不确定的,这种性质在表意异常确定的边界的映衬下显得尤为明显。
非线性空间剖透视示意图 ©DUO
©DUO
实现措施
结构设计与空间塑造的一体化。
柱帽算法分析过程示意 ©DUO
这个非平衡体的结构难度很大,这种难度因被方形底层平面轮廓掩盖,而变得难以在外观上被感知。结构设计团队的精彩演绎是这个非平衡的建筑体系得以落地的根本保证。项目采用“板柱—剪力墙”结构,由清水混凝土浇筑。为了抵消力学分布不均衡性带来的某种扭动影响,设计团队把剪力墙置于高(西南)低(东北)对角点,承担了由自重及负载带来的巨大水平力,从而让平面中的柱子得以从容地承担竖向荷载。
同时,不连续跨和弧形屋面,尤其是屋面的非壳体形态,对板柱结构的设计带来了较大挑战。建筑结构通过“出挑板边+型钢剪力架”等方式放大容许承载能力,让柱帽尺寸得以精简的同时,实现了跨高比为40:1的跨越,完成这一超薄的非线性非壳体大跨度屋盖。同样,设计团队通过采用极致轻薄的空腹桁架,最后实现了跨高比为30:1的超大悬挑。
在上述各结构元素中,柱帽形态的求解是十分重要的一环,非平衡体系产生了非线性力学分布,导致极为复杂的非标准柱帽系统,每个柱帽受力状态不一,且每个柱帽自身存在多种满足力学要求的形态解,形成数量巨大的排列组合结果。面对这个情况,建筑团队根据结构团队的计算结果,通过遗传算法高效精准地求得每个柱帽的形态最优解,这些都是建筑团队和结构团队无缝合作的成果。
柱帽算法分析过程示意 ©DUO
后记
广义耗散结构 生命力
耗散结构三大特征:开放系统、远离平衡态、内部存在非线性反馈作用。
施工现场 ©DUO
耗散结构理论给被热力学第二定律所揭示的宇宙热寂宿命所困惑的人类以新的希望。根据耗散结构理论,系统通过与外界的交换维持有序结构,避免混沌状态,从而维持生命力。耗散结构具有三大特征:开放系统、远离平衡态、内部存在非线性反馈作用。缺少其一,都无法避免持续的熵增而走向无序的废墟。
耗散结构理论的提出,让物理化学领域的熵增宿命和生命领域的熵减现象找到了一个共同的理论平台进行解析。由此,耗散结构理论因为跨越了生命世界和非生命世界而具有了某种普适性。
这里不想过多地进入热力学的探讨,以导致因非专业而产生的谬误。这里探讨的其实是已经延展至其他学术领域的广义耗散结构理论。
作为一种可以跨越物理领域和生命世界之间鸿沟的理论,从诞生之始就跨越学科进入哲学范畴,继而对社会学、经济学、管理学、信息学等等各种进行全面介入,对包括城市系统、生态系统、经济系统在内的各种系统进行解析。这些系统里面,理所当然地也包括建筑系统。
我们站在一个新的角度去剖析,作为“有机体”的建筑系统,该采取何种姿态才更有利于增加其活力,使建筑更好地去完成“解决当下使用问题”的任务。或进一步讲,延长其“生命”,以完成那个有点遥远的“信使”使命——向未来传递当代的信息。
以上种种,都使得我们乐于去拥抱这种开放的非线性体系。回到本项目,从基于利他主义的“无我”姿态出发,一系列的因素催生出一个非线性的建筑系统,一个类耗散结构,从而走向建筑自我生命力的提振之“大我”,是这个设计最终想实现的美好。
施工现场 ©DUO
设计图纸 ▽
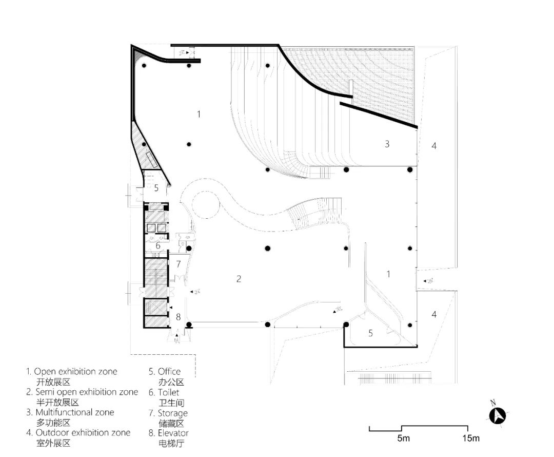
一层平面图 ©DUO
二层平面图 ©DUO
三层平面图 ©DUO
完整项目信息
项目名称:南昌OCT当代艺术馆
项目类型:建筑/室内
项目地点:江西省南昌市
建筑设计及室内设计:DUO道域优建筑设计事务所
主创建筑师:简俊凯
设计团队完整名单:邓国超、常飞、李东胜、陈思、刘洪元、赖冰强、温顺和、魏卓、倪明
业主:华侨城(南昌)实业发展有限公司
业主团队成员:钟珲、潘兆强、罗贤辉、万珑、钱晓霞、余婷
建成状态:建设中
设计时间:2018年7月
建设时间:2020年3月
用地面积:1866.69平方米
建筑面积:3149.53平方米
施工图设计:江西省建筑设计研究总院
结构设计:北京市建筑设计研究院复杂结构研究所、ThorntonTomasetti(TT)
室内设计合作方:文格空间设计(深圳)有限公司
施工:中建五局
材料:清水混凝土等
摄影:DUO道域优建筑设计事务所
视频版权:DUO道域优建筑设计事务所
关于DUO
DUO 道域优建筑设计事务所 (Decode Urbanism Office),前身为简俊凯于2010年创立于英国的设计研究工作室。目前设有北京、深圳两处工作室,两地工作室以协同合作的方式共同推进项目。研究+实践,科技+人文是今天DUO的团队底色,依托于包括算法在内的前沿设计技术,探索人文关怀在建筑语境下的各种新的可能性。DUO的前沿数字技术介入贯穿理论研究、概念设计到施工指引各阶段,始终坚持文化研究+设计创新及全面的落地过程技术支持策略。
客服
消息
收藏
下载
最近





































