查看完整案例

收藏

下载
旌德水街更新改造 / 未形建筑
为了能够延展沿河界面的游览体验、增强沿河一侧的休闲氛围,设计提出了三个概念:“海绵”界面、“夹缝”园林、“立体”街巷。
旌德县,隶属安徽省宣城市,位于皖南腹地。旌德县生态优良,是“国家级生态县”,2016年成为安徽首个“国际慢城”。项目基地位于县城中心区,商业步行街入口处。基地紧邻徽水河,是县城中心区仅存的最后一小片历史街区。基地内建筑多为明清时期的木结构建筑和部分建国后的砖石建筑,均为一般性民房,没有文保建筑;现状更是多已破败。
设计的首要目标和前提条件就是梳理现状物质形态,保护及恢复历史街区的空间格局。同时,如何注入新的商业休闲功能,让街区重新承载起旌德人的公共生活需求,能够持续焕发新的生命活力是本次规划设计的重要命题。
留保分析
规划设计从现状调研开始,设计团队对现状建筑逐个调研梳理,结合专业机构的结构安全性评估,确定现状建筑的修缮、改造及拆除分类。
设计概念
依据留保分析拆除后,规划设计以还原和强化场地原有的界面秩序为目标,置入两种类型的新体量:一种类型是与老建筑尺度近似的二层坡顶体块;一种类型是低矮而连续的一层水平体量,以“围墙”意向串联新老体块,回应场地原有的历史肌理和记忆。同时为了能够延展沿河界面的游览体验、增强沿河一侧的休闲氛围,设计还提出了三个概念:“海绵”界面、“夹缝”园林、“立体”街巷。
“海绵”界面:底层商铺和系列庭院穿插布置,虚实相间,形成连续而有层次的空间界面以及丰富的空间和视觉体验。规划设计在置入新体量时留出两条巷道,贯通商业步行街和沿河步道,同时将街区划分为三个组团。这样既形成宜人的步行尺度和空间节奏,同时延伸了商业流线,实现多重视线交汇的体验。
“夹缝”园林:景观、微园布置“见缝插针”,完成新与旧的过渡;转化消极的边角空间为可赏可憩的体验节点。
“立体”街巷:一层屋顶平台串联新老建筑,形成双层“立体街巷”,拉长商业流线、丰富空间体验,同时提供不同高度的视角感知传统街区和徽水河风貌。街区两端以两个保留较为完整的内向院落空间为起点和重要的空间节点,功能上设置对公众开放的木活字
博物馆
和旌德民俗博物馆。两个节点院落之间的新旧独立体块以零售店、小吃店为主。在复原及强化街区秩序的基础上,通过小尺度的空间开合变化,庭院、平台、连廊等系列连续而流动的立体化公共空间类型的应用,创造丰富生动的空间体验,还原传统徽州山水园林的慢生活场景,使
更新
后的水街环境能与周边居民、游客的生活产生生动的互动与融合,实现老旧街巷的新生,焕发传统街区的独特魅力。
材料与建造
整体建造的策略:保留建筑依据现状加以修缮,替换腐朽蚁蛀的木结构构件;楼梯、门窗等构件依原尺度、原做法更新加固;外立面以
徽派建筑
传统材料及工艺修缮加固,最大程度保留历史记忆。新建建筑则力求通过对传统建筑语言的现代转译实现建筑尺度、色彩与材料等方面与老建筑协调,但由新材料、新工艺创造出的当代审美。
七号楼的建造:两层高的七号楼是建国时期建造的,为砖砌筑墙体加三角木屋架的结构形式,平面方正。修缮改造主要集中在屋架结构和立面形式上。三角木屋架在保持原高度和跨度的基础上重新制作,保持原有特色和时代感;正立面形式单一的开窗改为一层退进为凹阳台、二层突出为凸阳台。阳台正面砌筑镂空砖墙形成半透的效果,完成立面进退的层次表达。
△七号楼爆炸图
△七号楼剖透视
十号楼的建造:十号楼是在调研测绘时在私搭乱建中发现的唯一一处保留较为完整的皖南民居“四水归堂”形制的房屋。设计在保留原有结构尺寸和形制的基础上进行恢复性改造。在前后院增设影壁,自然形成前庭后院,同时使得中轴线得到强化。木结构由于年久失修,进行了落架大修。拆下来的构件按照编号进行保留、修复和替换,对破损的外部构造节点进行修复性改造,最终一座完整的三开间、三进院落的皖南民居得以复建。在十号楼的两侧,我们利用图底关系重新设计了两处现代简洁、白墙灰顶的单层围墙式建筑,空间上形成对十号楼前院的围合。同时,在东侧设置室外楼梯,游客可拾级而上进入二层屋顶平台,从二层近距离感受老屋的魅力。在这里,新老建筑相得益彰,主次分明,老建筑的价值得以凸显。
△改造前
项目图纸
△分析图
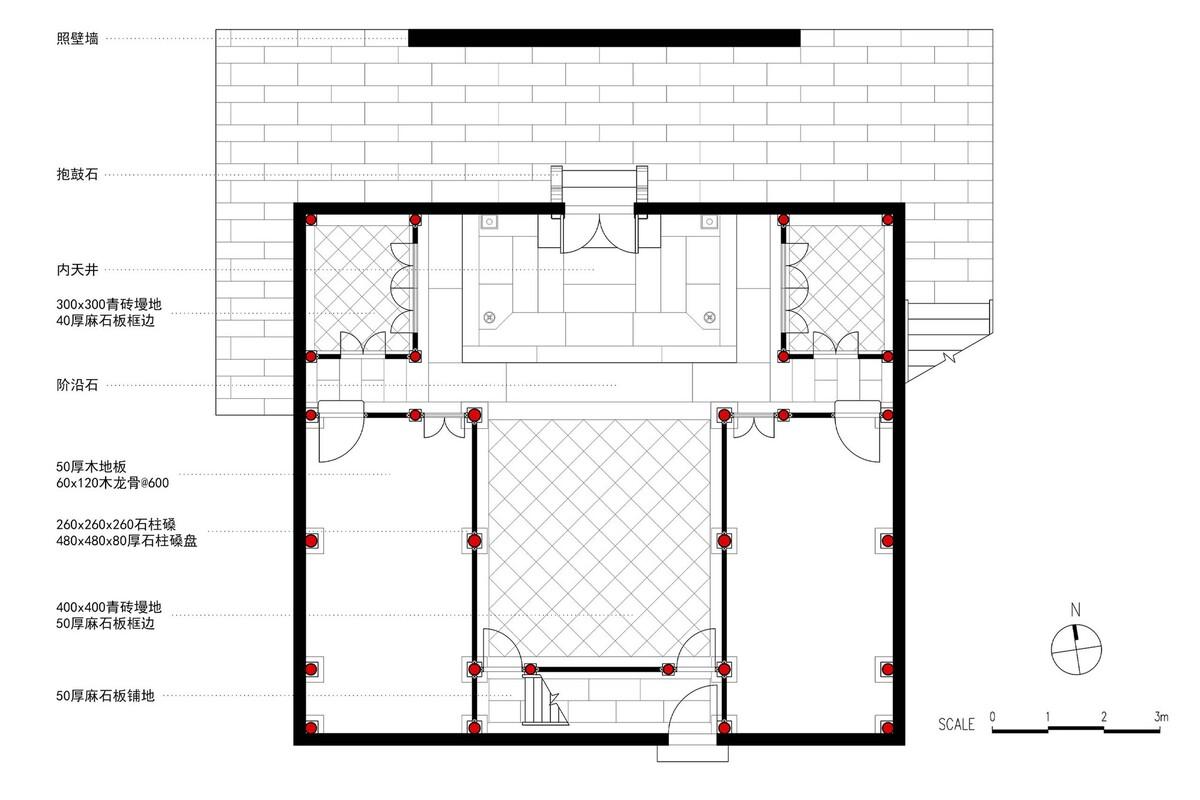
△博物馆一层平面图
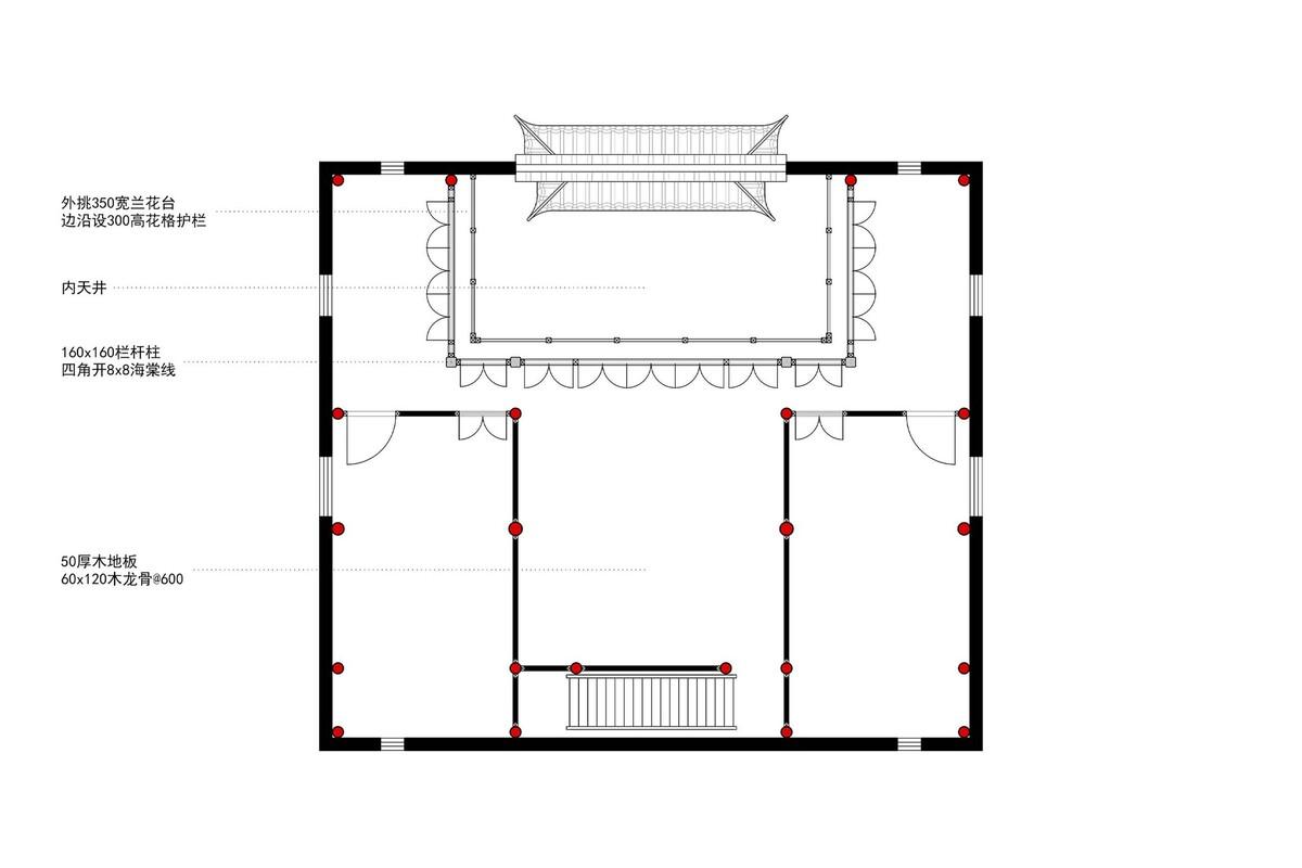
△博物馆二层平面图
△博物馆立面图
项目信息
建筑师: 未形建筑
面积: 2148 m²
项目年份: 2021
厂家: Armstrong, 上海瑞瀚建筑装饰有限公司, 湖南桃花江竹材科技股份有限公司
主创建筑师: 李亚伟,武恕凡
设计团队: 李亚伟、武恕凡、李刚、汪小艳、芮媛媛、孙榕
施工方: 安徽省徽州古典园林建设有限公司
木结构修复设计: 余国键
施工图设计:
中国
江苏国际经济技术合作集团有限公司
委托方: 旌德县旅游发展有限公司
地点: 宣城市
中国
博物馆
徽派建筑
更新
规划
客服
消息
收藏
下载
最近


















































