查看完整案例

收藏

下载
Dom bezgraniczny – niezakłócony kontakt z naturą
Dom bezgraniczny – niezakłócony kontakt z naturą
Najnowszy, gdański projekt Pracowni 111 zostanie zrealizowany na jednej z działek wchodzących w skład zwartego niegdyś zespołu skromnych, socmodernistycznych domków-kostek. Spójna kilkadziesiąt lat temu pierzeja ulicy została zniszczona szkodliwymi rozbudowami. Dziś realna wartość nieruchomości tkwi w działce – położonej w mieście, ale oferującej przyjemny kontakt z naturą. Duch nieco prymitywnego funkcjonalizmu, wciąż wyczuwalny w pozostałościach oryginalnej zabudowy, jest jednym z nieformalnych tropów, przydatnych w poszukiwaniu współczesnych form wykorzystania inwestorskiego potencjału dzielnicy.
Dom bezgraniczny
Projekt:
Pracownia 111
Autorzy projektu:
Tomasz Miąskiewicz, Rafał Nakielski, Monika Drążkiewicz, Katarzyna Godlewska
Proj. budowlany / wykonawczy / proj. wnętrz:
2019-2020 /
Pozwolenie na budowę:
2019 /
Realizacja:
2021-2022
Powierzchnia użytkowa:
320 m2
Wizualizacje:
QNSZT Michał Jagła
Dom bezgraniczny
Dom bezgraniczny jest próbą przesunięcia architektoniczno-konstrukcyjnych granic, które definiują “nowoczesną” architekturę mieszkaniową w Polsce. W czasach, w których proste bryły i duże okna stały się modnym standardem, w nowym projekcie wracamy do modernistycznych źródeł, ponawiamy znane pytania i weryfikujemy utarte odpowiedzi
– opowiadają autorzy projektu, architekci z Pracowni 111
ogród ← → salon
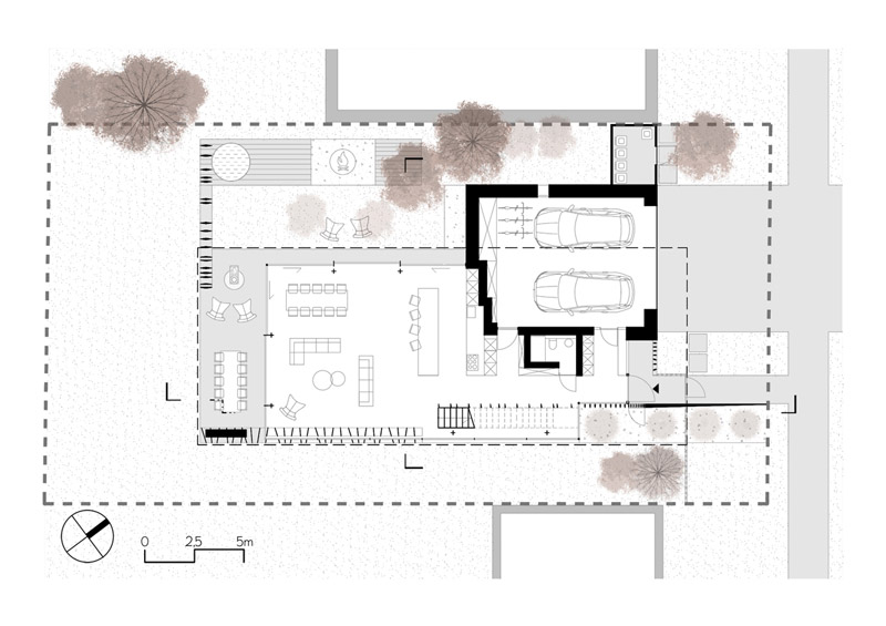
Część dzienna otwarta na przestrzeń ogrodu – to popularny postulat, chętnie realizowany za pomocą dużych okien, dużych tarasów i dużych słów, jak: “przenikanie”, “ciągłość przestrzeni”, “zacieranie granic”. W projekcie domu bezgranicznego architekci podążają w tym samym, znanym kierunku, ale próbują sięgnąć dalej.
Nie skupiamy się na zacieraniu granic między wnętrzem i zewnętrzem – po prostu rezygnujemy z ich stawiania, cofając się do pustej kartki z obrysem parceli. W myśl starej, modernistycznej zasady, plan jest otwarty. Jednak tu całą powierzchnię działki traktujemy jako rzut parteru. Ogród staje się więc integralną, wewnętrzną częścią tego rzutu, a rolę zewnętrznych ścian domu pełni zieleń okalająca teren
– dodają projektanci.
W centrum znajduje się oczywiście salon – ale nie jest to pomieszczenie, a niewydzielona, letnia strefa ogrodu, wyposażona w stół, kominek, regał i meble służące wypoczynkowi. Funkcja izolowanego wnętrza została zredukowana do szklanego rdzenia, otoczonego prawie bezramowymi, ruchomymi taflami. Pomijając bryłę garażu, która od frontu jednoznacznie separuje strefę prywatną od publicznej, na parterze nie znajdziemy ścian: wszystkie elementy o funkcji nośnej lub rozdzielającej przestrzeń zostały zdekonstruowane, przybierając postać mebli bądź ażurowych instalacji, swobodnie rozrzuconych w przestrzeni otwartego rzutu działki.
minimalizm ← → architektura materii
Dom bezgraniczny ma brutalnie syntetyczną formę: ciężki, milczący blok, jakby nonszalancko ułożony na delikatnej strukturze z drewna i szkła. Jednak nie jest to architektura stricte minimalistyczna – przynajmniej w popularnym, stylistycznym rozumieniu tego określenia. Tematem projektu nie jest prezencja bryły, lecz odczuwanie domu jako miejsca – a raczej grupy miejsc o odmiennym oddziaływaniu. Tu materiał staje się tworzywem ważniejszym od formy, a wręcz tę formę determinującym.
W strefie salonu obecność struktury budynku została zredukowana do obiektów “niematerialnych”, jak szklane tafle, ażurowy regał, nieregularne rytmy drewnianych żyletek. Jedyna odczuwalna w przestrzeni parteru kubatura, integrująca garaż i funkcję kuchenno-gospodarczą, została w całości osłonięta drewnianymi listwami. Konsekwentnie dobrane materiały przede wszystkim realizują postulat otwartości przestrzeni i niezakłóconego kontaktu z naturą. Równocześnie jednak, silnie kontrastując z ciężarem zawieszonego powyżej kamiennego bloku, wzmacniają jego oddziaływanie i budują atmosferę bezpiecznego schronienia.
Monolityczna bryła piętra jest w odbiorze negatywem parteru. Jednoznacznie introwertyczne wnętrze, otoczone grubą, betonową skorupą, jest intensywnie doświetlone głównie z góry. Okna kadrują tylko wybrane widoki od południa i zachodu, zapewniając tej strefie domu pożądaną dawkę izolacji od sąsiedztwa. Jedynym miejscem, w którym forma piętra podlega dekonstrukcji, jest zachodnia ściana, pozwalająca bujnej zieleni zajrzeć do sypialni i salonu kąpielowego. Kompozycja architektury, po tej stronie odbieranej od zewnątrz w silnym skrócie perspektywicznym, nie zostaje osłabiona. Elewacje mają formę osłonowego muru z granitowych dyli. Znaczna długość elementów umożliwia ich ażurowe przewiązanie w ścianie izolującej górny taras od ulicy, dzięki czemu przestrzeń pozostaje intymna, ale nie jest klaustrofobiczna. Zmienna głębokość belek pozwala z kolei zbudować silnie światłocieniowy, tektoniczny rysunek kamiennej skorupy – podkreślający jej grubość i masę, a jednocześnie niwelujący monotonię milczących powierzchni.
客服
消息
收藏
下载
最近




















