查看完整案例

收藏

下载
Dort, wo die Architektur endet
Das Projekt Hiša MM kann – nicht nur für Bestandsbauten im ländlichen Raum Sloweniens – als vorbildhafte und inspirierende Fallstudie für ähnliche Bauten dienen. Dank der aktiven Beteiligung der Bauherren, die einen Großteil der Renovierungsarbeiten selbst durchführten, ließen sich die Kosten zugunsten der Qualität der Architektur und einer generellen Durchführbarkeit der Umbaumaßnahmen senken.
Einst malerisches Örtchen, verwandelte sich das slowenische Domžale in den vergangenen Jahren zusehends in eine reine Transit-Satelliten-Schlafstätte der nahen Landeshauptstadt Ljubljana. Entgegen des dort herrschenden Trends der Entfremdung vom eigenen Wohnort und der damit einhergehenden Vernachlässigung des öffentlichen Raumes, entschieden sich die Bauherren dazu, gemeinsam mit dem Team von a2o2 arhitekti ein bestehendes Haus im Stadtzentrum zu revitalisieren.
Nachdem sich die Auftraggeber zur Ruhe gesetzt und ihr altes Haus verkauft hatten – es war dem Paar im Alter zu groß, leer und teuer im Unterhalt geworden –, kamen die Bauherren mit dem Wunsch nach einem einfacheren Haus mit einem großen Wohnbereich, einem kleinen Schlafzimmer im Obergeschoss und einem von innen leicht zugänglichen Garten auf die Architekten zu. Ausgangspunkt war eines der wenigen verbliebenen regionaltypischen Häuser, Baujahr Anfang des 20. Jahrhunderts, einer gewachsenen Siedlungsstruktur in Domžale. „Trotz der zahlreichen Neubauten in der Gegend haben wir uns dazu entschlossen, das Haus zu renovieren und an die Bedürfnisse der neuen Nutzer anzupassen. Der Erhalt eines qualitativ hochwertigen baulichen Erbes ist für einen Ort wichtig, weil dadurch sein Raum-Zeit-Gefüge, die vielschichtige Bausubstanz und seine Identität bewahrt werden können“, so Žiga Ravnikar und Eva Senekovič von a2o2 arhitekti.
In diesem Zusammenhang war es den Architekten besonders wichtig, die äußere Hülle des Bestandsgebäudes so weit wie möglich zu erhalten und notwendige Eingriffe deutlich sichtbar zu machen. Im Inneren wurde das Haus weitgehend entkernt – einzig die für das Ambiente des alten Bauwerks wesentlichen Elemente wurden im Zuge der Umbauarbeiten beibehalten. Ohne das Engagement der Bauherren wäre eine Umsetzung des Projekts in einer solch hohen architektonischen wie handwerklichen Qualität zum vorhandenen Budget wohl nicht möglich gewesen: Die Eigentümer halfen bei der Ausführung der Innenvertäfelung und polierten, um einen Terrazzo-Look zu erzielen, den Betonboden in Eigenregie. Auch bei der Renovierung der bestehenden Fenster legte das Paar mit Hand an. Dafür arbeiteten die Architekten und Bauherren eng mit einem Experten für Holzrestaurierung zusammen, der die Instandsetzungsarbeiten leitete und die Eigentümer unter anderem bei der Wiederherstellung der Doppelfenster aus Holz sowie der vorhandenen Türen tatkräftig unterstützte. „Wir beschlossen, den Prozess auf diese Weise zu begleiten, weil wir es für sehr wichtig halten, das traditionelle Handwerk, das immer mehr verschwindet, zu fördern, zu unterstützen und zu erhalten“, erzählen a2o2 arhitekti über ihre Herangehensweise.
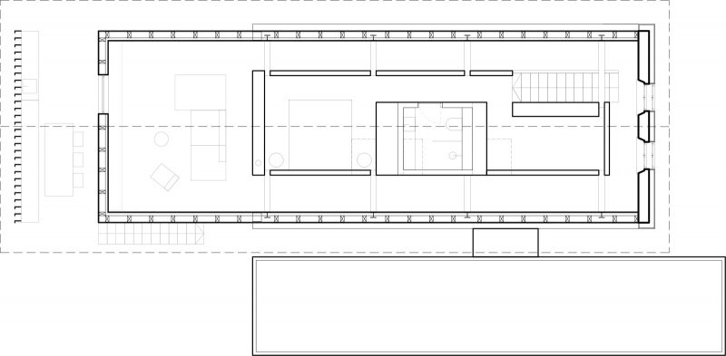
Um für das Projekt eine Ebene der komplexen Einfachheit zu erreichen, arbeitet das Team zudem mit ansässigen Handwerkern und einem lokalen Schreiner zusammen, der die Holzbauarbeiten für den neuen Anbau und das Dach ausführte. Nach dem Prinzip vom Haus im Haus wählten die Architekten für die modernisierenden Maßnahmen bewusst eine vom Bestand abweichende Materialität und platzierten „das Einbaumöbel“ von den alten Gemäuern abgerückt inmitten des leeren Raumes. Dieses Servicevolumen umfasst eine Küchennische mit einem Esszimmer sowie das Bad. Darüber befindet sich ein neues Stockwerk mit dem Schlafzimmer, der Wohnbereich mit Kamin erstreckt sich hingegen großzügig über alle Ebenen und öffnet sich durch ein großes Fenster zum Garten hin. Das gesamte Erdgeschoss wurde mit Terrazzo gepflastert und bildet einen gelungenen Kontrast zu den bestehenden getünchten Mauerwerkswänden und den Einbauten in heller Holzvertäfelung.
Trotz der Tatsache, dass dem Erhalt der bestehenden Strukturen eine besondere Relevanz beigemessen wurde, bestand ein Ziel der Maßnahmen darin, den Bauherren ein zeitgemäßes Wohnen zu ermöglichen. In der Umsetzung arbeitete das Planungsteam ausschließlich mit Materialien aus der Region, um damit im Sinne der Nachhaltigkeit auch dem generationenübergreifenden Denken von Strukturen gerecht zu werden. „Das Haus ist an verschiedene Altersgruppen anpassbar, es ist nachhaltig und kann flexibel auf die unterschiedlichen Lebensbedürfnisse der Bewohner reagieren, indem es deren Älterwerden respektiert”, erklären die Architekten, “Der nachhaltige Ansatz umfasst auch, dass im Zuge der Renovierung des bestehenden Hauses ein neues Programm neues Leben und neue Nutzer in einen bestehenden, einst vergessenen Raum bringt.“
Das Haus MM besticht im Ergebnis durch ein zurückhaltendes, respektvolles Äußeres und reagiert behutsam auf die lokale traditionelle Syntax der Elemente und Materialien. Die weitläufige grüne Umgebung bietet den Bauherren eine großzügig dimensionierte Zwischenzone zwischen ihrem Privathaus und der angrenzenden Nachbarbebauung und damit viel Freiraum zur persönlichen Entfaltung. In dem zugehörigen Garten lassen sich Obst, Gemüse und Kräuter für den Eigenbedarf ziehen – ein weiterer kleiner Beitrag, um den ökologischen Fußabdruck zu verringern. Der barrierefrei gestaltete Grundriss des Hauses ermöglicht den Bewohnern die ersehnte Lebensatmosphäre und verlängert deren Mobilität im Alter. Dank einer Förderung des Projekts werden in Folge zudem auch andere Menschen über die Bedeutung des Wiederaufbaus, der Renovierung und der Wiederverwendung bestehender Strukturen und deren Anpassung an eine neue, zeitgemäße Nutzung aufgeklärt.
„Das Bewahren unseres anonymen baulichen Erbes ist wichtig, da es die Komplexität und Identität eines Ortes von der Vergangenheit in die Zukunft transferiert. Wir hoffen, dass das Gebäude einen alternativen und finanziell vergleichbar relevanten Ansatz für die Renovierung von Häusern darstellt, der langfristig tragfähig und umweltfreundlich ist“, so die Architekten. Das Haus MM dient in diesem Sinne auch als Leuchtturmprojekt für Kleinstadtsiedlungen und all jene kleinmaßstäblichen Bestandsbauten aus dem
19. Jahrhundert in Slowenien und ganz Europa.
Hiša MM
Domžale, Slowenien
Bauherr:
Privat
Planung:
a2o2 arhitekti, Žiga Ravnikar, Eva Senekovič
Mitarbeiter:
Klara Bohinc, Andraž Keršič
BGF:
118 m
2
Fertigstellung:
2020
客服
消息
收藏
下载
最近


















