查看完整案例

收藏

下载
Rodinný dom s ateliérom (ČR)
Dom v prieluke.
Autori:
Ing. arch. Hynek Holiš, Ing. arch. Šárka Holišová Šochová
Spolupráca:
Magdaléna Myšková Kaščáková (návrh záhrady)
Investor:
Manželia Holišovci
Zastavaná plocha:
103 m2
Podlažná plocha:
176,5 m2
Obostavaný objem:
650 m3
Návrh:
2014 - 2015
Realizácia:
2015 - 2016
Adresa:
Vlašimská 379,
Benešov,
Česká republika
Ako vyplniť medzeru v kompaktnej uličnej zástavbe malého mesta? Spojenie nového a starého v bezprostrednom dotyku. Ukážka jedného z príkladov, keď stavia architekt...
"Stavět dům v proluce bylo naším snem,"
prezrádzajú na úvod architekti a zároveň majitelia domu. Po troch rokoch hľadania vhodného pozemku v okolí Benešova, ho našli neďaleko centra mesta. Štvrť so zvyškami pôvodnej zástavby však poznačila nekoordinovaná výstavba z druhej polovice minulého storočia.
Rodinný dom s ateliérom stojí na mieste pôvodnej jednopodlažnej stavby, ktorá bola v čase kúpy v havarijnom stave. Aj napriek pešej dostupnosti centra mesta nemajú majitelia núdzu o zeleň. Záhrada, opticky prepojená so susediacimi dvormi, sa stáva súčasťou veľkého "sadu".
“Koncept domu se zrodil ještě ten den, kdy jsme si pozemek poprvé prohlédli a v podstatě už se nezměnil,”
objasňuje genézu architektonického riešenia tvorivá dvojica.
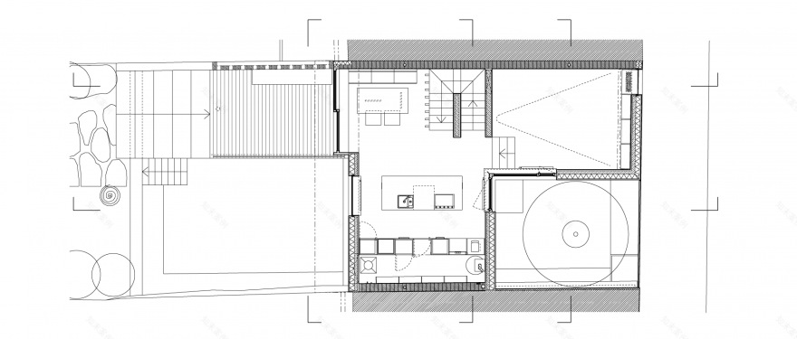
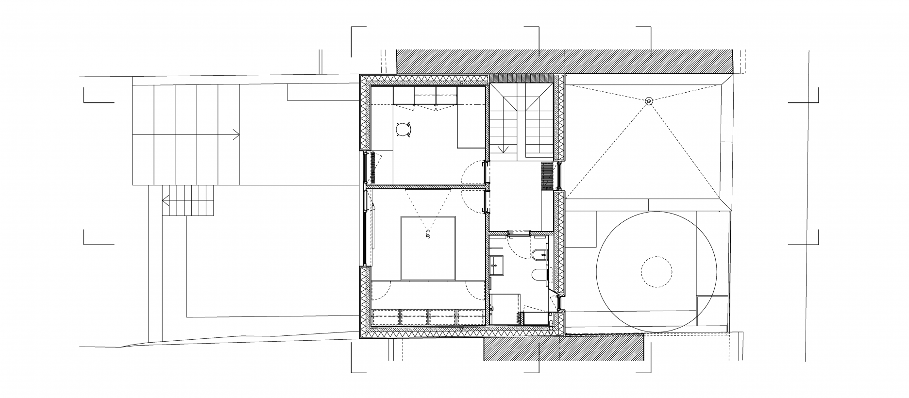
Na ateliéri (príležitostnej izbe pre hostí), garáži a zázemí domu je “posadená” obytná časť. Tvorí ju polozapustená a prevýšená obývacia izba a kuchyňa s jedálňou (obe priamo prepojené so záhradou). Nad hlavnou obytnou zónou je situovaná nočná časť s dvoma spálňami a kúpeľňou.
Nesúrodá architektúra a stvárnenie uličných fasád susedných domov dovolila architektom "vypustiť" časť priečelia v prospech vstupného dvora. Vzniklo tak kľudné predpolie a príjemné priehľady z ateliéru na poschodí. Odstup obytnej časti od ulice spolu s prirodzeným tienením južného slnka korunou stromu umožnil orientovanie rozsiahleho presklenia obytných miestností do vnútorného dvora. Súkromný priestor od ulice oddeľuje rozmerná plechová brána. Jednotlivé časti domu výškovo nadväzujú na okolité rímsy a hrebene striech.
Vonkajšie povrchy majú zámerne hrubšiu štruktúru. Svetlá dvojvrstvová štuková omietka je na prízemí a v exponovaných miestach nahradená trvácnejšími materiálmi. Režné murivo a na čierno natreté maloformátové betónové tvárnice architekti kombinujú s nepravidelnou žulovou dlažbou a masívnymi kamennými a betónovými prvkami.
Dom je vymurovaný z tvárnic Durisol, na ktoré sú položené železobetónové stropy. Tehly z pôvodného domu sa podarilo využiť na štítových nosných stenách, ktoré nemuseli byť tepelnoizolačné.
"Nakonec to stačilo na přízemí, ostatní cihly jsou nové. Od začátku jsme také věděli, že když cihly, tak neomítané s přiznáním nekonečné struktury a všech nedokonalostí,"
dopĺňajú architekti.
Vykurovanie a ohrev vody zabezpečuje plynový kotol situovaný na “prostrednom” poschodí, v hospodárskej miestnosti medzi štítovým múrom a nábytkovou stenou oddeľujúcou kuchyňu. Zámerom architektov bolo skrátenie rozvodov vody a kúrenia. Súčasne sa im podarilo do jedného priestoru sústrediť špajzu, technické zázemie a práčku so sušičkou.
Podlahy sú z liateho terazza (v niektorých častiach betónová stierka prekrytá bavlnenými kobercami), steny omietané alebo z režného tehlového muriva. Tvrdé povrchy dopĺňa nábytok a schody zo smrekovcového dreva. Hliníkové okná na prízemí (fasáda ateliéru), striedajú v obytnej časti drevené profily.
Neoddeliteľnou súčasťou domu je exteriér. Zo stredu dláždenej plochy vstupného dvora vyrastá Gledíčia trojtŕňová. Záhrada za domom, ktorá nadväzuje na pobytovú terasu so sedením, je rozdelená nízkymi živými plotmi do troch za sebou radených častí. Okrasnú s levanduľou, množstvom trvaliek a bylinkami na prípravu jedál, pobytovú s ohniskom a muchovníkom a úžitkovú s jahodami, malinami a ovocnými stromami.
Podklady:
Holiš + Šochová architekti
#rodinný dom ateliér,
#bývanie,
#práva,
#prieluka,
#česko,
#česká republika,
#architektúra
Poloha diela
Ing. arch. Hynek Holiš
Ing. arch. Šárka Holišová Šochová
客服
消息
收藏
下载
最近






























