查看完整案例

收藏

下载
山地土壤
Unwind Café
//
山地土壤在杭州市中心置入了一个城市公园,设计旨在匆忙的城市生活中穿插一抹自然野趣,以最简单的基础材料唤起我们对来自大地的本质感知。
Mountain Soil Interior Design has incorporated an urban park in Hangzhou’s central area, with a design concept that seeks to introduce a fragment of nature into the city’s fast-paced life. The studio employs the most elemental foundational materials to evoke a deep resonance with the earth’s intrinsic qualities.
在高度人工化的都市核心区,此次设计我们在空间的造型上尽可能的减少繁杂的装饰,通过原生砾石的粗粝肌理与大地色系,构建一处去符号化的自然场域。
In the highly artificial urban core, the design minimizes ornamental complexity in the spatial configuration. By employing the coarse texture of native gravel and earth tones, a de-symbolized natural space is created.
砾石不仅是材料,更是空间叙事的主角——从地面延展至墙体、从公共区域渗透至建筑边界,形成‘无缝的自然界面’,设计者希望顾客在踏入此空间时可感知被土地的原始力量包裹,重构城市人对自然的感知维度。
Gravel is not merely a material but the central element of the spatial narrative—extending from the ground to the walls and permeating from public areas to the boundaries of the building, thus establishing a seamless natural interface. The designer intend for visitors to perceive themselves as enveloped by the primordial force of the land upon entering this space, thereby reconstructing the urban inhabitants perception of nature.
咖啡店前区在设计上通过对地面造型的叠加与微型的地景塑造形成“空间褶皱”,物理性消解建筑与街道的高差,将室内功能外溢至庭院并连接街道,形成开放性的社交场所与城市展开对话。
In the area adjacent to the café, the design employs layered ground forms and sculpted miniature landscapes to create spatial folds. This physical intervention addresses the height disparity between the building and the street, allowing indoor functions to extend into the courtyard and merge with the streetscape, forming an open social space that engages in dialogue with the urban environment.
轴测图 ©杭州山地土壤室内设计
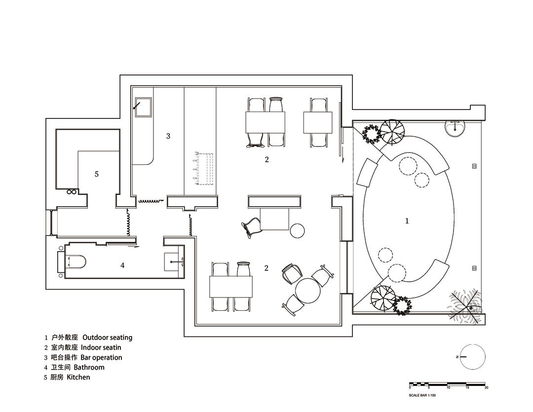
平面图 ©杭州山地土壤室内设计
项目名称 |
Unwind咖啡
项目类型 |
餐饮
空间
室内设计 |
设计总监 |
完成年份 |
202
项目地址 |
杭州
建筑面积 |
77
平方米
摄影版权 |
Wen Studio
主要材料 |
砾石
木饰面
设计总监 / 董甜甜
山地土壤室内设计创立于2019年,以“无限接近自然,回归自然”作为基本设计准则,寻求人与空间、建筑与自然之间的平衡关系。
客服
消息
收藏
下载
最近





















