查看完整案例

收藏

下载
Erweiterung nach dem Rucksackprinzip
Wohnhausumbau bei New York von Architensions
Sanierung
Einfamilienhaus
Dach
Farbe
Interiors
Einfamilienhaus bei New York, © Michael Vahrenwald/ESTO
Mit ihrem
Umbau
in Babylon auf Long Island liefern die New Yorker Architekten Architensions ein subtil-subversives Gegenbild zum Einerlei amerikanischer Einfamilienhaussiedlungen.
Umbau eines Einfamilienhauses in Babylon auf Long Island, © Michael Vahrenwald/ESTO
Das Projekt begann 2018, als der Bauherr die beiden Architensions-Gründer Alessandro Orsini und Nick Roseboro um eine Erweiterung seines Einfamilienhauses in Küstennähe bat. Er versprach sich davon mehr Offenheit nach innen und außen. Der Wiederverkaufswert der Immobilie interessierte ihn dagegen kaum, sodass die Architekten freie Bahn hatten für eine ebenso individuelle wie originelle Lösung.
Das Umbauprojekt zitiert und verfremdet traditionelle Wohnhaustypologien aus der Region, in der Reißbrettsiedlungen aus den Kataloghäusern von Großanbietern schon eine lange Tradition haben. Levittown, die erste und vielleicht berühmteste dieser Siedlungen, liegt nur rund 20 km von Babylon entfernt.
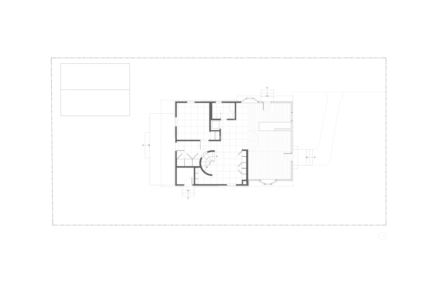
Die Wendeltreppe ist in einen gelben Zylinder eingefasst. © Michael Vahrenwald/ESTO
Umbau
Das bestehende Wohnhaus blieb in seiner Kubatur erhalten, wurde aber im hinteren Teil grundlegend umstrukturiert. Hier befinden sich nun ein Arbeitsbereich, ein Gästezimmer, ein Bad sowie ein Abstellraum. Infolgedessen vergrößerten und verlegten die Architekten auch einige Fenster. An den neu angestückelten Außenwandflächen ergänzen nun rosafarbene Fliesen die bestehende Hülle aus hellgrauen Vinylplanken.
Wendeltreppe, © Michael Vahrenwald/ESTO
Neues Obergeschoss, © Michael Vahrenwald/ESTO
Eine Wendeltreppe, eingefasst in einen Zylinder aus gelben Innenwänden, führt hinauf ins neue Obergeschoss mit dem Schlafzimmer, dem Bad und der Ankleide der Hausherren. Das Waschbecken platzierten die Architekten offen im Flur zwischen den beiden Nebenräumen; das Bad ließen sie mit gesprenkeltem, grauem Terrazzo auskleiden.
Rosafarbene Fliesen an der Außenfassade, © Michael Vahrenwald/ESTO
Fassade, © Michael Vahrenwald/ESTO
Fassade
Äußerlich ist der neue „Rucksack“ des Hauses grau verputzt. Nur die konkave Fassade zur Dachterrasse – eine Art inverses Gegenbild zur Treppenzylinder im Inneren – ließen die Architekten mit den gleichen Fliesen verkleiden wie die neuen Erdgeschosswände. Die Terrasse ist zur Straße hin ausgerichtet – auch dies ein Kontrast zur traditionellen Fertighaustypologie, bei der sich eine flächenminimierte Veranda zur Rückseite hin öffnete.
Architektur: Architensions
Partnerarchitekt (Architect of Record): Hany Rizkalla
Bauherr: privat
Standort: Babylon, NY 11702 (US)
Tragwerksplanung: Seborga Engineering
Generalunternehmer: Thomas James Construction
客服
消息
收藏
下载
最近

























