查看完整案例


收藏

下载
奥恩德尔学院(Oundle School)的项目负责人认为,他们原本打算做的事情和修复工作没有什么好处,当招标前估计约80万英镑用于维修和整修现有的板球馆时,吸引了约120万英镑的投标。他们希望能够为类似的数字购买一座更可持续的建筑,并邀请五名建筑师参加一座建筑的设计竞赛,这也将是对新生的竞争日益激烈的一项资产。
现有建筑物的国内性质对其设定没有贡献,而且已经改变和扩展,其足迹突破了外场边界。
我们的建筑反应是由评审团一致选出的,他们对如此简单的形式如何能够将所有必要的住所合并成一座高效和规划良好的建筑留下了深刻的印象。
新展馆占据了靠近现有地块的土地,占据了更高的制高点。它也为北方的橄榄球球场提供了视野,为学校广阔的运动场景观做出了更大的贡献。
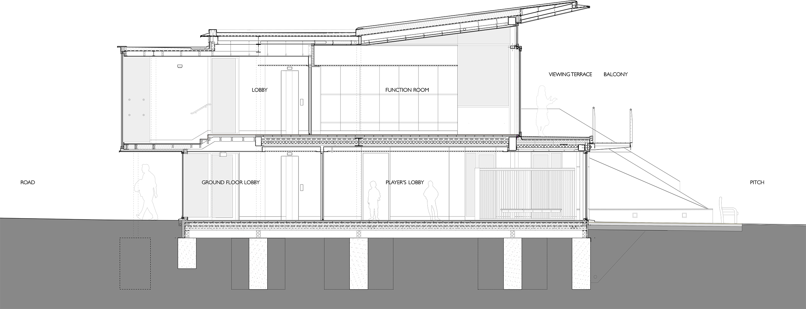
布局在等腰三角形内,坚实的底座包括更衣室、储藏室和植物室,构成一个慷慨的球员大厅。一楼的中心有一间大型的宴会厅,旁边是一间整洁的厨房、厕所和会议室。
在横截面上,这种安排是完全表达的,基地部分嵌入在草丛中,队友可以在击球前和击球后仰卧。在此之上,功能室是由一个纤细,尖锐详细的屋顶,其中掩蔽和遮阳的两层阳台和露台。
展馆在语言和表达方面有效率、实用性和当代性,展馆延续了学校160年的板球传统,不仅在空间利用和能源需求减少方面更具可持续性,而且在维持和延长学校价值的SPO方面也更为持久。RITE传统。
所有这些都是在不到一百万英镑的情况下完成的,比计划中的整修少了几十万英镑。
Firm Levitate
Type Educational › High School Other Hospitality + Sport › Sports Center Stadium
STATUS Built
YEAR 2015
SIZE 3000 sqft - 5000 sqft
BUDGET $500K - 1M
keywords:architecture, architecture news, interiors, interior design, portfolio, spec, brands, marketplace, products Oundle School Cricket Pavilion
关键词:建筑,建筑新闻,室内设计,组合,规格,品牌,市场,产品,学校板球馆
客服
消息
收藏
下载
最近









