查看完整案例

收藏

下载
失物招领北京朝阳合生汇店 / CPLUS希加建筑
失物招领北京朝阳合生汇店 / CPLUS希加建筑
C+ Architects建筑设计事务所
失物招领 摄影:夏至
“我以为真正的美丽,是可以通过时间考验的东西。时间有着压迫、不赦免任何人的腐蚀力量,以及将所有事物归还土地的意志。能够耐受这些而留存下来的形与色,才是真正的美丽。”
——杉本博司
失物招领的最新线下店铺选择进驻大型购物中心,由CPLUS负责室内设计。店铺位于2017年新建成的朝阳合生汇商场地下二层,面积约为205平方米。业主希望新店能够延续其品牌理念,并在经营业态上做出突破。因此,在满足基本功能需求之外,设计师还寻找到“过去的”的建筑材料,希望通过材料做法与品牌自主设计的家具产品产生共鸣,唤起人们珍惜美好事物的情感。
空间的划分和统一
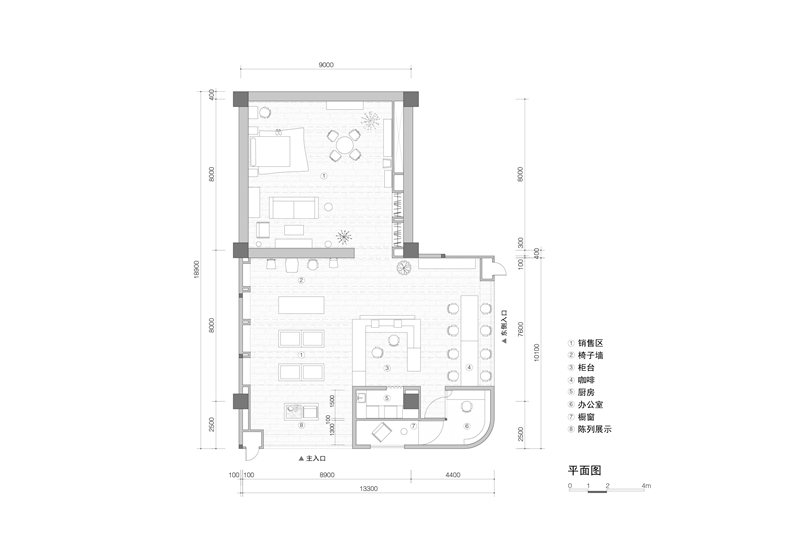
在店铺靠近商场通道的部分,设计师结合既存的柱子,用连续墙体围合出一个新的空间,里面包含了橱窗、操作间、办公室和仓库等相对封闭的功能分区。在实现无柱陈列空间的同时,也形成了南侧和东侧的出入口。
一段承重墙将店铺平面分为两个区域:里间精选了失物招领的家具系列;外间针对商场消费群体,主要销售小件食器和居家摆件。顾客通过南侧的主入口进入店铺,结合了植物景观的开放展示台、橱窗空间以及正对面的椅子展示墙都可以一览无余。东侧出入口与首次加入的餐饮休闲区相邻,便于分流带有不同消费需求的顾客。
南侧主入口,开放展示台、橱窗空间以及椅子展示墙一览无余 摄影:刘晶
里间·家具精选区 摄影:夏至
外间·小件食器和居家摆件 摄影:夏至
椅子展示墙 摄影:夏至
椅子展示墙 摄影:刘晶
餐饮休闲区 摄影:夏至
在明确空间划分之后,成排的拱形吊顶又将里外两个主要空间统一起来。两拱相交的带状区域集合了烟感、喷淋、空调及射灯轨道等设备,让拱形更加纯粹。拱两侧暗藏的灯带将店铺通过漫反射光线照亮,发光的拱形突显了天花的秩序感,并让整个店铺沉浸在柔和的氛围里。
拱形吊顶照明节点 ©CPLUS
拱两侧暗藏灯带的漫反射光 摄影:失物招领Lost&Found
两拱相交的带状区域集合了烟感、喷淋、空调及射灯轨道 摄影:刘晶
成排的拱形吊顶统一了整个店铺空间 摄影:刘晶
突显了秩序感的天花 摄影:夏至
长久使用的品质感和舒适感
时间与物品的相互作用所产生的美,是日常的重要组成部分。将尺度放大到建筑空间亦是如此。设计师在确定新建墙体材质的时候,遵从品牌倡导的“惜物”的生活方式,并参考了“时间”的元素。由于店铺处于地下层,建筑材料需要满足严格的防火等级要求,于是水洗石做法成为了最合适的选择。
现在,熟悉这种老式做法的人越来越少,施工现场的工人也说这让他们回想起了小时候自己家里盖房子的景象。水洗石墙面状态自然且有着独特的肌理,会随着环境的不断变化而显得更加富有质感,时间的痕迹可以清楚地体现出来。作为一种可循环再生的环保材料,水洗石和实木家具的产品属性也很契合。然而,在商场里实现水洗石的做法是非常具有挑战性的。一般的正常作业工序是将石子嵌入墙里,然后用大量的水冲刷,可是现场并不具备这种用水条件。为了达到预期效果,工人们采取了一种类似预制的做法,先将石子粘在PVC网片上,然后把预制好的网片贴满墙,最后用水泥填充缝隙并擦拭干净。完成后的墙面让人有一种想要靠近和触摸的感觉。
水洗石做法 ©CPLUS
设计师选择了以咖啡色为主的暖色系的石子,希望充满体量感的新墙体能让店铺从稍显纷杂的灰色调商场环境里突显出来,同时又能与店铺内的家具颜色相协调。
水洗石墙面肌理 摄影:失物招领Lost&Found
此外,门头的制作使用了压型钢板并暗藏灯带。钢板经过焊接打磨无缝连接,最后再做氧化的处理。从过道看去,细长的钢板像一条丝带,将店铺包围起来。金属与水洗石墙面形成了明显对比,并与品牌家具中的金属构件相呼应。
连续的水洗石墙体和压型钢板门头 摄影:夏至
失物招领,北京朝阳合生汇店 摄影:夏至
店铺平面图 ©CPLUS
效果图 ©CPLUS
室内设计:CPLUS希加建筑
主持建筑师:程艳春
设计团队:覃凯,张天灏,史春雪,徐丽媛
项目类型:店铺设计
状态:已建成
时间:2017年07月-2017年12月
地点:北京
建筑面积:205平方米
摄影:夏至,刘晶,失物招领
客服
消息
收藏
下载
最近






















