查看完整案例

收藏

下载
Piccoli spazi: 50 m2 a due passi dal Jardin des Halles, a Parigi
Di fronte alla chiesa di Saint-Eustache, a Les Halles, lo studio Boclaud Architecture ha completamente rinnovato un appartamento lungo e irregolare, con un sapiente gioco di monocromie e una predilezione per materiali e spazi accoglienti.
Nicolas Milon
Nel living, luminoso grazie alle due finestre alte, la pittura a calce aiuta a diffondere la luce. Poltrona (The Socialite Family), sgabello
Big Foot
(101 Copenhagen). Vaso-scultura di Bertrand Fompeyrine.
«Era un appartamento nel suo stato originale, non necessariamente in cattive condizioni ma ‘vecchio stile’, con un grande e ingombrante
caminetto
», dice
Céline Boclaud, architetto fondatore di Boclaud Architecture
. «Era strutturato su vari livelli, e il proprietario desiderava che comprendesse una
camera
da
letto
, un living, una cucina e un
bagno
- eventualmente uno studio». Posizionando fin da subito il living nella stanza con vista sulla chiesa di Saint-Eustache, a
Parigi
, gli architetti hanno optato per una
cucina
che fosse la più grande possibile, anche se questo significava ridurre le dimensioni del bagno e delle toilette.
Ma ridurre non significa nascondere.
Hanno scelto di separarli, facendo però in modo che restassero di una grandezza ragionevole e di incorporarli in una sorta di ‘scatola’ di legno con finitura in noce con parti in vetro per far entrare la luce - vetro scanalato nel
bagno
, pannelli in paglia di riso intrecciata per preservare la privacy nelle toilette, quest’ultima finitura posta tra due lastre di vetro, naturalmente. Questo blocco centrale è anche caratterizzato dai grandi armadi le cui porte sono le stesse che conducono in bagno, in una sorta di ingresso nascosto.
Le travi a vista dipinte di bianco completano la sobria e pura monocromia naturale. Lampada ad arco
Vuelta
(Ferm Living). Lampada da parete
Elgar
(Sammode).
Per creare uno spazio in cui intrattenere e pranzare
- da qui la grande isola che viene usata anche come bar e tavolo da pranzo/lavoro - la zona cucina è stata progettata per essere un luogo di
relax
, ed è stata recuperata dalle aree in pendenza nel tentativo di semplificare i volumi, che inizialmente erano complessi a causa dei diversi livelli e mezzi livelli. L'imponente caminetto è stato sostituito da uno più piccolo, inserito nella parete e, sfruttando le pendenze, accanto è stata creata una panca, oltre ad alcune nicchie. «È un appartamento a vari livelli con cui abbiamo davvero giocato, semplificandoli». “Play” è la parola d’ordine
come nella camera da letto dove, strizzando di nuovo l’occhio allo stile
giapponese
, come già visto per l’effetto paglia di riso delle ante dell'armadio in corridoio, il letto è installato a filo del pavimento, in stile futon.
Mettendo in sequenza lo spazio, i mezzi livelli diffondono la luce sul retro della zona cucina. In finitura noce, la "scatola" che raggruppa le stanze da bagno. In primo piano, sulla panca su misura, un plaid (Le Monde Sauvage).
Se le pareti e le nicchie in calce creano un’atmosfera solare e vacanziera, il legno porta un tocco più caldo e
urban
, con il colore caldo del noce che spicca sulla pittura a calce. «Questa pittura a calce bianca è morbida, e diventa essa stessa materiale, ravviva le le pareti più di una pitturazione classica». Le travi a vista dipinte di bianco completano lo schema di colori monocromatici, sobri e naturali. Monocromia che prosegue nel bagno color terracotta su tutte le pareti, nei sanitari in rosa all-over, dalle pareti alla toilette, e anche in camera da letto, tutta blu. Come tante piccole scatole monocromatiche, su una base bianco polvere, il legno di noce, i colori terracotta, rosa e blu sono puri, sobri e caldi.
Sostituendo un vecchio e imponente caminetto, ne è stato creato un altro inserendolo nelle parete, che fa anche da collegamento tra la cucina e il living. I diversi livelli permettono di delimitare gli spazi senza chiuderli. Sulla panca su misura, un plaid (Le Monde Sauvage).
La cucina è abbastanza grande per intrattenere, cenare o lavorare. I piani di lavoro sono dello stesso tono del lavabo. Sullo sfondo si può vedere la porta d'ingresso, posta in basso.
Portacandela, candela, contenitori sale e pepe (Margaux Keller). Stoviglie (Marion Graux). Sculture di Bertrand Fompeyrine.
Alla base dei pochi gradini dell'ingresso, le porte rivestite in paglia di riso intrecciata, svolgono la funzione di sportelli degli armadi, a sinistra, e di accesso al bagno, a destra.
La stanza è dipinta di un'unica nuance blu (Ressource). Il letto è collocato sul pavimento, stile futon. Biancheria da letto (Le Monde Sauvage).
Il bagno color terracotta (Ressource). Nella doccia si nota la finestrella in vetro scanalato che diffonde la luce dalla cucina.
Nella toilette separata, domina il rosa pallido, dal pavimento alle pareti al lavabo.
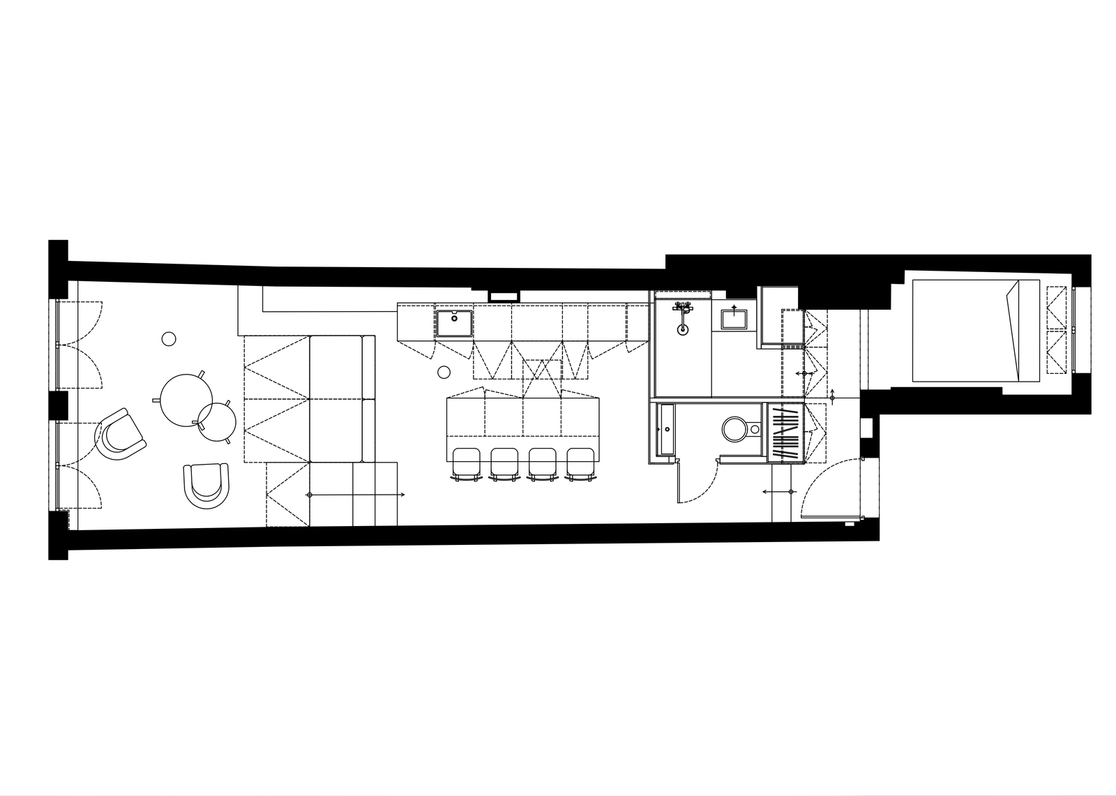
La pianta dell'appartamento dopo i lavori.
客服
消息
收藏
下载
最近














