查看完整案例

收藏

下载
Educan – škola za pse, ljude i druge vrste; foto: De Paz
Pseća škola u Španiji: Arhitektura u službi životinja
Podne površine dizajnirane su tako da po njima gaze šape, a ne cipele, dok kišnicu piju ne samo psi već i ptice koje prave svoje domove na spratu.
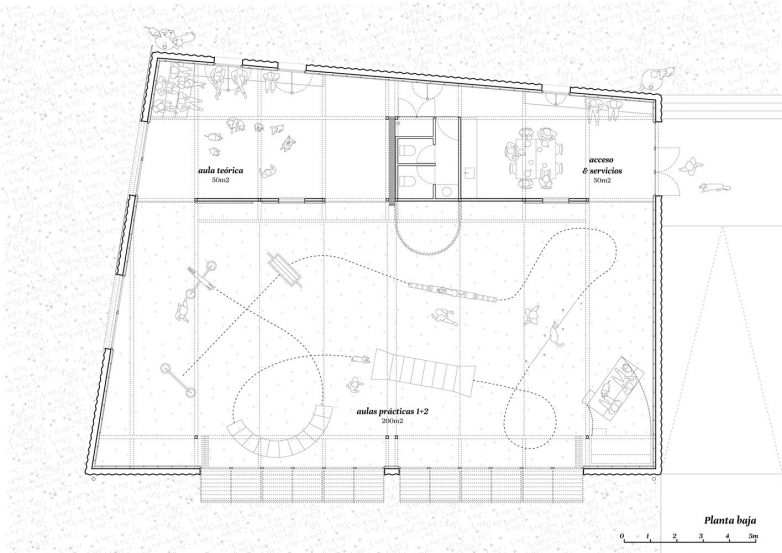
Ljudi i psi harmonično koegzistiraju u Edukan školi za pse, ljude i druge vrste, nesvakidašnjem projektu iza kojeg stoje mozgovi španskih arhitekata Enrikea Espinose i Lisa Viljalbe.
Prostor smešten u ruralnom okruženju zapadno od Madrida, koji zauzima površinu 984 kvadratna metra, koristi se za obuku pasa i dizajniran je da podstakne ono iskonsko u životinjama.
Čitav projekat ima za cilj da pomogne u obnavljanju prirodnog reda lokalnog ekosistema, za koji arhitekte smatraju da je izgubljen usred nedavnog napretka u urbanom razvoju i poljoprivredi koja se u velikoj meri oslanja na pesticide, piše Wallpaper.
Industrijski paneli od lima su standardizovane veličine; foto: De Paz
Životinje u centru dizajna
Zgrada stavlja životinje, a ne ljude, u centar dizajna koji razmatra sve aspekte sa stanovišta pasa. Podovi su, na primer, dizajnirani tako da po njima gaze šape, a ne cipele, pri čemu su u obzir uzeti osetljivi jastučići pasa.
Odabirom materijala autori su imali na umu smanjenje otpada, te se tako došlo do kontejnera za transport koji sada nude sklonište raznim životinjama.
Takođe, industrijski paneli od lima su standardizovane veličine kako bi se osiguralo da nema otpada, dok automatizovani klima uređaji i ručni kontrolni elementi – kao što su roletne i zastori – obezbeđuju da svakodnevno funkcionisanje škole bude što je više moguće energetski efikasnije.
Dizajn razmatra sve aspekte sa stanovišta životinje; foto: José Hevia
Otvori na zgradi obeshrabljuju pse da napuste objekat, dok izolacija apsorbuje zvuk i smanjuje buku lajanja.
U osmišljavanju ovog animal-friendly kutka autori su išli do najsitnijih detallja. Otvori na zgradi napravljeni su tako da obeshrabre pse da napuste objekat ili im odvrate pažnju, a kapci za prozore postavljeni su sa namerom da pruže hlad četvoronošcima koji prolaze ispod.
Tu je i penasta izolacija koja apsorbuje zvuk i smanjuje buku lajanja, psećeg „govora“ i odjeka u unutrašnjosti, stvarajući tako harmonioničku atmosferu u čitavom objektu.
Penasta izolacija odlično apsorbuje zvuk laveža; foto: José Hevia
Obnavljanje lokalnog ekosistema
Ovaj primer „životinjske arhitekture“ nije od koristi samo psima; i druge vrste, kao što su ptice i slepi miševi, osećaju se kao kod kuće u ovom okruženju, doprinoseći tako obnavljanju lokalnog ekosistema.
Kišnica sa krova sakuplja se u velika korita za ptice i pse, dok ptice, uključujući sove i vetruške, prave svoje domove na gornjem spratu.
Vrapci preferiraju kružne rupe na ivicama kontejnera za transport, dok slepi miševi radije biraju da se gnezde unutar 3D slova kojima je na fasadi zgrade ispisano „Edukan“.
Vrapci se gnezde u rupama na ivicama kontejnera; foto: José Hevia
客服
消息
收藏
下载
最近



















