查看完整案例

收藏

下载
17世紀修道院舊建築改造,德國Jacoby Studios總部/David Chipperfield Architects
17世紀修道院舊建築改造,德國Jacoby Studios總部/David Chipperfield Architects
基地位於德國帕德博恩中世紀小鎮的中心,毗鄰Pader Spring的西側支流。該建築原本是St. Vincenz醫院的所在地。當醫院於2013年搬出後,既有建築經過舊建築改造,成為一個家族企業總部,由英國建築師事務所David Chipperfield Architects的柏林辦公室設計。
既有的建築輪廓源來自於17世紀的修道院造型,St. Vincenz醫院於1841年搬入其中,並在第二次世界大戰期間受到了嚴重的損壞。之後,這棟建築經歷了數次修繕和重建。
2014與2017對比
2014與2017對比
在設計中,戰後的增建部分均被移除,以呈現最初的修道院歷史造型。
教堂的立面、東側的主體建築和17世紀的天花板都被進行了細心的保留與修繕。景觀設計師事務所Wirtz International也很好地將這部分歷史遺存嵌入到了現代景觀設計中。
建築師還增建了多個兩到三層的側翼空間。這些新建部分圍繞原有的空間依次分佈於北側、西側和南側。穿過保留的歷史入口和教堂,來訪者就可以到達一個新建的入口門廳。
建築師將新建的量體進行了平衡的空間分佈,以呼應所保留的歷史遺蹟。如此一來,整個空間在維持和延續歷史價值的同時,得以凸顯其獨特的風格特色。
戶外景觀
建築圖
基地位置圖
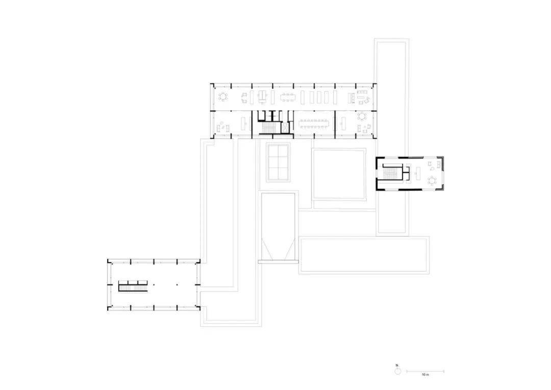
整體平面配置圖
平面圖 Plan
平面圖 Plan
平面圖 Plan
立面圖 Elevation
立面圖 Elevation
立面圖 Elevation
剖面圖 Section
剖面圖 Section
剖面圖 Section
剖面圖 Section
剖面大樣圖
剖面大樣圖
作品資訊
作品位置:德國 帕特伯恩
作品類型:舊建築改造、企業總部、辦公空間
業主:Jacoby GbR represented by Ellen Jacoby, Franz Jacoby, Yvonne Jacoby
建築師:David Chipperfield Architects
竣工:2020年
總樓地板面積:12500.0 平方公尺
攝影師:Simon Menges
主持建築師:David Chipperfield Architects Berlin
合夥人:David Chipperfield, Martin Reichert, Alexander Schwarz (Design lead)
專案建築師:Franziska Rusch (Concept study), Frithjof Kahl (Preparation and brief to Developed Design, Design intent details, Site design supervision)
專案團隊:Thomas Benk, Thea Cheret, Dirk Gschwind, Elsa Pandozi, Franziska Rusch, Diana Schaffrannek, Eva-Maria Stadelmann, Amelie Wegner; Graphics, Visualisation: Dalia Liksaite
執行建築師:Schilling Architekten, Cologne, Jochem Vieren (Project management), Michael Zinnkann (Construction management)
景觀建築師:Wirtz International nv, Schoten, Peter Wirtz, Jan Grauwels
結構工程及燈光設計:Gantert + Wiemeler Ingenieurplanung, Münster
建築聲學及消防設計:Hansen Ingenieure, Münster HHP West Beratende Ingenieure GmbH, Bielefeld
客服
消息
收藏
下载
最近
























