查看完整案例


收藏

下载
Paideia是一所面向轻度和中度智力残疾学生的特殊教育学校。
这所学校在一座设计有住宅功能的旧建筑中多年来。
Paideia基金会由学生家长和学校教职员工组成。他们决定寻找一种替代其培训需要的办法:他们搜查了市议会的共谋,并获得了一个临时转移的地块,使他们能够前进并寻找资源,以便开始挑选开发该项目和建造新学校所需的专业人员。
为了推进学校的项目,他们宣布了一项课程和建议书竞赛,他们要求:一方面,在执行类似的工作方面有一些经验;另一方面,解决办法使公司能够与一个外部协作小组共谋和信任地进行大楼建设;最后,采取确保准确的价格和最后期限的办法。学校里每一个人的动力和精力使这座建筑的协调、融资和建造过程成为可能。
新大楼的位置与公共绿地和一大块公寓相邻。该遗址是一个古老的工业殖民地“Colonia Castells”的一部分,它被改造成一个新的公共城市空间,由于城市的发展,建筑的地块与街道成了一条线。
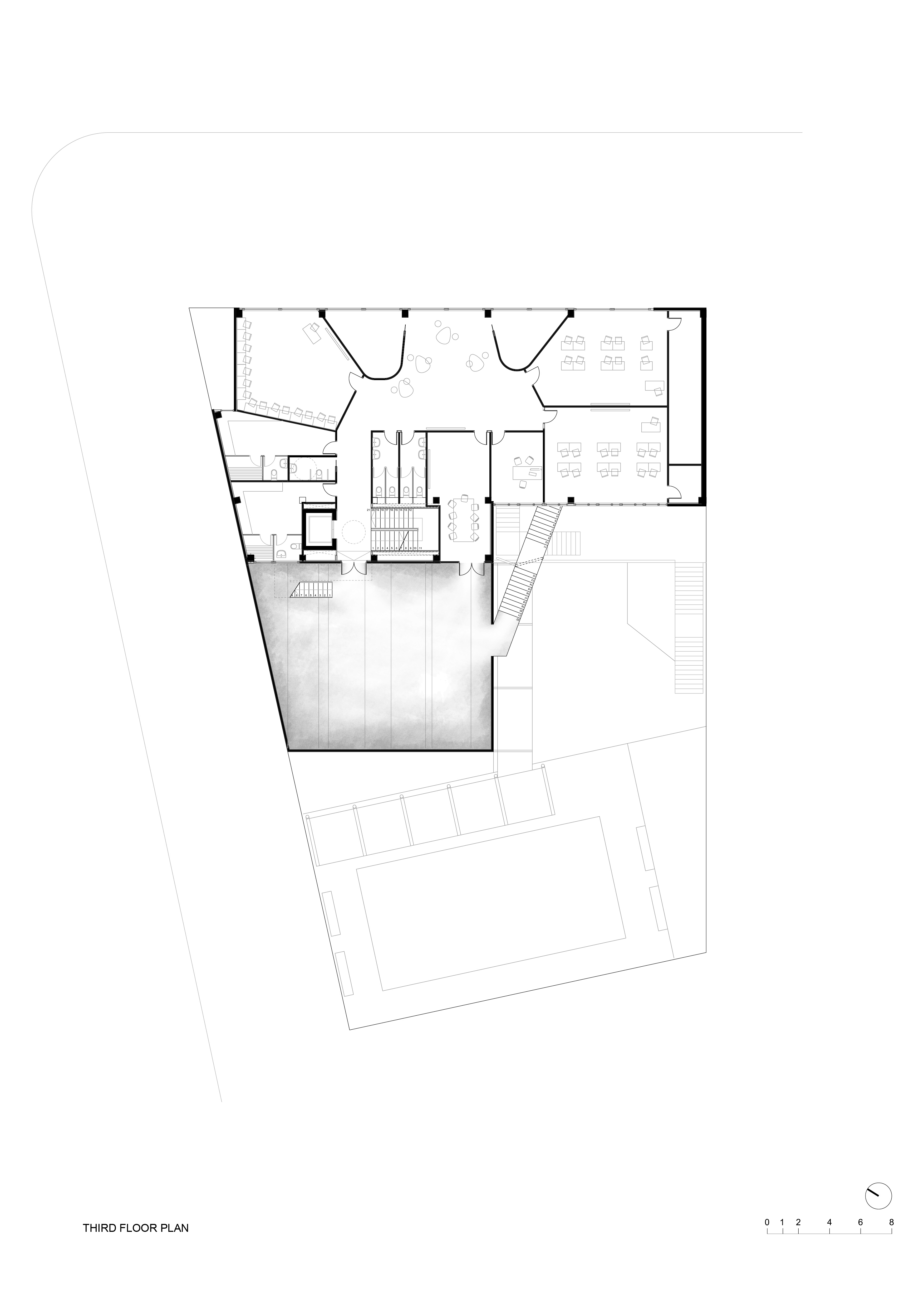
分配给派迪亚的地块条件,主要是它的大小和可建的周长,迫使学校容量有三层楼高。
提出了一种体积,允许在整个建筑物的高度上产生室外空间。此外,它创造了直接进入每一层的外部空间。这一概念是项目标准的支柱。所有的户外空间都从外部相互联系:从一楼的花园,它与一个大的双高度和双立面的户外空间同时连接在四楼的大型露台上。
一楼的大型户外空间为街道和小区的绿地提供了一个视觉和真实的关系。孩子们在高原上玩耍,与城市生活直接接触。
绿地有两个重要的作用:一个是在甲板上,学校在那里种植了一个花园,另一个是沿着建筑物有其局限性的大中间地带。
从功能上讲,所有教室、办公室、家教、言语治疗空间和灵活的房间都分布在大楼的外墙后面。每一个教室,每一个教学空间,都是由每一位在中心工作的老师仔细考虑的。
该项目是根据生物气候标准设想的,主要是围护结构要素的惯性、所有开口的太阳能保护、开放窗户的自然交叉通风以及允许减少能源需求的建设性决定。从建筑的同时性和主动功能的控制两个方面对建筑进行了研究,以达到设备最小化和降低能耗的目的。
该房产的主要要求之一是在一个学年的最后期限内建造一所学校。所有的建设都是从干式系统中提出来的,完全工业化,工业批量最小,效率最高,质量和性能监测。
该建筑物可以拆卸,因为它已经组装在现场,拆卸和再建在另一个地点。
Firm PichArchitects
Type Educational › Elementary School
STATUS Built
YEAR 2015
SIZE 10,000 sqft - 25,000 sqft
Photos Simon Garcia, usuari
keywords:architecture, architecture news, interiors, interior design, portfolio, spec, brands, marketplace, products “PAIDEIA” SPECIAL SCHOOL. BARCELONA.
关键词:建筑、建筑新闻、内部设计、室内设计、产品组合、规格、品牌、市场、产品“帕迪亚”特殊学校。
客服
消息
收藏
下载
最近
















