查看完整案例

收藏

下载
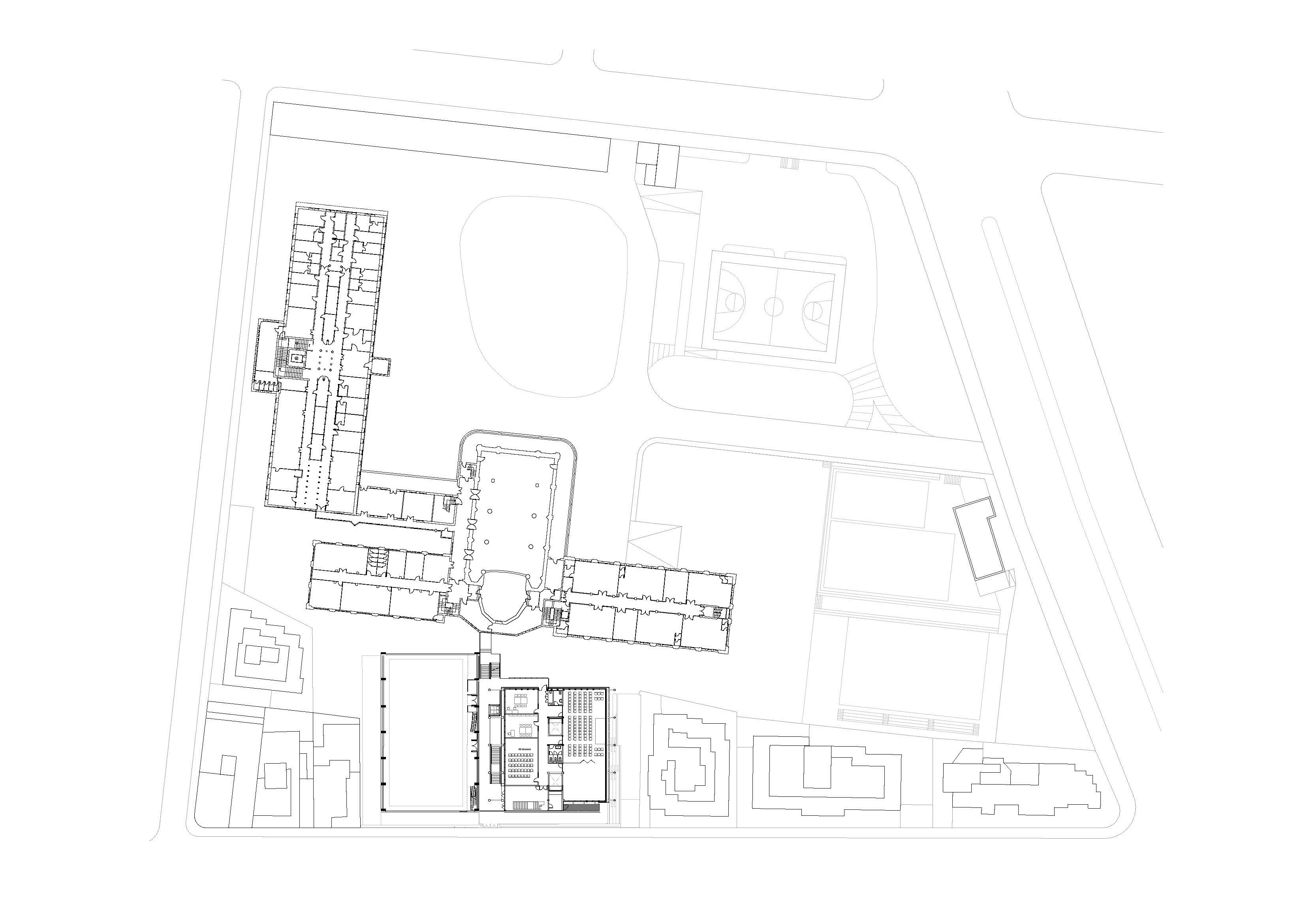
这是C/Ganduxer的Teresiana学校的延伸。
由于其遗产价值、时间的推移和各种教育改革,学校一直没有足够的教室空间和娱乐场所。
新扩建工程重新定位所有年级,为学校提供新的有盖的体育场地,为学校和课外活动提供必要的基础设施。
在环境中设计一座新的建筑是一项挑战,其独特性和意义是当前的特雷斯纳斯学校。
决定将该项目定位在不影响安东尼·高迪设计的展馆能见度的最佳地点。
音量尊重周围建筑物的高度和距离,以及与现有运动场的连接。
这座建筑不得不谈论它的时间,而不回头看现有建筑物的具体结构,因此决定使用一个编织陶瓷正面,提供一个大的格子面对街道,灯光和照明元素进入学校。这种双层皮肤,允许更多的自由和灵活性,在分配窗口和不透明的元素所需。
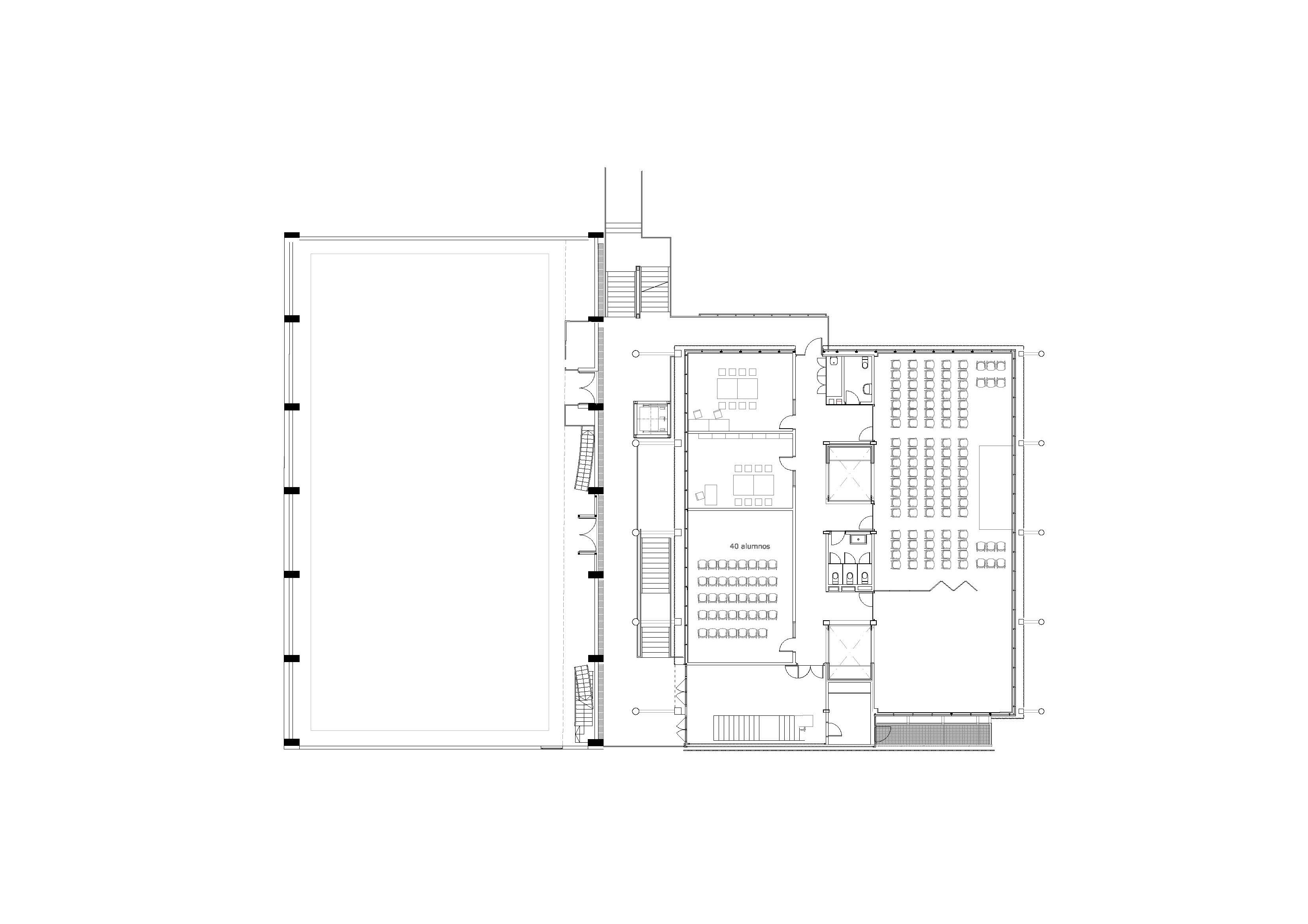
展馆需要在地下室的地板上提供一个运动空间,因此提出了一种悬挂的金属结构,使建筑物有一个干净的地板。
教室分布在中央大厅,通过太阳能烟囱在每一层接受光线。根据中心的严格要求,从最大限度的紧缩和简单出发,提出了内部结构。
整个项目致力于实现空调和室内空气更新的最低消耗,植被对空气质量起着重要作用,并与减少污染所需的机械合作。辐射加热被选择作为解决方案,提供更大的舒适性和传热。
该建筑物的位置允许对学校的运作进行全面改组,并清楚地使第二周期的学生能够获得独立的机会。
Firm PichArchitects
Type Educational › Elementary School
STATUS Built
YEAR 2014
SIZE 25,000 sqft - 100,000 sqft
BUDGET $1M - 5M
Photos Simon Garcia
keywordsarchitecture, architecture news, interiors, interior design, portfolio, spec, brands, marketplace, products Ampliación escuela Teresianas-Ganduxer
关键词建筑、建筑新闻、室内设计、组合、规格、品牌、市场、产品
客服
消息
收藏
下载
最近












